

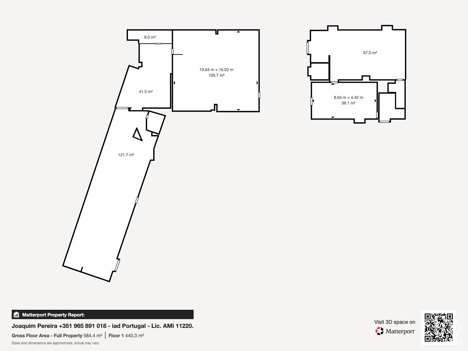
MAISON EN GRANIT À FORT POTENTIEL DE RÉNOVATION. Venez découvrir cette maison en granit avec IAD Portugal SA, offrant une excellente opportunité d'investissement. Idéale pour les investisseurs et divers types de projets commerciaux. Cette impressionnante propriété est située sur un terrain de 1 421 m². Elle offre une surface habitable de 1 271 m², répartie sur deux ailes indépendantes, avec un rez-de-chaussée et un premier étage. Elle permet d'explorer différentes solutions commerciales. La location peut générer des rendements élevés. Aile résidentielle 7 chambres 2 salons 5 salles de bain Espace sujet à modernisation, permettant la création d'unités locatives haut de gamme. Aile spacieuse Espace généreux et polyvalent, offrant une grande adaptabilité Possibilité de créer 10 chambres supplémentaires ou plus, augmentant considérablement les revenus. Idéale pour divers projets commerciaux, tels que : Location de chambres Auberge de jeunesse ou hébergement local Coliving pour étudiants ou professionnels Résidence senior ou projet d'accueil Caractéristiques de la propriété Construction solide en granit, alliant durabilité, élégance et charme Entrées indépendantes pour une utilisation flexible Espace non couvert de 798 m², idéal pour le jardinage, les loisirs, l'installation d'une piscine et le stationnement La propriété dispose d'un puits et d'un autre, garantissant l'autonomie en eau. Spécifications techniques Superficie totale du terrain : 1 421 m² Superficie du bâtiment : 622 m² Superficie brute de construction : 1 271 m² Superficie non couverte/jardin : 798 m² Distance de la plage : 700 m Situation privilégiée À seulement 700 m de la mer Près de l'aéroport Francisco Sá Carneiro (5 km) Accès rapide à l'autoroute A28 (1 km) À 8 km de la raffinerie de Galp, future cité technologique, dans une zone en forte croissance et en pleine expansion. Une véritable opportunité d'affaires, idéale pour ceux qui cherchent à investir avec vision et sécurité. VISITES VIRTUELLES DISPONIBLE: https://my.matterport.com/show/?m=dJAxJLwtA3t https://my.matterport.com/show/?m=3ArAjsnbeLp https://my.matterport.com/show/?m=CQaHeC4Ngkn
Réf : 128476
Diagnostic de performance énergétique (DPE)
Biens similaires




Villes à proximité
Autres types de bien à Perafita, Lavra e Santa Cruz do Bispo
Autres types de bien à proximité
Autres projets à Perafita, Lavra e Santa Cruz do Bispo