

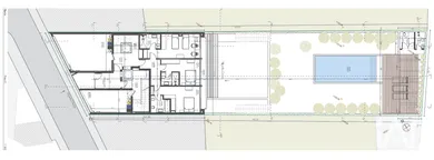
Terreno com 530 m2 e com projeto aprovado para a construção de duas moradias, com piscina e jardim. O projeto contempla a construção de duas moradias com 280 m2 cada. A licença de construção pode ser levantada a qualquer momento. A localização é excecional, estando a escassos metros do Jardim de Arca d'Água e da Quinta do Covelo e com fácil acesso à rede de tranapostes.
Referência: 744137
Imóveis semelhantes




Localidades próximas
Outros tipos de imóveis em Paranhos
Outros tipos de imóveisnas proximidades
Outros projetos em Paranhos