

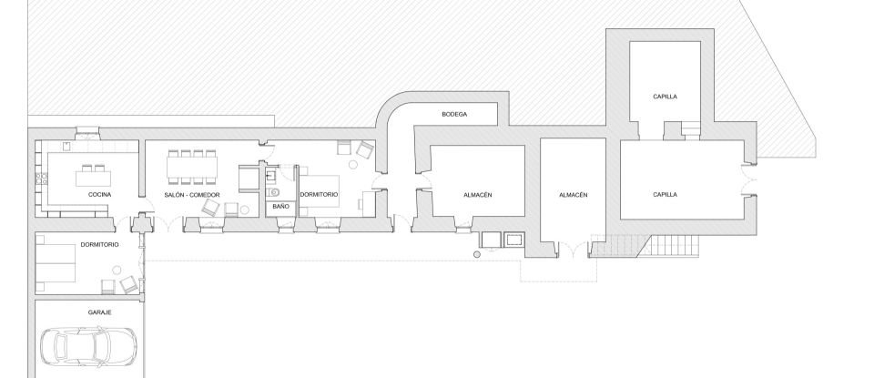
Quinta de exceção em Varche – Elegância rural e alma autêntica às portas de Elvas A apenas 3 km de Elvas, cidade fortificada classificada como Património Mundial pela UNESCO, esta propriedade rara com 3,15 hectares convida-o a descobrir um local onde a história pessoal, a paixão, a natureza e o património se entrelaçam com elegância. Totalmente murada com paredes de pedra, a quinta é ao mesmo tempo íntima, ampla e profundamente enraizada na identidade do Alentejo. Logo à entrada, encontra-se uma capela tradicional com sacristia, onde se realizam anualmente as celebrações da aldeia – um reflexo da ligação desta propriedade à comunidade local. Um espaço cuidado, cheio de simbolismo. A casa principal, em excelente estado de conservação, distribui-se por dois pisos: Rés-do-chão : • Cozinha totalmente equipada • Sala com lareira • Dois quartos confortáveis • Casa de banho completa • Adega tradicional • Garagem com portão automático Primeiro andar : • Amplo hall de distribuição • Segunda cozinha com muita luz natural • Sala espaçosa e luminosa • Lavandaria • Sala com salamandra, ideal para as noites de inverno • Quatro quartos adicionais • Três casas de banho completas Esta quinta distingue-se também pelo seu passado: pertenceu a um proprietário apaixonado por cavalos, animais e pela tradição tauromáquica ibérica. Esta paixão está presente em alguns elementos decorativos preservados, que conferem uma identidade única e marcante ao imóvel. Os jardins e espaços exteriores convidam ao descanso: cantinhos sombreados por pérgulas, perfeitos para tomar um chá ou simplesmente apreciar a tranquilidade, estão espalhados pela propriedade. Um riacho atravessa os terrenos, criando um ambiente fresco e sereno. Pomares de citrinos, oliveiras e culturas herbáceas completam o cenário. As várias dependências agrícolas incluem estábulos, currais e arrecadações, bem como uma antiga casa agrícola em pedra, com lareira e telhado recentemente renovado, pronta para se tornar uma casa de hóspedes, espaço de lazer ou projeto independente. Outro diferencial notável: a propriedade conta com um caseiro que cuida diariamente de todo o espaço, garantindo a manutenção e o bom funcionamento. Este é um imóvel bem conhecido e respeitado pela população local, não só pela sua história como pela sua conservação excecional. Características técnicas: • Terreno de 3,15 hectares totalmente murado em pedra • Casa principal em excelente estado • Janelas com vidros duplos, mosquiteiros, portadas interiores • Internet por fibra ótica • Fossa séptica • Portão de entrada automático • Garagem com portão automático • Abastecimento de água através da rede, furo e poço • Presença de caseiro Uma propriedade com alma, história e um encanto raro. Um espaço vivido e cuidado, entre o património e a serenidade. Contacte-nos para visitar este imóvel único às portas de Elvas.
Referência: 141566
Classe energética
Imóveis semelhantes



750 000 €


8 500 000 €

Localidades próximas
Outros tipos de imóveis em São Brás e São Lourenço
Outros tipos de imóveisnas proximidades