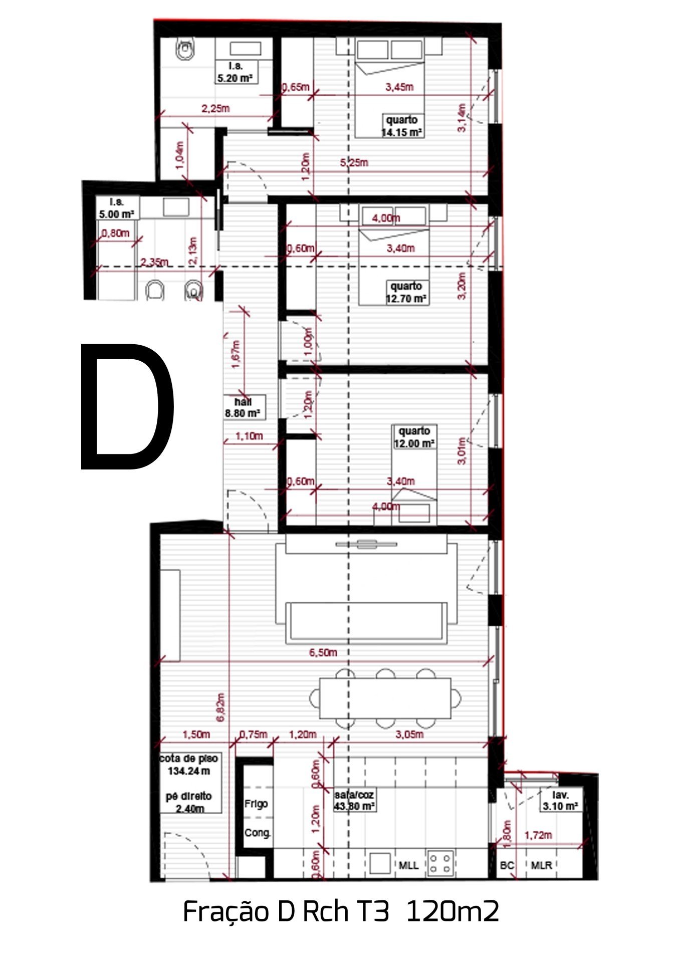
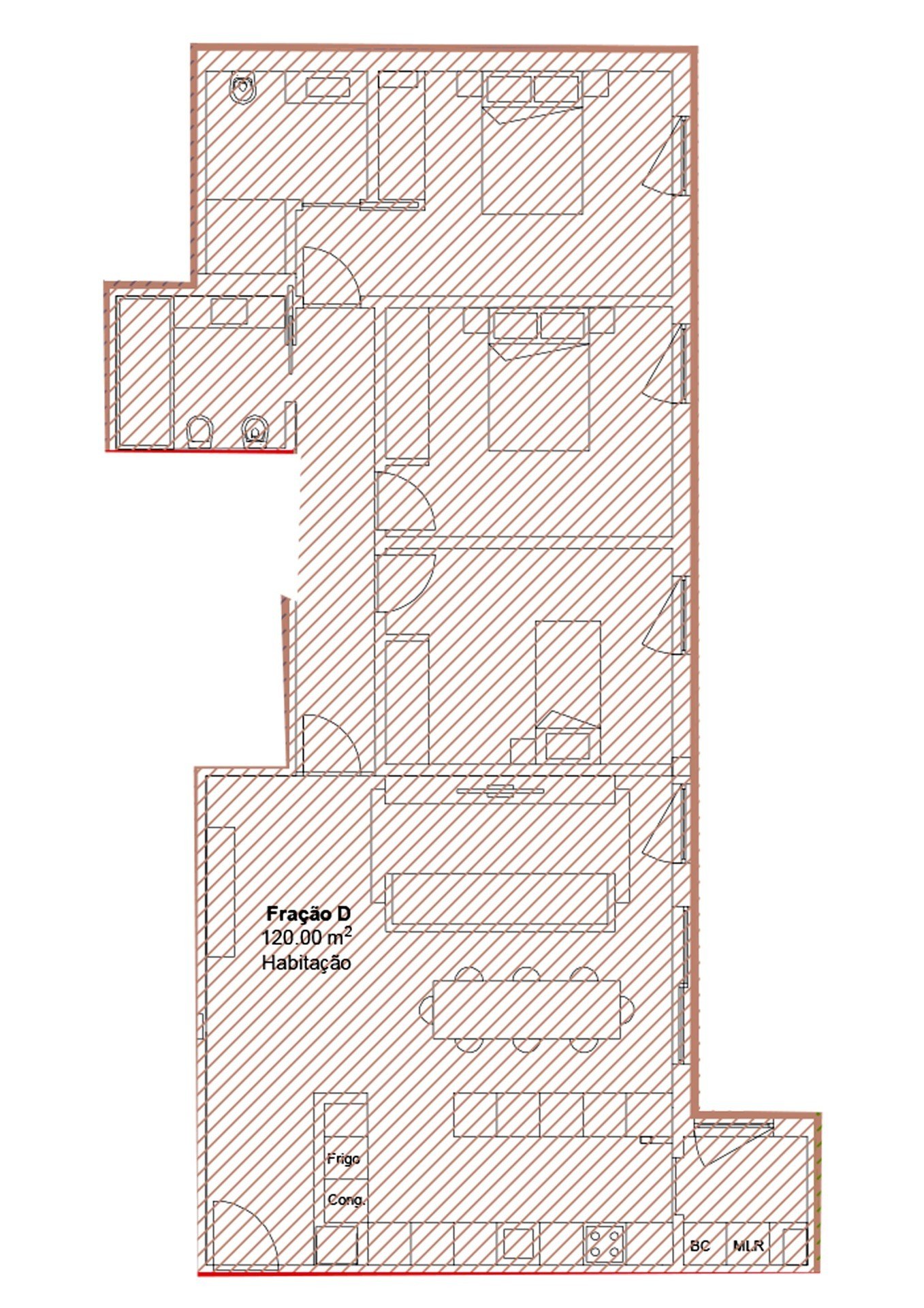
Apartamento T3 em Albergaria-a-Velha e Valmaior de 120 m²
Sobre este apartamento de 3 quartos em Albergaria-a-Velha e Valmaior, Albergaria-a-Velha e Valmaior
🏢 Prédio Novo a 2 Minutos do Centro de Albergaria – Conclusão Prevista 2027/2028
Apresentamos um excelente investimento no coração de Albergaria‑a‑Velha: um edifício moderno de construção nova, com conclusão prevista entre 2027 e 2028, composto por 3 andares e um total de 12 apartamentos (4 por piso), com tipologias T1/ T2 e T3 ainda disponíveis. Todos os apartamentos dispõem de lugar de garagem.
📌Aproveite agora para garantir a sua fração T1 / T2 ou T3 ao melhor preço!
📍 Localização privilegiada, a apenas 2 minutos do centro da vila, com acesso fácil a escolas, comércio, serviços e transportes, garantindo uma vida prática e confortável.
💰 Compra em planta – beneficie dos preços de lançamento! Ao adquirir nesta fase, poderá usufruir de condições especiais e, conforme o estado da obra, poderá ainda personalizar alguns acabamentos.
🏗️ Características da construção:
Áreas Privativas:
Pavimento flutuante Finsa AC5 (alta resistência);
WCs com pavimento cerâmico de 1.ª qualidade;
Caixilharia em alumínio com vidros duplos, caixa de ar e corte térmico;
Ar condicionado instalado;
Tetos falsos em pladur com focos embutidos;
Roupeiros embutidos;
Portas e acabamentos em madeiras nobres (Tola, Finsa, Izombé);
Porta de entrada de segurança.
Zonas Comuns:
Revestimento cerâmico de elevada qualidade;
Vídeo porteiro.
🍽️ Cozinhas Totalmente Equipadas:
Móveis em termolaminado;
Bancadas em silestone;
Equipadas com placa vitrocerâmica, forno elétrico, exaustor, frigorífico combinado, micro‑ondas;
Sistema de aquecimento de águas com bomba de calor.
💡 Um projeto moderno, eficiente e com acabamentos de excelência, ideal para quem procura qualidade de vida ou rentabilidade garantida.
📞 Para mais informações ou agendamento de reunião, entre em contacto connosco. Garanta já o seu T1 ou T3 ao melhor preço!
Equipamentos
Outros
Consumo de energia
Classe energética :
Este apartamento está localizado em Albergaria-a-Velha e Valmaior.





