

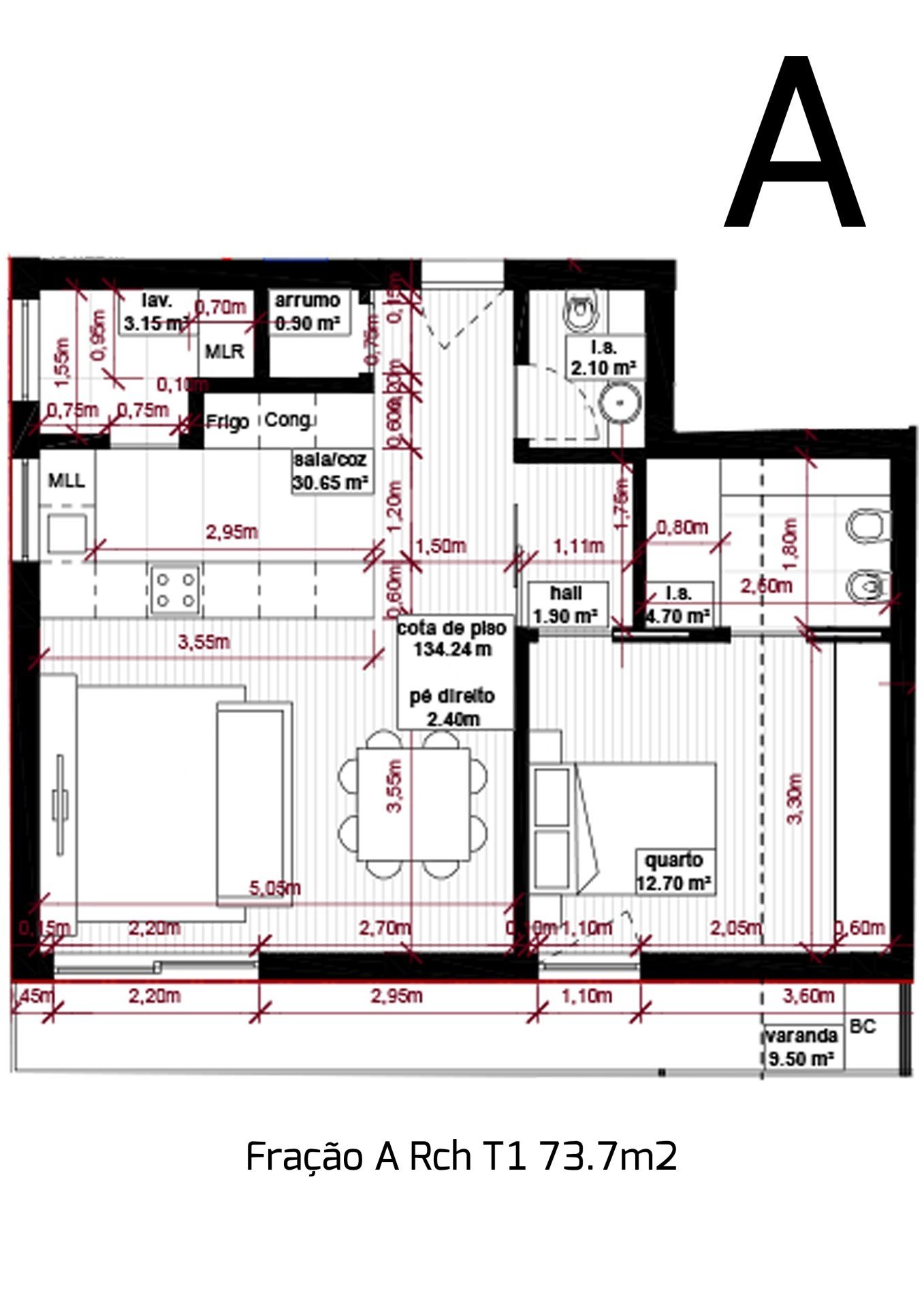
🏢 Prédio Novo a 2 Minutos do Centro de Albergaria – Conclusão Prevista 2027/2028 Apresentamos um excelente investimento no coração de Albergaria‑a‑Velha: um edifício moderno de construção nova, com conclusão prevista entre 2027 e 2028, composto por 3 andares e um total de 12 apartamentos (4 por piso), com tipologias T1/T2 e T3 ainda disponíveis. Todos os apartamentos dispõem de lugar de garagem. 📌 Aproveite agora para garantir a sua fração T1/T2 ou T3 ao melhor preço! 📍 Localização privilegiada, a apenas 2 minutos do centro da vila, com acesso fácil a escolas, comércio, serviços e transportes, garantindo uma vida prática e confortável. 💰 Compra em planta – beneficie dos preços de lançamento! Ao adquirir nesta fase, poderá usufruir de condições especiais e, conforme o estado da obra, poderá ainda personalizar alguns acabamentos. 🏗️ Características da construção: Áreas Privativas: Pavimento flutuante Finsa AC5 (alta resistência); WCs com pavimento cerâmico de 1.ª qualidade; Caixilharia em alumínio com vidros duplos, caixa de ar e corte térmico; Ar condicionado instalado; Tetos falsos em pladur com focos embutidos; Roupeiros embutidos; Portas e acabamentos em madeiras nobres (Tola, Finsa, Izombé); Porta de entrada de segurança. Zonas Comuns: Revestimento cerâmico de elevada qualidade; Vídeo porteiro. 🍽️ Cozinhas Totalmente Equipadas: Móveis em termolaminado; Bancadas em silestone; Equipadas com placa vitrocerâmica, forno elétrico, exaustor, frigorífico combinado, micro‑ondas; Sistema de aquecimento de águas com bomba de calor. 💡 Um projeto moderno, eficiente e com acabamentos de excelência, ideal para quem procura qualidade de vida ou rentabilidade garantida. 📞 Para mais informações ou agendamento de reunião, entre em contacto connosco. Garanta já o seu T1 ou T3 ao melhor preço!
Referência: 146811
Classe energética
Imóveis semelhantes



