
- Neuf
1 175 000 €
Maison à Tavira (Santa Maria e Santiago)
- 3 chambres
- 454 m² de surface brute
- 454 m² de terrain


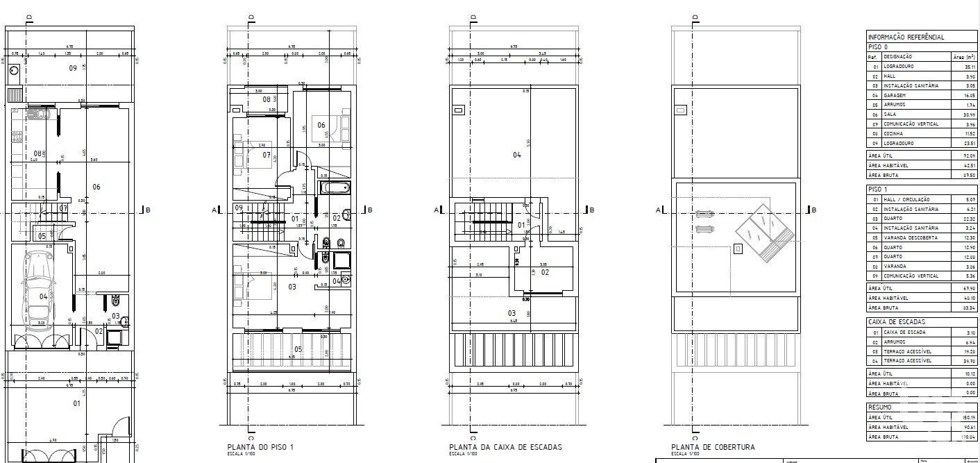
Maison de ville moderne de 4 chambres avec terrasse privée Cette fantastique maison de ville offre l'équilibre parfait entre modernité et confort, idéale pour ceux qui recherchent un espace bien distribué et prêt à accueillir amis et famille avec un confort total. Caractéristiques de la maison : • Rez-de-chaussée : En entrant dans la maison, vous trouverez un grand espace ouvert, où la cuisine moderne et fonctionnelle s'intègre parfaitement au salon, créant un environnement confortable et pratique pour la vie quotidienne. Cet espace a un accès direct à la terrasse privée avec barbecue, parfaite pour les repas en plein air et les moments de loisirs. Le rez-de-chaussée comprend également une salle de bain et un garage privé. • Premier étage : Voici l'aire de repos, composée de trois chambres, dont une en suite, et d'une salle de bain partagée avec deux chambres. Ces pièces ont été conçues pour offrir un maximum d’intimité et de confort aux résidents, tout en offrant beaucoup de lumière naturelle. • Deuxième étage : Un espace multifonctionnel pouvant servir de bureau, de salle d'étude ou d'espace détente, adaptable selon vos besoins. Cet étage dispose également d'un balcon exclusif, idéal pour des moments de tranquillité en plein air et avec la possibilité de créer un environnement de lecture ou de repos. Points forts supplémentaires : • Cuisine à aire ouverte, équipée et moderne, qui s'intègre au salon. • Terrasse privée avec barbecue, pour repas et réunions en plein air. • Garage privé, offrant sécurité et commodité. • Espace au deuxième étage avec balcon, parfait pour un bureau à domicile ou un espace de loisirs. • Parmi les équipements de la maison, nous soulignons l'air climatisé, les planchers chauffants et l'aspirateur central. Située dans un emplacement privilégié avec un accès facile aux écoles, commerces et transports, cette maison de ville est idéale pour ceux qui recherchent une maison pratique, moderne et confortable. Ne manquez pas l'occasion de découvrir cette propriété unique. Planifiez votre visite maintenant! Venez découvrir cette excellente opportunité de logement et tombez amoureux de votre nouvelle maison ! Réservez votre visite maintenant! L'EMPLACEMENT Tavira – Là où tradition et beauté naturelle se rencontrent Située au cœur de l'Algarve, Tavira est une ville qui allie le charme historique à la sérénité des paysages naturels. Connue comme l'une des villes les plus pittoresques de la région, également appelée la Venise de l'Algarve, Tavira enchante par ses rues pavées, ses maisons traditionnelles à l'architecture mauresque et la rivière Gilão, qui traverse le centre et s'étend jusqu'à la célèbre Praia de Tavira. , sur l'île de Tavira. C'est un endroit où la qualité de vie est prise au sérieux : le climat doux, les marchés locaux proposant des produits frais et l'accès facile aux plages préservées font de Tavira un choix populaire parmi ceux qui recherchent la tranquillité et l'authenticité. Dotée d'un riche patrimoine culturel, la ville abrite des attractions touristiques uniques, telles que le château de Tavira, le pont romain et ses 24 églises historiques. Ici vous trouverez certaines des plages les plus célèbres de la côte de l'Algarve avec de longues plages de sable, comme la plage « Barril », connue pour son train caractéristique, son cimetière d'ancres et ses eaux cristallines., la plage « Terra Estreita » ou « Cabanas », et bien sûr l'île de Tavira. Nous ne pouvons pas oublier le parc naturel de Ria Formosa où se trouvent les célèbres salines, où, selon de nombreux experts, sont produits ici certains des meilleurs sel et fleur de sel du monde. Attirés par les salines, vous trouverez ici plusieurs volées de flamants roses, d'échassiers et d'autres oiseaux. Tavira offre également une excellente infrastructure, avec des écoles, des collèges, des restaurants renommés et une atmosphère accueillante, idéale pour les familles, les retraités et tous ceux qui recherchent un style de vie plus calme. La proximité de la frontière espagnole et de l'aéroport international de Faro (à seulement 30 minutes en voiture) font de Tavira un point stratégique pour ceux qui souhaitent explorer l'Algarve et au-delà, elle a été considérée comme l'une des meilleures destinations touristiques pour les familles du sud du Portugal. Tavira compte environ 24 000 habitants. Elle compte actuellement une forte communauté étrangère avec des résidences permanentes ou de vacances, très importante, notamment britannique, française, italienne, suédoise, néerlandaise, belge, allemande et irlandaise.
Réf : 129712
Diagnostic de performance énergétique (DPE)
Biens similaires

1 175 000 €




Villes à proximité
Autres types de bien à Tavira
Autres types de bien à proximité