
535 000 €
Maison à Palmeira de Faro e Curvos
- 3 chambres
- 471 m² de surface brute
- 1 000 m² de terrain


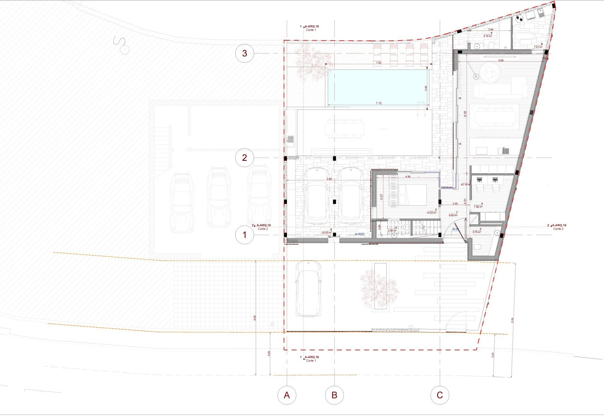
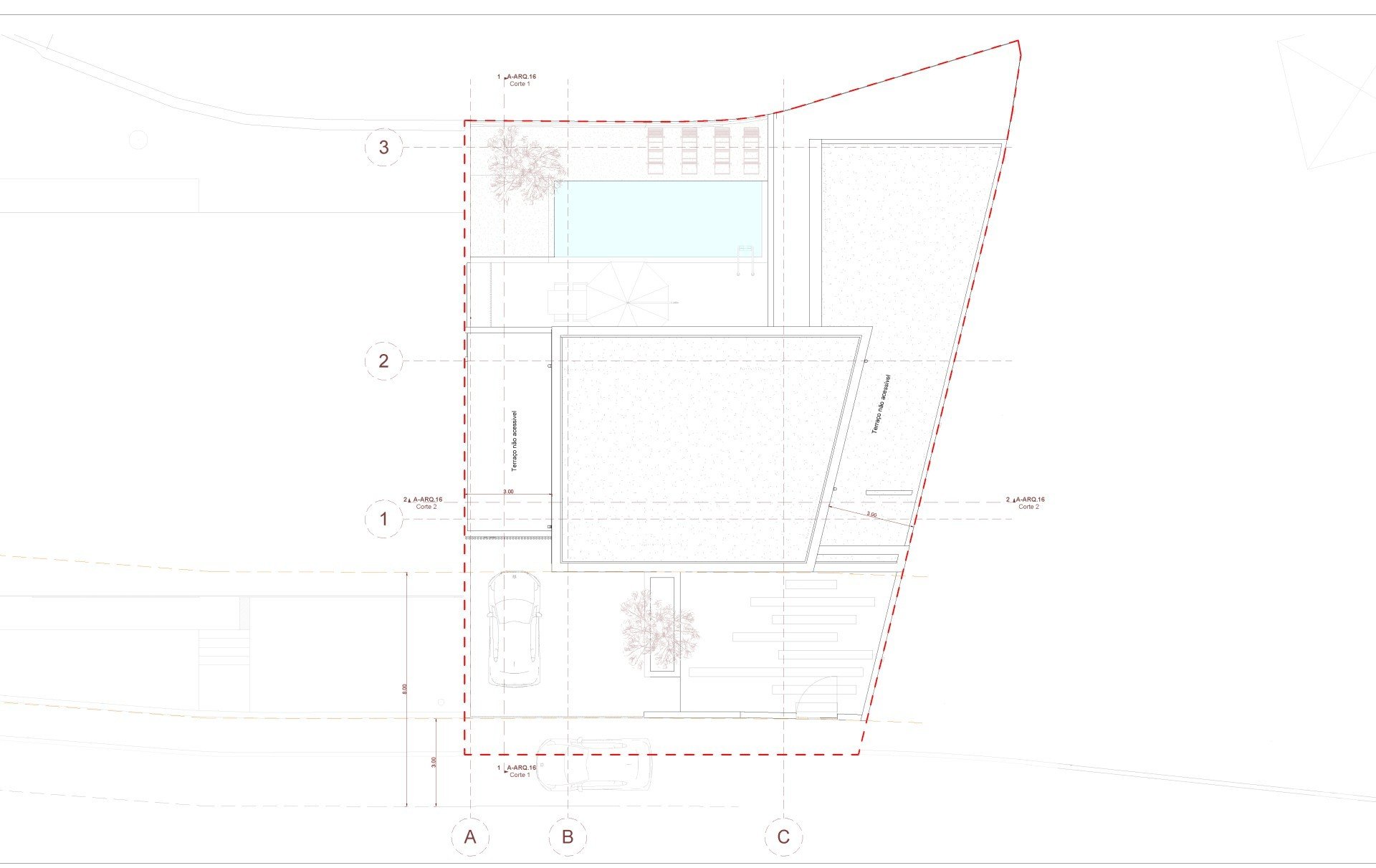
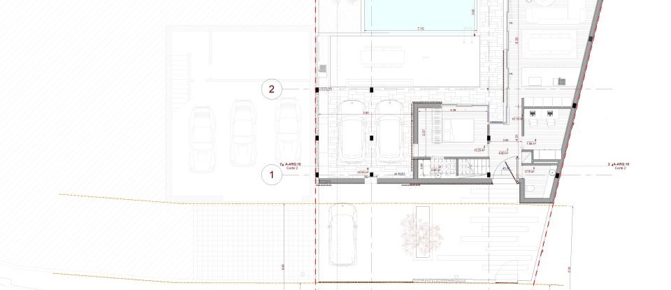
Villa de 3 chambres à coucher en construction dans un quartier résidentiel calme et peu dense à Palmeira de Faro (Esposende) Orientation de la villa, est (entrée et jardin), ouest et sud (piscine et jardin). Date d'achèvement : décembre 2026. Terrain d'une superficie de 363 m2 et d'une superficie de construction de 224 m2. Propriété avec 3 chambres en-suite, 5 salles de bains, salon et cuisine ouverte, buanderie, garage fermé pour deux voitures, piscine et jardins à l'arrière de la villa et jardin à l'avant. Surfaces des pièces : Rez-de-chaussée Chambre Suite 1 - 13.23 m2 Salle de bain attenante - 2.9 m2 Cuisine et salon - 42.19 m2 Bureau - 7.88 m2 Salle de bain de service - 3.75 m2 Hall d'entrée - 9.80 m2 Buanderie - 7.01 m2 Salle de bain extérieure - 5.18 m2 1er étage Chambre Suite 2 - 18.42 m2 Salle de bain attenante - 3.45 m2 Chambre Suite 3 - 17.74 m2 Salle de bain attenante - 7.13 m2 Hall de distribution - 9.61 m2 Services à proximité : Eau courante, Fibre optique, Emplacement : Route nationale 103 - 30 mètres Pharmacie Laguna - 360 mt Zone industrielle d'Esposende - 2 Km Accès A28 jonction Esposende (sortie/entrée 19) - 2,26 Km Modèle d'Esposende - 1.19 Km Centre d'Esposende - 3 Km Plage de Suave Mar (Esposende) - 6 Km Plage d'Ofir (Fão) - 6 Km CARTE DES FINITIONS Entrée : Sol en granit Murs : béton apparent, plâtre sablé peint et lambris en bois. Plafonds : béton apparent et plâtre sablé peint. Hall d'entrée et salon : Revêtement de sol KRONOTEX MAMMUT 12 mm. Murs Placoplâtre peint. Plafonds Placoplâtre peint. Plinthe en MDF laqué blanc. Portes laquées blanches. Poignées et ferrures en acier inoxydable, serrures à loquet magnétique. Installations sanitaires : Revêtement de sol en céramique de type Pamesa « At. Portofino Brilho 1ª 60x120R » ou équivalent. Murs Carreaux céramiques Pamesa « At, Portofino Brilho 1ª 60x120R » ou équivalent. Plafonds Plaque de plâtre hydrofuge, peinte. Portes laquées blanches. Poignées et ferrures en acier inoxydable, serrures à fermeture magnétique. Meubles suspendus. CHAMBRES : Revêtement de sol KRONOTEX MAMMUT 12 mm. Murs Placoplâtre peint. Plafonds Plaque de plâtre peinte. Plinthe en MDF laqué blanc. Portes laquées blanches. Poignées et ferrures en acier inoxydable, serrures à loquet magnétique. Armoires avec portes en MDF laqué, intérieur en MDF revêtu de mélamine « lin ». intérieur en MDF revêtu de mélamine « lin ». CUISINE : Revêtement de sol KRONOTEX MAMMUT 12mm. Murs Placoplâtre peint. Plafonds Plaque de plâtre, peinte. APPAREILS ÉLECTROMÉNAGERS : Appareils Bosch ou équivalent. Hotte aspirante, plaque de cuisson, four électrique, micro-ondes, réfrigérateur encastré, lave-vaisselle encastré. DIVERS : Cadres de fenêtres en aluminium « Cortizo » ou équivalent. Volets électriques en aluminium profilé avec polyuréthane à l'intérieur. Façade extérieure revêtue d'ETIC, de boiseries et de granit. Chauffage de l'eau sanitaire, système de pompe à chaleur. Chauffage par le sol. Pré-installation de l'AC (ne comprend pas la fourniture des unités murales extérieures Monospllit). Pré-installation de panneaux solaires (ne comprend pas la fourniture des panneaux). Pré-installation d'un système d'aspiration central (ne comprend pas l'aspirateur). Installation ITED (TV, TV câblée et Internet) Interphone vidéo. Piscine avec distributeur de sel (ne comprend pas la couverture ni la pompe à chaleur pour chauffer l'eau). Barbecue.
Réf : 137323
Diagnostic de performance énergétique (DPE)
Biens similaires

535 000 €


490 000 €



545 000 €

Villes à proximité
Autres types de bien à Palmeira de Faro e Curvos
Autres types de bien à proximité
Autres projets à Palmeira de Faro e Curvos