Maison T3 à Beato de 199 m²
Atouts
À propos de cette maison de 3 chambres à Beato, Lisboa
Maison jumelée moderne entièrement rénovée de 249 m2 – Beato
Rénovation complète en 2022 – Matériaux haut de gamme – 3 chambres + sous-sol aménagé – Terrasse, jardin et 2 places de parking
Découvrez cette élégante maison jumelée, entièrement restaurée en 2022, qui a conservé la façade de la maison d'origine des années 50. L'intérieur a été repensé dans un style contemporain, élégant et technologique.
Une propriété rare dans le quartier recherché de Beato, offrant un confort exceptionnel, des équipements de haute qualité et des espaces parfaitement optimisés.
- Caractéristiques générales
Surface brute : 249,36 m²
Surface utile : 199,20 m²
Surface du terrain : 191,70 m²
- Maison jumelée, exposition est/ouest
2 places de parking dans la propriété
Terrasse et jardin avec gazon synthétique haut de gamme (40 mm) de grande qualité
2 étages + grand sous-sol aménagé
- Équipements haut de gamme
Chauffage au sol dans toutes les salles de bains
Le sol est recouvert de vinyle dans toute la maison.
Panneaux solaires
Climatisation chaud/froid dans toute la maison
Fenêtres à double vitrage, moustiquaires et volets roulants électriques
Tout l'éclairage et stores peuvent être controlés par domotique depuis votre mobile, où que vous soyez dans le monde.
Alarme avec caméras et connexion directe à la police
Isolation thermique et acoustique optimisée
Matériaux de construction et finitions haut de gamme
Maison moderne conçue pour offrir un confort optimal au quotidien
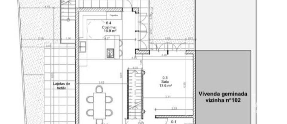
- Rez-de-chaussée – Espace de vie lumineux
Un étage entièrement dédié à la convivialité, baigné de lumière naturelle grâce à sa double exposition.
Salon de 17,60 m² avec accès direct à la terrasse et au jardin
Salle à manger de 19,40 m² ouverte sur la cuisine
Cuisine moderne équipée d'appareils électroménagers haut de gamme, avec îlot central de 16,90 m²
Grand réfrigérateur LG à double porte, Cave à vin Bosch, Four + micro-ondes Bosch, Plaque vitrocéramique Bosch 5 feux, Hotte aspirante Siemens, Lave-vaisselle Bosch
Hall d'entrée
WC invités spacieux avec lavabo
Un espace aux lignes épurées, pensé pour offrir fluidité et confort.
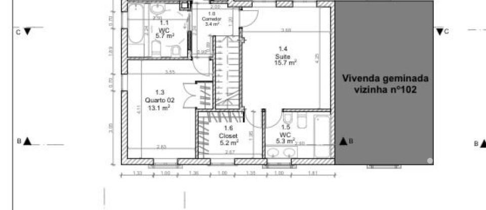
- Premier étage - Espace nuit
Toutes les chambres se trouvent à l'étage, garantissant tranquillité et intimité.
Suite parentale de 15,70 m²
Grande chambre lumineuse, dressing
Salle de bains privative de 5,30 m² avec :
Douche à hydromassage, double lavabo, bidet
Chauffage au sol
- Deux autres chambres avec placards intégrés
Une chambre de 12,10 m² et une autre de 13,20 m²
Elles partagent une salle de bains complète de 5,70 m² avec Douche + baignoire, Grand lavabo, Chauffage au sol
- Sous-sol aménagé de 61,60 m² – Polyvalent et fonctionnel
Actuellement accessible par l'extérieur, mais avec possibilité de créer un accès intérieur depuis le rez-de-chaussée.
Grande salle polyvalente (actuellement salle de jeux/gymnase)
Salle technique (machines/buanderie)
Espace de rangement
Un étage supplémentaire idéal pour les loisirs, le rangement ou un espace professionnel ou pour créer un espace pour les invités.
Le quartier de Beato
Ancien quartier industriel sur les rives du Tage, Beato connaît aujourd'hui un dynamisme exceptionnel grâce à la réhabilitation de ses usines, galeries et espaces créatifs. C'est l'un des quartiers les plus prometteurs de Lisbonne.
Points d'intérêt à proximité
- Hub Criativo do Beato – Pôle d'innovation, de start-ups et d'espaces culturels
- Convento do Beato – Événements, expositions
- Terrasses et restaurants branchés au bord du Tage
- Proximité de Marvila, Santa Apolónia, Parque das Nações
- Nombreux magasins, supermarchés, transports (bus, future extension ferroviaire)
Commodités
Écoles, pharmacies, cafés et services accessibles à pied
Accès rapide au centre-ville et à l'aéroport
Environnement familial, calme et en pleine croissance
Pourquoi cette maison est-elle unique ?
✔ Rénovation haut de gamme récente
✔ Équipements modernes et technologies intégrées
✔ Espaces parfaitement optimisés
✔ Cave équipée offrant de multiples possibilités
✔ Jardin confortable et facile à entretenir
✔ Emplacement stratégique dans l'un des quartiers les plus prometteurs de Lisbonne
Le fait que le quartier soit en pleine reconversion urbaine et économique (avec le Beato Innovation District) en fait un choix très attractif pour les acheteurs ou locataires modernes : start-ups, jeunes familles, expatriés, professionnels.
Équipements
Intérieur
Extérieur
Autre
Bilan énergétique
Consommation énergétique :
Cette maison/villa est située à Beato.





