

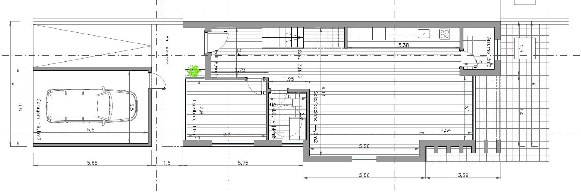
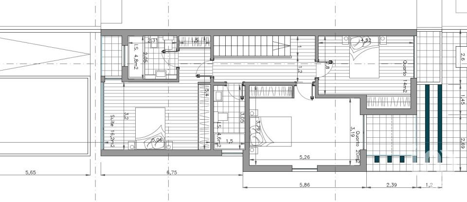
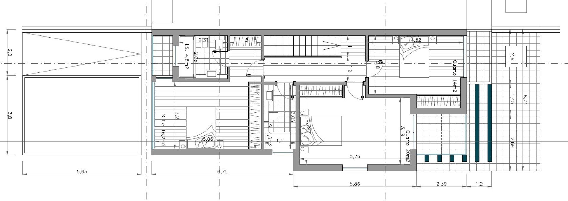
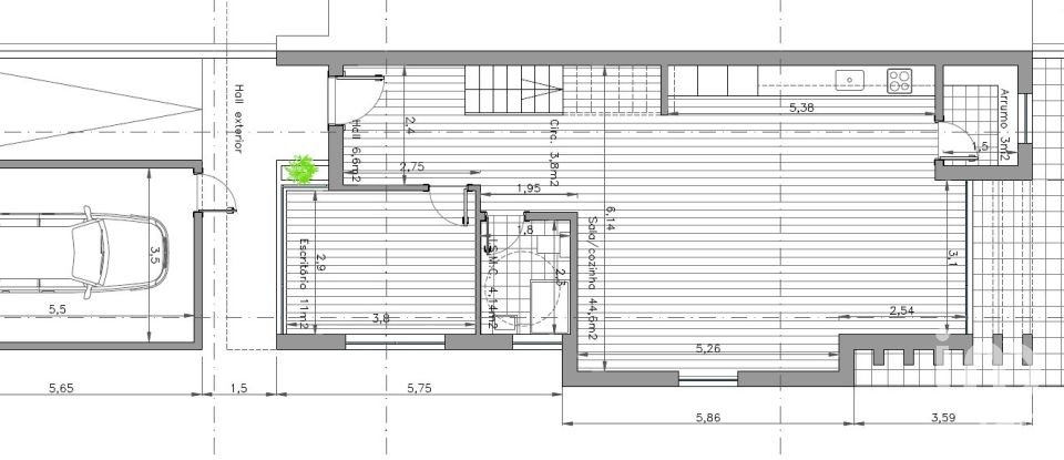
Magnifique villa de 3 chambres à vendre à Aradas, Aveiro, dont l'achèvement est prévu en juillet 2025. Cette résidence exclusive promet un style de vie sophistiqué. Situé à quelques kilomètres du centre d'Aveiro, il allie le confort d'un chez-soi dans un quartier résidentiel à la proximité du centre urbain de la capitale du district, de l'université, de la gare routière, etc... Chaque détail reflète une conception soignée, de l'élégante des salles aux zones de médias sociaux impressionnantes. Les finitions luxueuses se démarquent, offrant une esthétique moderne et fonctionnelle. Les grandes fenêtres laissent entrer la lumière naturelle, créant des espaces lumineux et aérés. Cette villa est plus qu'une maison ; C'est une expression de prestige et de confort, une opportunité unique de vivre avec raffinement dans l'une des régions les plus recherchées d'Aveiro. Bien qu'il soit encore en construction, il est encore possible de choisir les matériaux qui vous conviennent le mieux. Les personnes intéressées pourront se voir remettre un plan de finition ainsi que d'autres documents éventuellement requis. Pour moi, la chose la plus importante, ce sont les gens, et c'est pourquoi je me soucie de fournir un service excellent et innovant à mes clients. L’achat d’une propriété est toujours l’une des décisions les plus importantes de votre vie. L'ensemble du processus d'achat d'une propriété est assez complexe et implique un ensemble varié de bureaucraties qui doivent être traitées avec le soin et l'attention nécessaires de la part d'un professionnel compétent dans le domaine. Vous pouvez donc compter sur moi pour vous accompagner, vous soutenir et vous guider tout au long du processus. différentes étapes de l'achat, afin que ce soit un processus sans revers et que l'accord final soit le plus avantageux pour toutes les personnes impliquées.
Réf : 111674
Diagnostic de performance énergétique (DPE)
Biens similaires



280 000 €


Autres types de bien à Aradas
Autres types de bien à proximité