

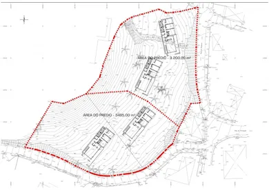
+ TERRENO URBANO 6.587 M² | VIABILIDADE PARA 4 MORADIAS INDEPENDENTES | CALDAS DA RAINHA – COSTA DE PRATA Oportunidade rara para quem deseja investir, construir ou desenvolver um projeto de sonho na região Oeste de Portugal. Este terreno urbano, com 6.587 m², situa-se em Formigal, freguesia de Salir de Matos, Caldas da Rainha, numa zona tranquila, com vista desafogada e excelente exposição solar — ideal para quem procura qualidade de vida próxima da natureza, com ligação rápida ao litoral e à cidade. =============================== + LOCALIZAÇÃO PRIVILEGIADA Este terreno encontra-se num ambiente rural aprazível, mas com todas as vantagens de estar inserido em solo urbano. A poucos minutos de distância de: - 8 minutos de Caldas da Rainha - 15 minutos da praia da Foz do Arelho - 20 minutos da Baía de São Martinho do Porto - 25 minutos da Vila de Óbidos - 50 minutos de Lisboa Excelente opção para quem procura tranquilidade sem abdicar da proximidade ao mar, ao comércio e a infraestruturas essenciais. =============================== + CARACTERÍSTICAS DO TERRENO - Área total: 6.587 m² - Índice de construção (PDM): 0,29 - Área bruta de construção estimada: ±1.910 m² - Duas frentes de rua - Excelente exposição solar e vistas livres - Acessos e infraestruturas à porta: eletricidade, água e comunicações =============================== + ESTUDO DE VIABILIDADE Existe um estudo de viabilidade preliminar que prevê a construção de 4 moradias isoladas, cada uma com terreno individual e privacidade. Este estudo define o posicionamento ideal das construções no lote, bem como a sua distribuição viária interna, respeitando os parâmetros urbanísticos da zona. Nota: as imagens e ilustrações anexadas têm apenas carácter indicativo e não correspondem a projetos aprovados. =============================== + POTENCIAL E POSSIBILIDADES O terreno pode ser vendido na totalidade ou dividido em dois lotes independentes, já previstos no estudo: - Lote A – 3.495 m² → 90.000 EUR - Lote B – 3.200 m² → 85.000 EUR - Venda total → 165.000 EUR Ideal para: - Construção de moradia própria - Projeto familiar (várias unidades) - Investidores promotores - Alojamento turístico rural Com a forte valorização da região Oeste, esta é uma aposta segura e estratégica. =============================== + AGENDE A SUA VISITA Oportunidades com esta escala, localização e flexibilidade são cada vez mais raras. Para mais informações, envio do estudo de viabilidade ou agendamento de visita
Referência: 144720
Imóveis semelhantes


157 500 €


