Terreno urbano em Vermelha de 514 m²
Sobre este terreno em Vermelha, Vermelha
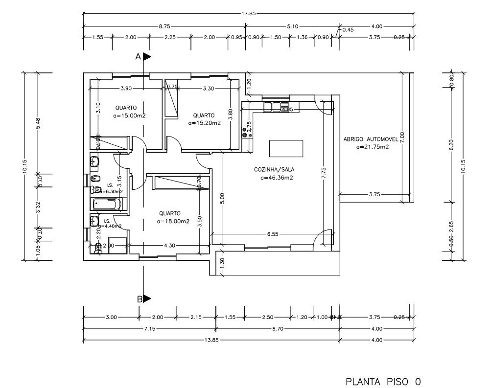
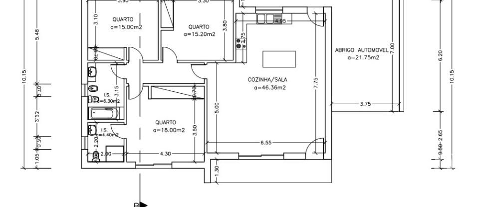
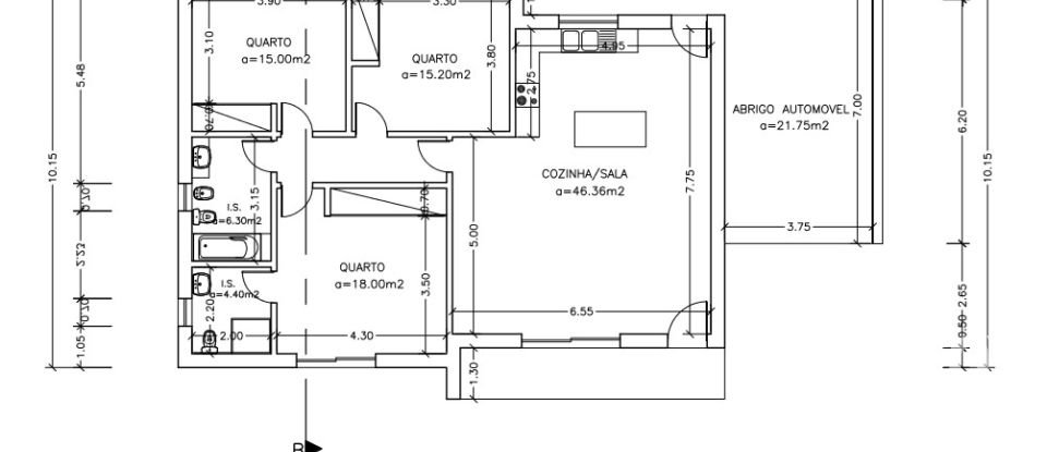
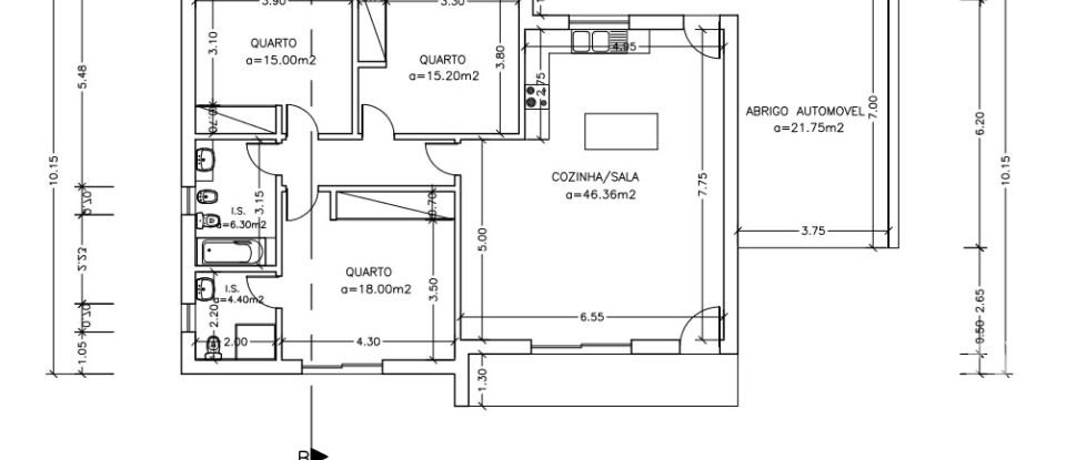
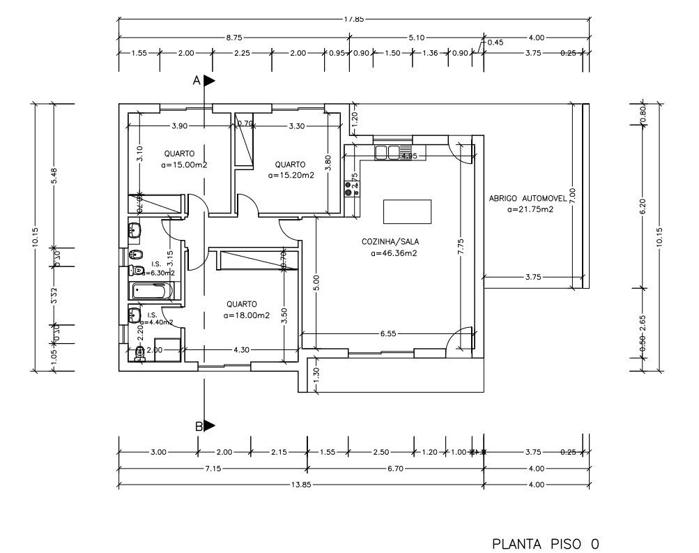
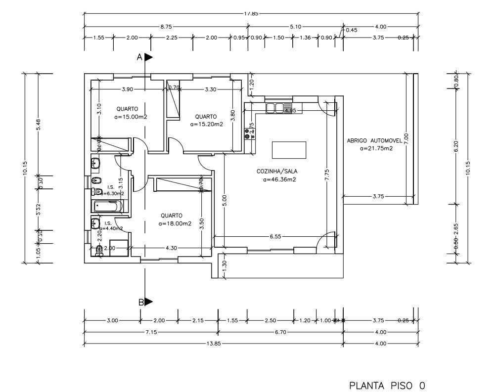
Moradia Nova T3 Terrea com 514m2 de terreno.
Lote muito bem situado e com uma vista desafogada. Inserido numa zona residencial, podendo usufruir da calma e tranquilidade depois de um dia de trabalho.
Esta moradia dispõe:
- Cozinha e sala open space;
- 2 Quartos com roupeiros embutidos;
- 1 Quarto Suite (com closet e wc privado);
- Casa de banho;
- Despensa;
- Abrigo de automóvel.
Prazo de construção: 12 meses. Inclui todos os projetos necessários, licenças e taxas camarárias, entregue chave na mão!
Caracteristicas:
- Lote de 514m2;
- Portas e janelas em PVC com rutura termica e oscilobatentes;
- Pré instalação de Ar-condicionado;
- Estores eletricos;
- Piso vinilico nos quartos cozinha e sala;
- Possibilidade de construção de piscina.
Com todas as infraestruturas (água, esgoto, telecomunicações e luz) por perto, sendo apenas necessário solicitar as respetivas ligações junto às Entidades competentes.
Situado numa zona com excelente exposição solar.
Têm ainda nas proximidades todo o tipo de comércios e serviços.
Próximo das maravilhosas praias do Oeste: Peniche, Baleal, Areia Branca, Foz do Arelho, Santa Cruz e Nazaré.
Apenas 15 minutos da Serra de Montejunto, onde poderá ir à descoberta da sua natureza magnífica.
Fica ainda a:
A 10 minutos do Jardim Budha Eden.
A 10 minutos da auto estrada A8.
A 25 minutos de Torres Vedras.
A 15 minutos de Caldas da Rainha.
A 30 minutos da auto estrada A1.
A 45 minutos de Lisboa.
Venha conhecer! Marque já a sua visita e comece a idealizar a sua casa de sonho aqui!
Equipamentos
Exterior
Este terreno está localizada em Vermelha.




