Terreno urbano em São Miguel, Santa Eufémia e Rabaçal de 1 408 m²
Sobre este terreno em "São Miguel, Coimbra
Terreno de construção no centro da vila do Rabaçal, com 1408 metros quadrados de área total.
A vila do Rabaçal é muito conhecida pela produção do delicioso queijo e azeite. Também é nesta vila que encontra uma vila romana com um magnífico museu.
É conhecida também por receber muito bem quem visita esta zona, tem excelentes restaurantes e cafetarias, alojamento e rota de passagem dos caminheiros de Santiago de Compostela e Fátima.
Encontra-se a 25 minutos (27 km) da cidade de Coimbra e o acesso é muito bom!
Na vila tem tudo o que necessita: supermercado, escola, transportes públicos, restaurante e a possibilidade de viver numa zona verde e calma, com eletricidade, água, saneamento e fibra ótica.
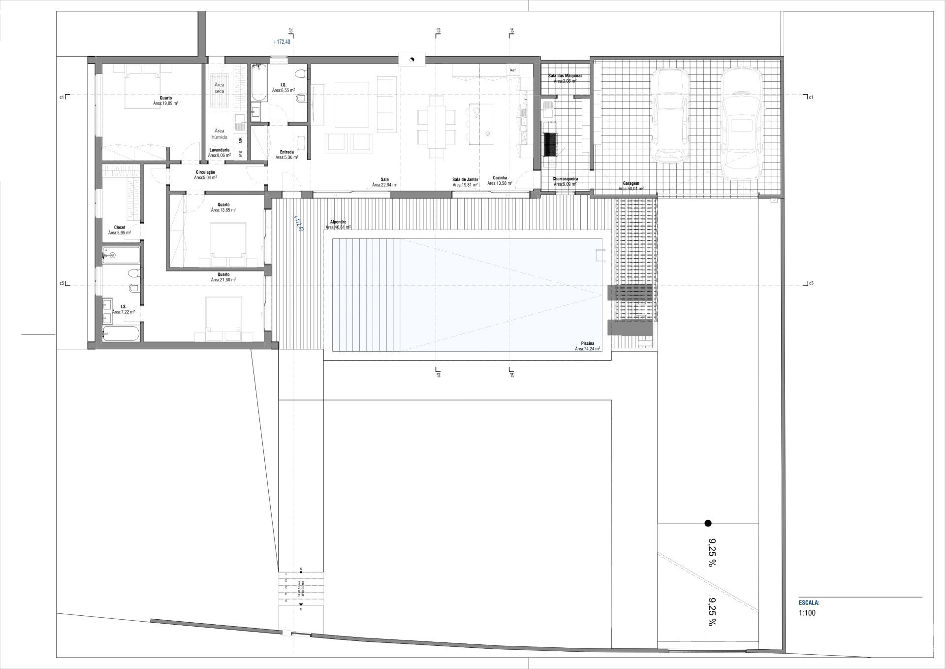
Para a propriedade, já existe aprovado um projeto que poderá ser alterado e adaptado ao gosto pessoal do comprador.
- Terreno plano com 1408 m2 de área total
- Projeto aprovado
Distâncias relevantes:
- Vila de Penela a 8,8 km
- Vila de Condeixa a 11 km
- Cidade de Coimbra a 27 km
- Cidade de Lisboa a 191 km
- Cidade do Porto a 139 km
Equipamentos
Exterior
Este terreno está localizada em "São Miguel.










