Terreno urbano em São Brás de Alportel de 1 170 m²
Sobre este terreno em São Brás de Alportel, São Brás de Alportel
Excelente Oportunidade em São Brás de Alportel
Descubra este terreno exclusivo com 1.170 m², situado a apenas 5 minutos do centro de São Brás de Alportel, numa zona calma, com excelente acesso e total privacidade.
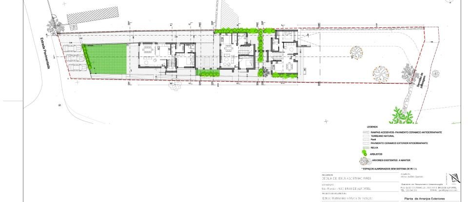
O lote possui projeto aprovado para a construção de 3 moradias unifamiliares modernas, cada uma com dois pisos, garagem privativa e piscina, pensadas para oferecer o máximo de conforto, funcionalidade e qualidade de vida.
Com uma localização privilegiada, próximo de todas as infraestruturas essenciais, este é o investimento ideal tanto para quem procura construir a sua casa de sonho, como para quem deseja apostar num projeto imobiliário de elevado potencial.
Destaques:
• Área total: 1.170 m²
• Projeto aprovado para 3 moradias
• Arquitetura moderna e funcional
• Garagem no projeto e espaço para construir uma piscina em cada unidade.
• Excelente acessibilidade e proximidade a serviços
Caracteristicas:
Paineis Solares
Pré instalação de ar Condicionado
Parede em reboco, cor branca Guardas em metal pintadas de cor tipo NCS 6020Y-10-R Painéis Metálicos pintados de cor tipo NCS 6020Y-10-R Caixilhos em alúminio, com corte térmico e vidro duplo escuro , cor castanha tipo Domal Portão de garagem de rolo, cor tipo NCS 6020Y-10-R Porta da entrada em alumínio, com corte térmico e vidro duplo escuro , cor castanha tipo Domal Ac32 Chaminé inox Pergula em alvenaria e ripado metalico cor tipo NCS 6020Y-10-R Muro em pedra natural Chaminé em alvenaria rebocada e pintada de branco
Equipamentos
Exterior
Este terreno está localizada em São Brás de Alportel.















