Moradia T4 em Gafanha do Carmo de 200 m²
Sobre esta casa / moradia de 4 quartos em Gafanha do Carmo, Gafanha do Carmo
Moradia T4 com piscina e vista para a ria – Aveiro - Gafanha do Carmo
Construção nova - final de 2025.
Moradia T4 localizada na tranquila Gafanha do Carmo, a poucos minutos das praias da região e a curta distância da cidade de Aveiro.
Um imóvel que alia modernidade, conforto e qualidade de vida — ideal para quem valoriza a paz da natureza sem abdicar da proximidade com o litoral e a cidade.
Implantada num generoso terreno de 1.890 m², a propriedade oferece uma vista deslumbrante, excelente exposição solar e ambientes amplos e luminosos.
Características principais:
•4 quartos com varanda, sendo um deles suíte com closet e ampla varanda com vista para a ria;
•4 casas de banho, incluindo a da suíte e uma no rés do chão;
•Cozinha moderna e totalmente equipada, em conceito open space com a sala de estar;
•Sala espaçosa e luminosa, com acesso direto ao exterior;
•Ar condicionado e bomba de calor, para conforto térmico em todas as estações;
•Acabamentos contemporâneos de alta qualidade e isolamento térmico e acústico;
Exterior:
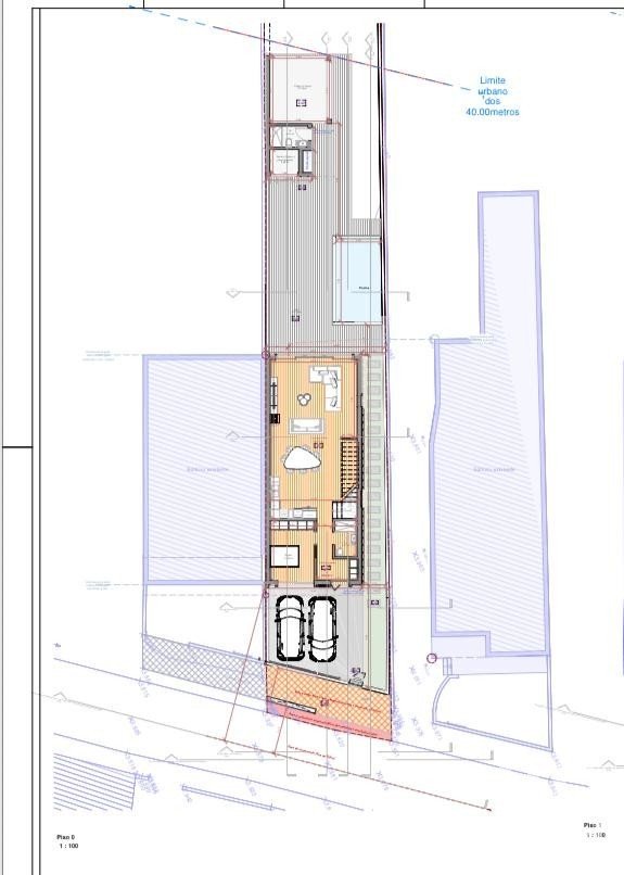
•Piscina privativa com área de lazer;
•Pátio e zona de churrasqueira;
•Jardim amplo com excelente exposição solar;
•Anexos multifuncionais, com casa de banho e arrumos/casa das máquinas – ideais para escritório;
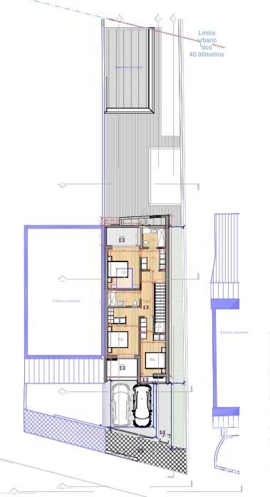
•Estacionamento privativo para 2 carros.
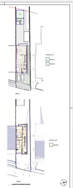
Distribuição dos espaços:
Rés do chão:
•Hall de entrada com arrumação;
•1 quarto;
•1 casa de banho completa;
•Cozinha e sala em open space.
Primeiro piso:
•Hall de distribuição;
•3 quartos (todos com varanda);
•1 suíte com closet e vista para a ria;
•1 casa de banho de apoio aos restantes quartos.
Se procura um lar com conforto, estilo, privacidade e ligação à natureza, esta moradia é a escolha perfeita.
Aproveite a oportunidade de viver com qualidade e tranquilidade, numa zona de grande beleza natural e com excelentes acessos.
Equipamentos
Exterior
Outros
Consumo de energia
Classe energética :
Esta casa / vila está localizada em Gafanha do Carmo.






