Moradia T4 em Fernão Ferro de 204 m²
Características
Sobre esta casa / moradia de 4 quartos em Fernão Ferro, Fernão Ferro
🏡 Moradia em Fernão Ferro – Lote de 512m²
Apresentamos esta magnífica moradia inserida num generoso lote de 512m², localizada em Fernão Ferro — uma zona residencial tranquila e em crescimento, ideal para quem valoriza qualidade de vida e conforto.
✨ Destaques da Propriedade:
Acabamentos de excelência e equipamentos de alta qualidade
Isolamento térmico e acústico com caixilharia em PVC, vidros duplos e corte térmico
Conforto garantido com ar condicionado em todas as divisões
Eficiência energética com revestimento capoto e painéis solares (depósito de 200L)
Segurança e comodidade com vídeo porteiro, portões automáticos e aspiração central
Categoria Energética: A+
🍽️ Cozinha totalmente equipada
Pronta para uso, com design moderno e funcional.
🌿 Espaço exterior ideal para lazer
Possibilidade de construir piscina aquecida por bomba de calor, churrasqueira e alpendre — perfeito para momentos em família ou com amigos.
🛏️ Composição da Moradia:
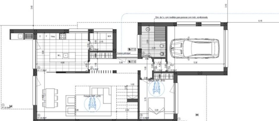
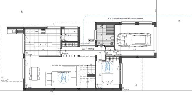
Rés-do-chão:
Hall com roupeiro (9 m²)
Cozinha equipada (18 m²)
Lavandaria (3,55 m²)
Sala ampla (40 m²)
Quarto com roupeiro (13 m²)
Casa de banho (6,5 m²)
Garagem (23 m²)
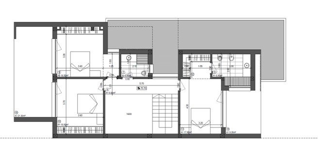
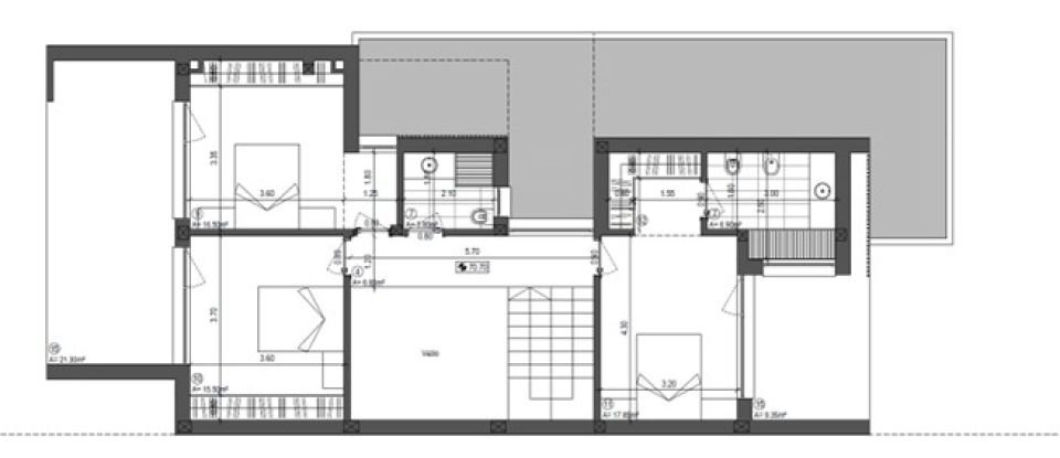
1º Andar:
Corredor dos quartos (6,85 m²)
Suite com closet (18 m²) + Casa de banho da suite (7 m²)
Quarto 2 com roupeiro (16,5 m²)
Quarto 3 com roupeiro (15,5 m²)
Varandas (20 m² e 9,35 m²)
Exterior:
Área para piscina
Alpendre com churrasqueira
Garagem
Anexo para arrumos e máquinas
Equipamentos
Exterior
Outros
Consumo de energia
Classe energética :
Esta casa / vila está localizada em Fernão Ferro.














