Moradia T3 em Ovar, São João, Arada e São Vicente de Pereira Jusã de 229 m²
Sobre esta casa / moradia de 3 quartos em Ovar, São João, Arada e São Vicente de Pereira Jusã, Ovar, São João, Arada e São Vicente de Pereira Jusã
À venda em plena zona premium da cidade de Ovar, encontram-se estas duas moradias geminadas para recuperar, com projeto de construção já aprovado na Câmara Municipal de Ovar.
O projecto visa a construção de uma moradia unifamiliar contemporânea, inserida num terreno com 391 m². Esta habitação distingue-se pelo design moderno, pela funcionalidade dos espaços e pela excelente integração entre interior e exterior, proporcionando um ambiente confortável e harmonioso para a vida familiar.
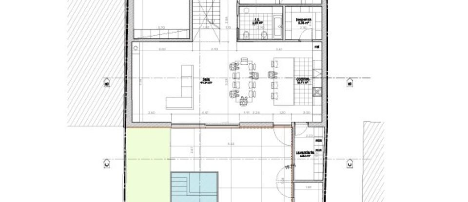
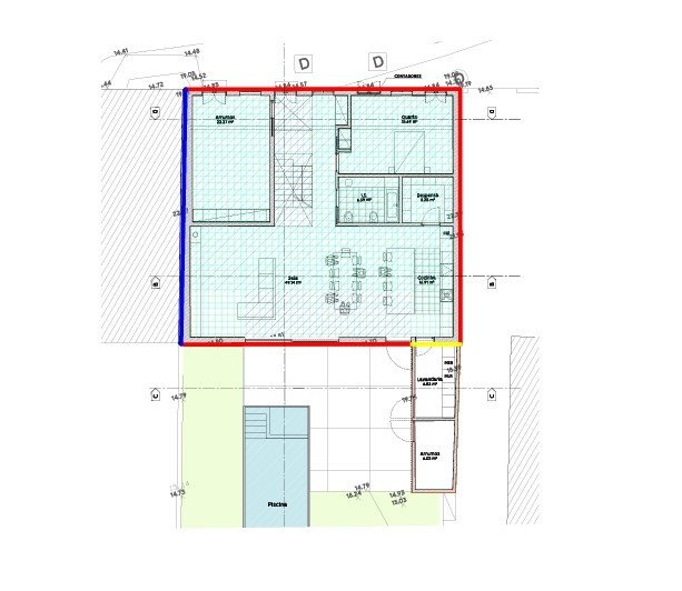
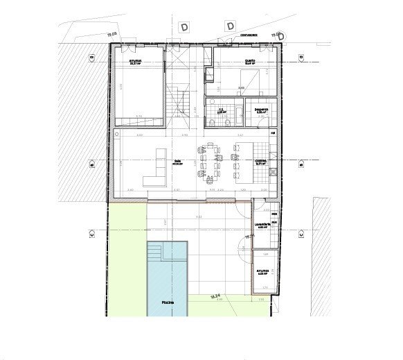
A moradia desenvolve-se em dois pisos. No rés do chão, a zona social é composta por uma ampla sala e cozinha em open space, com acesso direto ao jardim e à piscina, criando uma área fluida e luminosa que convida ao convívio e à partilha. Neste piso encontram-se ainda dois quartos, um deles ideal para escritório ou quarto de hóspedes, uma casa de banho e uma casa das máquinas que funciona também como lavandaria e apoio à piscina. No exterior, o jardim terá uma pérgola, relvado e piscina privada, oferecendo um espaço de lazer perfeito para momentos de descanso e convívio ao ar livre.
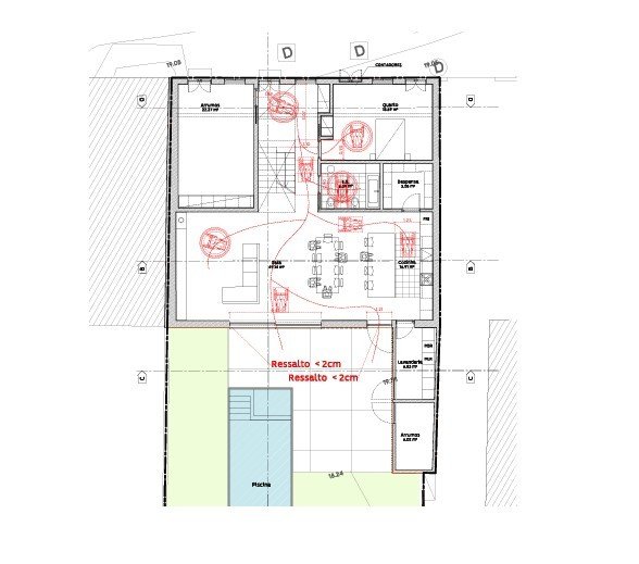
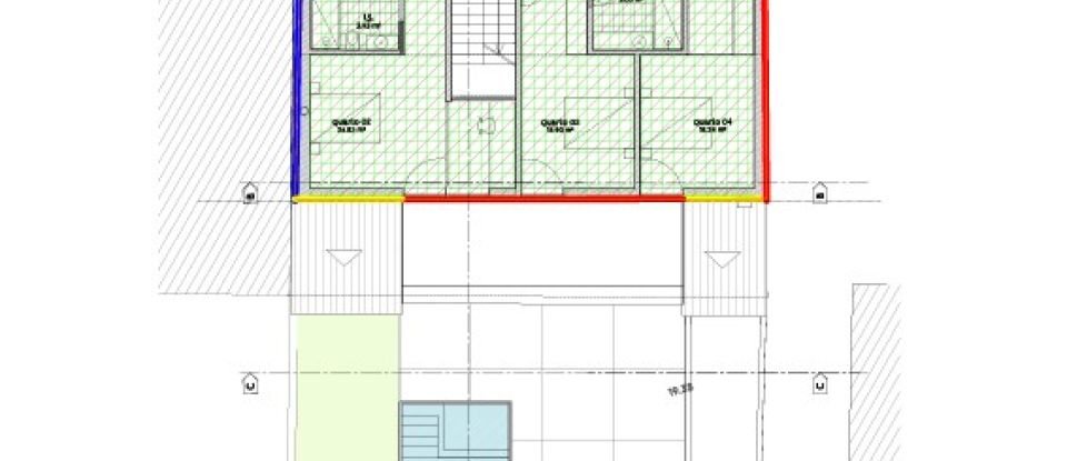
No primeiro andar situa-se a área mais privada da habitação. A suíte principal integra um espaço de escritório e um closet, garantindo conforto e privacidade. Os dois quartos adicionais incluem roupeiros embutidos e partilham uma casa de banho de apoio. Todos os quartos têm acesso a uma varanda ampla, com vista para o jardim e a piscina, reforçando a ligação da casa ao exterior.
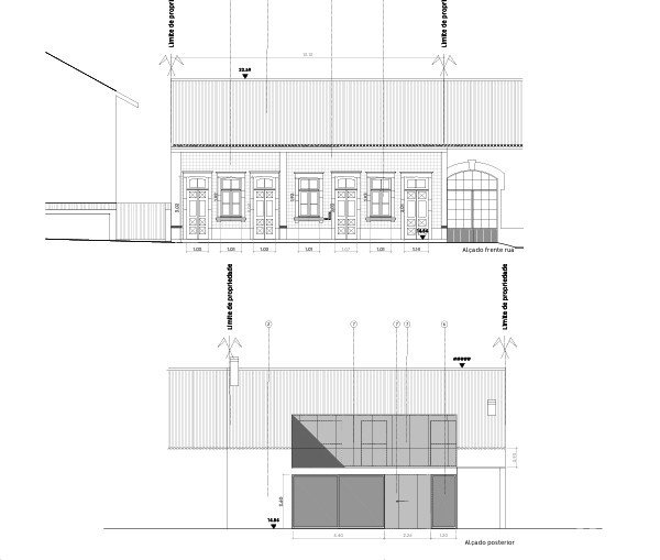
O projeto apresenta uma linguagem arquitetónica contemporânea, com linhas sóbrias e elegantes. As fachadas são revestidas com sistema ETICS e acabamento rebocado, as caixilharias são em madeira e incluem painéis deslizantes termomodificados, e a cobertura é em telha cerâmica. Destacam-se ainda elementos decorativos em azulejo tradicional recuperado, que conferem identidade e um toque de autenticidade ao conjunto.
O projeto cumpre integralmente as normas do Decreto-Lei n.º 101-D/2020, assegurando um excelente desempenho térmico e eficiência energética. A moradia apresenta uma área de implantação de 176 m² e uma área bruta de construção de 273,4 m², distribuída de forma equilibrada entre os dois pisos, valorizando o conforto, a funcionalidade e a estética contemporânea.
Esta é uma oportunidade única para construir uma casa moderna e distinta, com projeto aprovado e pronto a iniciar, numa zona residencial tranquila e de grande qualidade.
Agende agora a sua visita comigo.
Estação de comboios - 10 minutos
Praia - 6 minutos
Centro da cidade - 5 minutos
Acesso à autoestrada - 5 minutos
Equipamentos
Exterior
Outros
Consumo de energia
Classe energética :
Esta casa / vila está localizada em Ovar, São João, Arada e São Vicente de Pereira Jusã.










