Moradia T3 em Fernão Ferro de 140 m²
Sobre esta casa / moradia de 3 quartos em Fernão Ferro, Fernão Ferro
OFERTA DA ESCRITURA A CLIENTES IAD PORTUGAL
Apresentamos uma magnífica moradia geminada t3 de dois pisos no Pinhal General, com otimas areas onde o design elegante se alia a funcionalidades modernas para proporcionar um lar confortável e acolhedor.
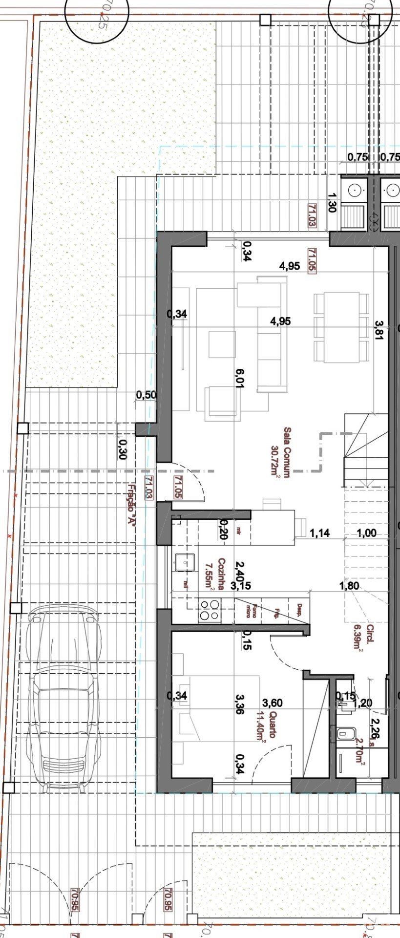
Piso térreo
Hall de entrada com WC social.
Ampla sala de estar em open space com cozinha totalmente equipada (38,27 m²), perfeita para momentos de convívio.
Quarto com 11,40 m², roupeiro embutido e acesso direto ao jardim.
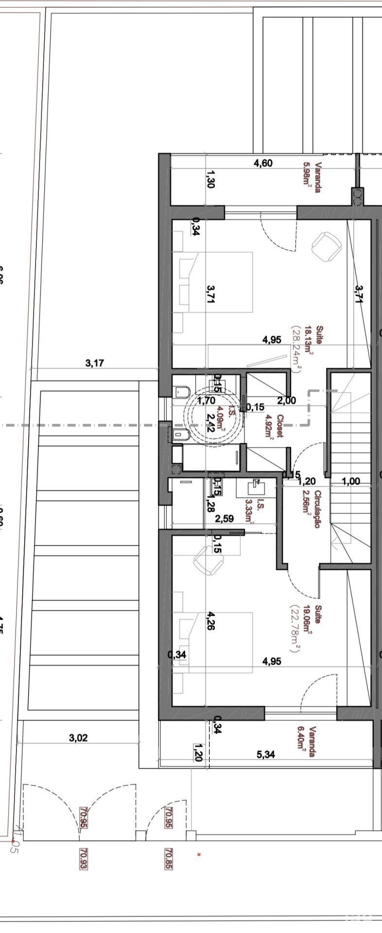
Primeiro piso
Duas suítes com closet e wc com 28,24 e 22,78m2 ambas com varandas privadas
Todos as divisões apresentam otimos detalhes de construção e beneficiam de excelente luz natural.
Exterior
Generoso jardim com churrasqueira e lava-loiças, ideal para momentos de lazer.
Excelente exposição solar.
Conforto e tecnologia
Alarme pré-intrusão e vídeo-porteiro
Pré-instalação de painéis fotovoltaicos
Estores elétricos e vidros duplos
Ponto de carregamento para veículos elétricos
Pré-instalação de ar condicionado e aspiração central
Porta principal blindada e portão automático
Localização
Situada numa zona residencial tranquila e familiar, a poucos minutos das praias e com ótimos acessos a Lisboa. Próxima de escolas, comércio, restaurantes e serviços, é a escolha ideal para quem procura espaço, funcionalidade e sofisticação.
Acompanhamento completo até à escritura para total tranquilidade.
📞 Agende já a sua visita ou peça mais informações.
Equipamentos
Exterior
Outros
Consumo de energia
Classe energética :
Esta casa / vila está localizada em Fernão Ferro.












