

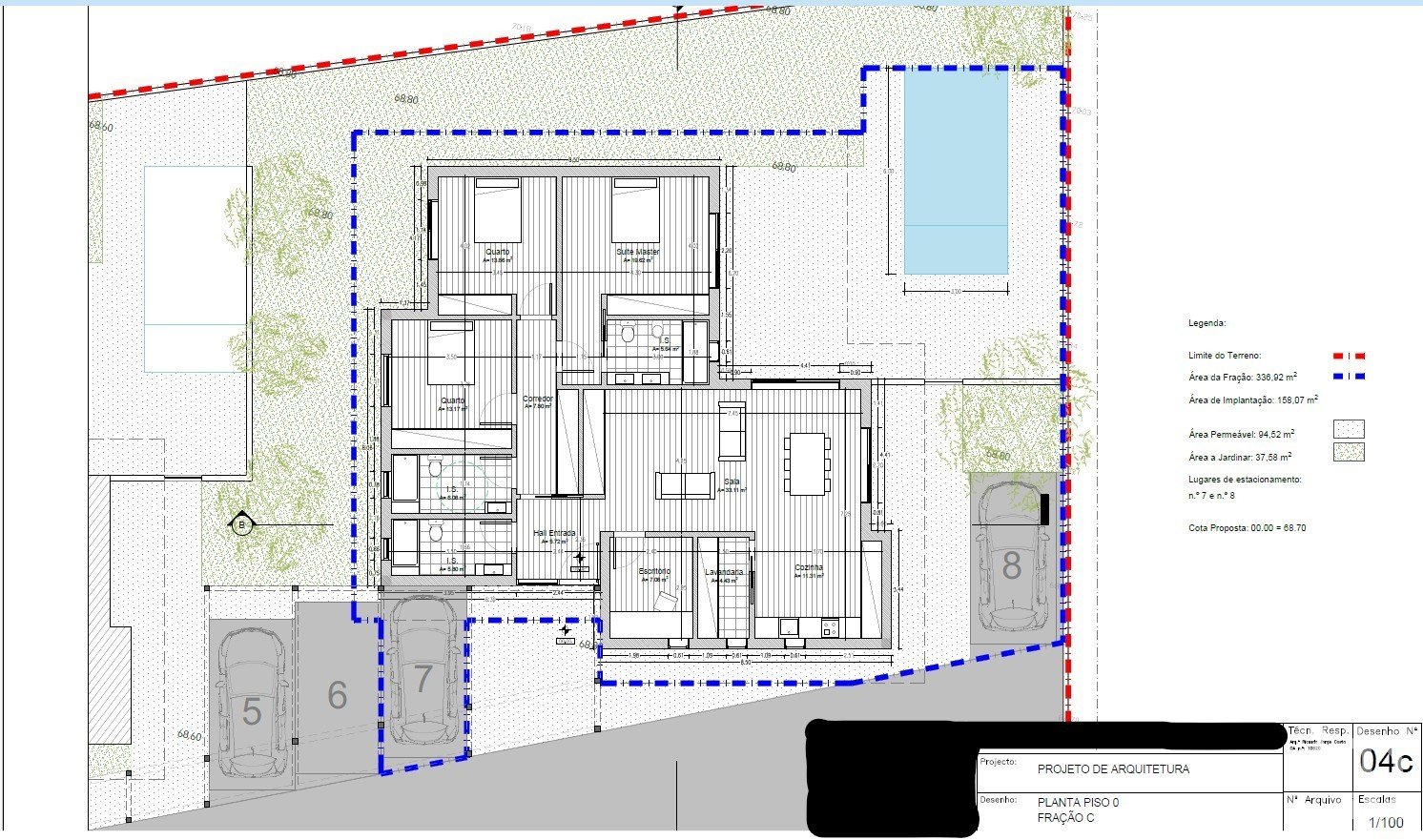
🏡 Moradia Individual em Madeira Nórdica com Piscina Privativa e Jardim – A 15 minutos das Praias de Santa Cruz Apresentamos esta moradia T3 + 1, inserida num condomínio de apenas 3 moradias, construída em madeira nórdica certificada, um material nobre, sustentável e altamente resistente. Esta escolha não só proporciona um visual moderno e acolhedor, como também assegura um excelente desempenho energético e conforto durante todo o ano, graças ao isolamento térmico e acústico de alta qualidade. Com uma arquitetura pensada para o bem-estar e a funcionalidade, a moradia tem uma tipologia T3 + Escritório, composta por: Três quartos com roupeiros embutidos Escritório (ideal para trabalho remoto ou como quarto adicional) Cozinha e sala em open space, promovendo a convivência em família Lavandaria independente Arrumação adicional no corredor De realçar: - Piscina de água salgada - Bomba de calor para aquecimento de águas sanitárias - Lavandaria equipada com máquinas lavar e secar BOSCH - Cozinha totalmente equipada com equipamento BOSCH ou semelhante - Pré-instalação Wall Box - Jardim a toda a volta da casa, ideal para desfrutar do ar livre com total privacidade E muito mais. A moradia encontra-se em fase avançada de construção, sendo ainda possível personalizar alguns acabamentos ao seu gosto. A localização é um dos grandes destaques: está situada numa zona calma, com vista desafogada para o campo, mas com todas as comodidades por perto. A poucos minutos encontrará comércio local, supermercados, bancos, escolas e colégios, incluindo o prestigiado Externato de Pena Firme, muito reconhecido na região. Para os amantes do mar e da natureza, as praias de Santa Cruz, Santa Rita, Porto Novo e Praia Azul ficam a apenas 15 minutos de distância. É o equilíbrio perfeito entre tranquilidade, qualidade de vida e acessibilidade. Esta moradia é ideal tanto como residência permanente como para casa de férias ou investimento. ✨ Está à procura de uma casa com charme, conforto e qualidade de construção? Esta pode ser a sua nova casa. *As fotos existentes no anúncio são apenas modelos não vinculando a Imobiliária nem o Promotor, sendo apenas modelos de possíveis acabamentos das moradias. Os mapas de acabamentos serão parte integrante dos respetivos contratos de promessa de compra e venda a celebrar.
Referência: 143175
Classe energética
Imóveis semelhantes


480 000 €


545 000 €


Localidades próximas
Outros tipos de imóveis em A dos Cunhados e Maceira
Outros tipos de imóveisnas proximidades
Outros projetos em A dos Cunhados e Maceira