Moradia T2 em Nogueira, Meixedo e Vilar de Murteda de 101 m²
Sobre esta casa / moradia de 2 quartos em "Nogueira, Vilar de Murteda
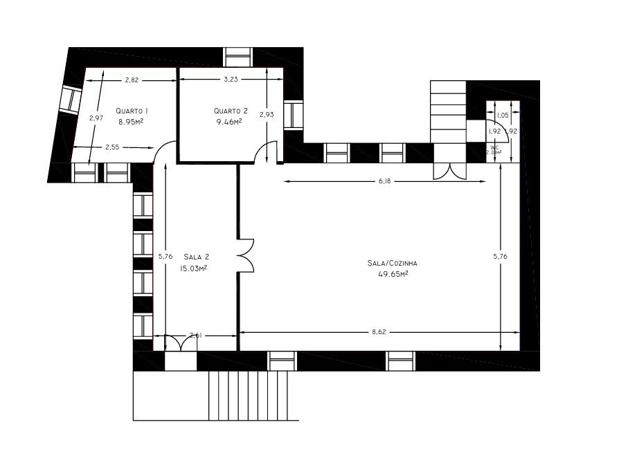
MORADIA EM PEDRA PARA RENOVAR EM VILAR DE MURTEDA
Descubra esta moradia em pedra, de dois pisos, situada em Vilar de Murteda, que oferece a possibilidade de criar a casa dos seus sonhos, num ambiente sereno, adaptando-a ao seu gosto e estilo de vida.
A área do terreno adjacente possibilita a criação de um quintal ou jardim personalizada.
Um investimento numa zona turística, com potencial de valorização para desfrutar da paz e tranquilidade da vida no campo e de fácil acesso aos centros urbanos.
Se procura uma casa acolhedora com potencial para transformar num verdadeiro refúgio, esta é a oportunidade que estava à espera. Marque já a sua visita e comece a planear a renovação do seu projeto de vida, em Vilar de Murteda.
CONHECE VILAR DE MURTEDA?
Descubra o Encanto de Vilar de Murteda, uma das freguesias de Viana do Castelo, uma aldeia que respira história, natureza e tranquilidade. Com suas ruas e casas tradicionais, é o destino perfeito para aqueles que buscam escapar do stress da vida urbana e se conectar com a natureza e a comunidade.
Rodeada por paisagens naturais deslumbrantes, incluindo montanhas, vales e rios, como o Parque de Lazer da Cascata do Pereiro. É o local ideal para amantes de atividades ao ar livre, como caminhadas, bicicleta e pesca.
Conhecida pela sua comunidade acolhedora e hospitaleira, onde todos se conhecem e se ajudam.
É um lugar onde a tradição e a cultura são valorizadas e onde pode experimentar a verdadeira hospitalidade portuguesa. VENHA CONHECER.
Equipamentos
Exterior
Outros
Consumo de energia
Classe energética :
Esta casa / vila está localizada em "Nogueira.













