Apartamento T3 em Queluz e Belas de 107 m²
Sobre este apartamento de 3 quartos em Queluz e Belas, Belas
Vende-se Apartamento T2+1 com Terraço no centro histórico de Belas.
Apartamento Completamente Remodelado, entregue como novo, chave na mão, com canalizações e estrutura eléctrica novas, pré-instalação de AC, caixilharias em PVC com janelas oscilobatentes com vidros duplos, paredes, chão, roupeiros, cozinha e casas de banho, tudo novo.
A obra de remodelação do apartamento encontra-se a decorrer, estando prevista a sua finalização dentro de 3 a 4 meses.
Localizado na zona histórica de Belas, este apartamento amplo e acolhedor com três quartos oferece-lhe a oportunidade de viver numa casa que combina conforto e modernidade. Venha explorar este imóvel único com as seguintes características:
Características do Apartamento:
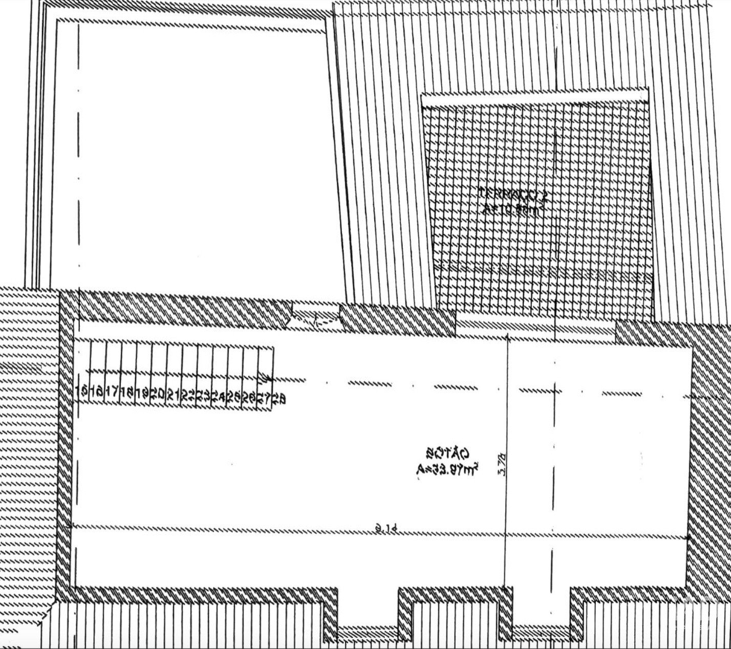
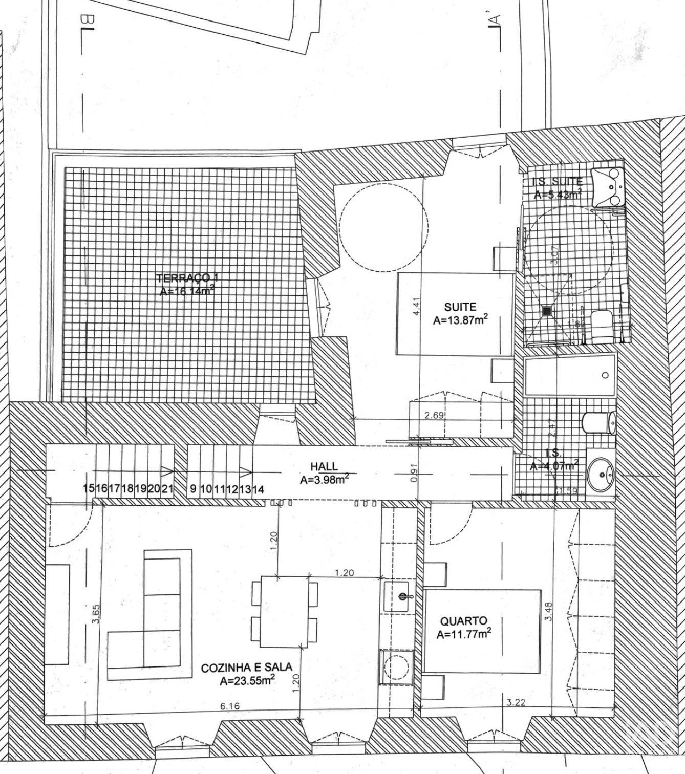
- Área Total de 156m²
- Área Bruta Privativa 107m2
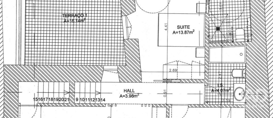
- 3 Quartos espaçosos, um deles em Suite
- 2 Casas de Banho
- Cozinha equipada
- Sala de Estar luminosa com acesso ao Terraço
- Terraço privativo com 16 m2 ideal para momentos relaxantes
- Hall de entrada acolhedor
- Sotão com total utilização
- Excelente exposição solar nas orientações Este, Sul e Oeste
- Ano de Construção anterior a 1951
- Excelente estado de conservação, entregue completamente remodelado
Características Adicionais:
- Equipado com TV por Cabo, Fibra Ótica, Pré-instalação Ar Condicionado e Intercomunicador
- Equipado com Termo-Acumulador, Placa, Forno, Exaustor, maq. Lavar Loiça e Frigorifico
- Residência segura e tranquila
- Aquecimento elétrico
- Terraço para desfrutar de momentos ao ar livre
- Completamente Remodelado, pronto a habitar
Localização e Proximidade:
- Situado no 1º andar de um edifício de 3 pisos
- Zona residencial calma em Belas
- A 2 min a pé dos Fofos de Belas
- Em frente à Igreja Matriz de Belas - Nossa Senhora da Misericórdia
- Junto à Quinta Nova da Assunção, com acesso gratuito aos seus Jardins
- Junto a Comércio, Serviços, Escolas e Transportes
- Boas acessibilidades IC19, A16, Crel e Cril
- Exposição solar privilegiada
- Ideal para famílias que procuram um ambiente tranquilo e sossegado
Nota - As fotos dos interiores são referentes a obras de remodelação feitas pelo mesmo construtor, noutro apartamento no mesmo prédio, dando indicação do tipo de acabamentos.
Este apartamento tem tudo para se tornar o seu novo lar doce lar. Desfrute de um ambiente acolhedor e relaxante, com a possibilidade de desfrutar do terraço, vizinhança tranquila e amplos espaços verdes.
Marque já a sua visita e venha conhecer o potencial deste encantador apartamento em Belas. Esta é a oportunidade que esperava para encontrar o seu novo lar!
Contacte-nos agora para mais informações!
Equipamentos
Interior
Outros
Consumo de energia
Classe energética :
Este apartamento está localizado em Queluz e Belas.



