Apartamento T3 em Ferrel de 84 m²
Sobre este apartamento de 3 quartos em Ferrel, Ferrel
Apartamento em Construção — Junto às Maravilhosas Praias do Baleal
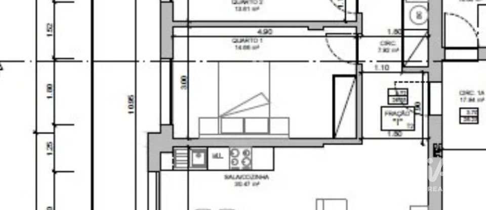
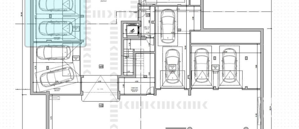
Este magnifico apartamento oferece cerca de 83.50 m2 com varanda de 18.90 m2 e garagem para dois carros de 27.20 m2 com uma localização privilegiada, a poucos minutos do mar. Está situado ao nível do primeiro andar e corresponde á fração I.
Está à procura do apartamento ideal perto da praia?
Imagine viver a apenas 2 minutos da Praia do Baleal, onde pode começar o dia com um mergulho no mar ou um passeio à beira-mar. E, se quiser desfrutar da vibrante vida local, você está no centro de Ferrel, com escolas, supermercados, cafés, restaurantes, posto médico e tudo o que precisa para o seu dia a dia.
Além disso, este apartamento situa-se numa rua calma e sem trânsito, perfeita para relaxar. E o melhor? Há sempre lugar para estacionar mesmo à porta — diga adeus às voltas intermináveis à procura de estacionamento!
Se valoriza localização, praticidade e qualidade de vida, este apartamento é para si.
Banhado por luz natural ao longo de todo o dia, o espaço oferece uma luminosidade incomparável, que realça cada detalhe e cria uma atmosfera acolhedora e sofisticada.
Localizado no centro de Ferrel, este encantador apartamento encontra-se em fase de construção e oferece o equilíbrio ideal entre conforto, tranquilidade e proximidade ao mar.
Inserido num edifício com cave, rés do chão, primeiro andar e segundo andar com elevador, é composto por:
•Dois quartos todos eles com acesso á varanda
•uma casa de banho
•Cozinha e sala de estar acolhedora, com acesso à varanda
•Garagem para dois carros
O apartamento vem equipado com:
•Caixilharia em PVC cinzento com vidro duplo
•Estores elétricos em alumínio
•Sistema de VMC de duplo fluxo – renovação de ar
•Instalação de ar condicionado
•Aquecimento de águas sanitárias com bomba de calor e depósito de 200 L ou 300 L
•Cozinha completamente equipada
Existem ainda outras unidades disponíveis, absolutamente fantásticas.
Situado num bairro residencial sereno e familiar, este imóvel é perfeito para quem procura qualidade de vida. Aqui, as crianças podem brincar livremente, andar de bicicleta ou jogar à bola na rua, com toda a tranquilidade de um ambiente seguro.
Também é uma excelente oportunidade de investimento, já que a zona é muito procurada por turistas que valorizam a proximidade à praia e o sossego.
Para os amantes da natureza e da vida ativa, a localização é simplesmente ideal:
•A 2 minutos da Praia do Baleal, icónica e perfeita para surf, banhos de sol ou caminhadas junto ao mar
•A 10 minutos de Peniche
•A 5 minutos da Barragem de Atouguia, um verdadeiro paraíso para passeios, corridas ou canoagem, rodeado de paisagens deslumbrantes
•Próximo de um agradável pinhal com zonas de piquenique, ideal para momentos em família
•E, para quem precisa de boa acessibilidade, a A8 fica a apenas 10 minutos, garantindo ligações rápidas a Lisboa e outras regiões
Este não é apenas um apartamento — é um estilo de vida.
Um lugar onde a luz natural preenche cada espaço, criando uma atmosfera calorosa e inspiradora.
Se procura um lar tranquilo, perto da praia e rodeado de natureza, este poderá ser o seu próximo refúgio.
Estarei verdadeiramente grata pelo seu contacto e será com todo o gosto que disponibilizarei mais informações ou agendarei uma visita ao imóvel.
Com os melhores cumprimentos,
Inês Caiado
IAD Portugal
Licença AMI: 11220
Equipamentos
Outros
Consumo de energia
Classe energética :
Este apartamento está localizado em Ferrel.










