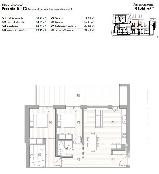
Apartamento T2 em São Gonçalo De Lagos de 93 m²
Características
Sobre este apartamento de 2 quartos em São Gonçalo De Lagos, São Gonçalo De Lagos
🌟 Residências Contemporâneas de Luxo a Apenas 5 Minutos da Praia de Porto de Mós, Lagos -D22-0D
Descubra um novo conceito residencial de alto padrão em Lagos, composto por dois edifícios modernos e exclusivos com um total de 65 apartamentos de design contemporâneo.
Criado para proporcionar um estilo de vida elegante, confortável e em harmonia com a natureza, este projeto combina arquitetura sofisticada, materiais de qualidade superior e tecnologia de última geração.
Situado a apenas 5 minutos da praia de Porto de Mós, oferece um ambiente ideal, equilibrando a energia do centro da cidade com a tranquilidade do oceano.
🏡 Conforto, design e bem-estar
Os apartamentos, desde T1+1 até T2 Duplex, destacam-se pelos espaços amplos e luminosos, varandas espaçosas e concepção pensada para o conforto total.
Cada detalhe foi cuidadosamente projetado para criar um espaço de vida moderno, funcional e harmonioso, perfeito tanto para residência permanente quanto para investimento.
✨ Características e acabamentos:
Ar-condicionado
Piso radiante
Estores elétricos
Cozinha totalmente equipada
Sistema solar e painéis fotovoltaicos
Domótica inteligente
Isolamento térmico e acústico de alta eficiência
Internet por fibra ótica
Piscina exterior
Ginásio
Estacionamento privado em garagem subterrânea
📐 Tipologias e preços:
T1+1 a partir de 550 000 €
T2 a partir de 560 000 €
T2 Duplex até 860 000 €
Áreas entre 85 m² e mais de 250 m², com varandas e terraços privados.
🕓 Conclusão prevista: dezembro de 2028
Mais do que uma simples residência, este projeto representa uma nova experiência de vida, onde design contemporâneo, tecnologia moderna e qualidade de vida se unem em perfeita harmonia, no coração de Lagos.
Uma oportunidade única de adquirir uma propriedade de excelência no Algarve, num ambiente moderno e tranquilo.
Equipamentos
Exterior
Outros
Consumo de energia
Classe energética :
Este apartamento está localizado em São Gonçalo De Lagos.











