

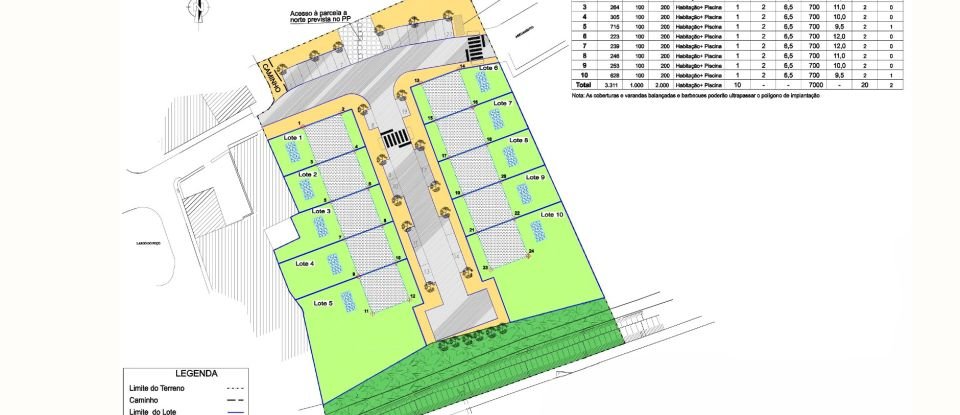
Je vous présente une collection exclusive de villas jumelées de luxe T4, situées dans le charmant village d’Almádena, à quelques minutes de Praia da Luz, au cœur de l’Algarve. Intégrées dans un ensemble moderne de 10 unités, ces propriétés offrent une expérience de vie exceptionnelle, alliant confort, style contemporain et emplacement privilégié. Les villas sont situées dans une rue calme et arborée, à deux pas de la place du village. Chaque unité a été conçue avec soin pour maximiser le confort et la fonctionnalité, avec des finitions de haute qualité et une attention particulière aux détails. Le design moderne met en valeur la lumière naturelle, la générosité des espaces et l’harmonie entre intérieur et extérieur. Répartie sur deux niveaux, chaque villa comprend quatre chambres spacieuses, dont trois en suite à l’étage, avec placards intégrés et balcons privés. Au rez-de-chaussée, une chambre supplémentaire avec salle de bain privative peut aussi servir de bureau — idéal pour le télétravail ou pour accueillir des invités. La cuisine moderne en open space est entièrement équipée et s’ouvre sur un salon-salle à manger lumineux qui accède à une terrasse avec espace barbecue et jardin privatif. La piscine est en option, avec un coût additionnel de 30 000€. Toutes les villas sont orientées plein sud, bénéficiant ainsi d’une luminosité optimale toute la journée, avec zones ombragées l’été et chaleur bienvenue en hiver. Almádena est un village calme et typique de l’Algarve, parfait pour ceux qui recherchent qualité de vie, sécurité et contact avec la nature. Bien qu’environnement paisible, il se situe à seulement 8 minutes de la dynamique Praia da Luz et à 10-15 minutes de la marina de Lagos. Commerces et restaurants locaux sont à deux pas. Ces villas sont idéales pour une résidence principale, une maison de vacances ou un investissement, combinant sérénité et accessibilité. Points forts : -Finitions de haute qualité -4 chambres spacieuses (dont 3 en suite) -Jardin privatif et piscine en option -Exposition solaire optimale toute l’année -Environnement paisible mais central -À 1 minute à pied d’un restaurant local -À 8 minutes de Praia da Luz -À 10-15 minutes de la marina de Lagos Pour plus d’informations ou pour une visite, contactez-moi! *Je parle Portugais, Français, Anglais et Espagnol. *Je partage la commission 50/50 avec toutes les agences.
Réf : 123272
Biens similaires




Villes à proximité
Autres types de bien à Luz
Autres types de bien à proximité
Autres projets à Luz