Maison T4 à Amora de 198 m²
À propos de cette maison de 4 chambres à Amora, Amora
Moradia T4 geminada com piscina em Pinhal conde da cunha
Esta moradia está em construção e será composta por:
Piso 0
Hall de entrada
Sala de estar com 33m2
Cozinha com 15 equipada com forno,placa vitrocerâmica, exaustor, microondas, máquinas da louça e roupa da marca Teka
Escritório/quarto com 14m2
Casa de banho
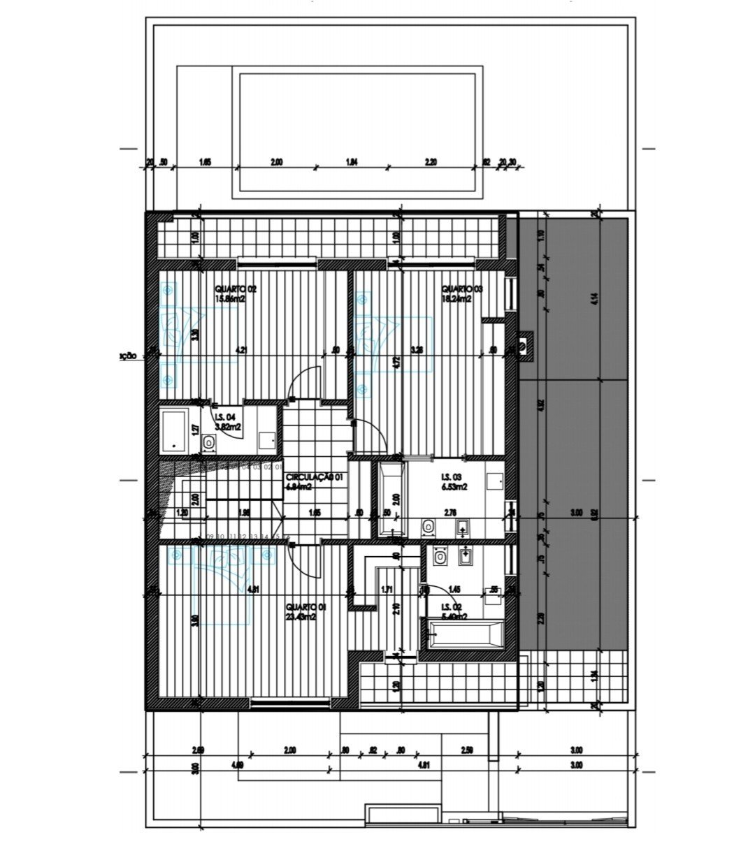
Piso 1
Hall de quartos
Suite com 16m2 e uma varanda virada para a piscina
Suite com 18m2 e uma varanda virada para a piscina
Suite com 23m2 e uma varanda virada para a piscina
Tem chão flutuante e tectos falsos em toda a casa.
Pré instalação de ar condicionado, aspiração central, alarme, estores elétricos, painéis solares, portões automáticos e churrasqueira.
Piscina com 18m2 e uma garagem para um carro.
Localizada numa zona tranquila, mas próximo de comércio, escolas,transportes e acessos para Lisboa.
Previsão para conclusao Março 2025
Équipements
Extérieur
Autre
Bilan énergétique
Consommation énergétique :
Cette maison/villa est située à Amora.











