Maison T3 à Tavira (Santa Maria e Santiago) de 195 m²
Atouts
À propos de cette maison de 3 chambres à Tavira (Santa Maria e Santiago), Tavira (Santa Maria e Santiago)
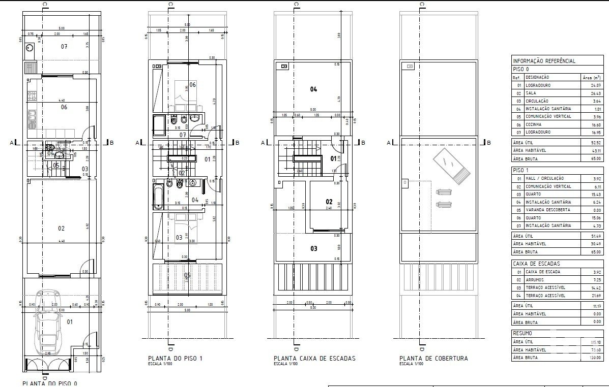
Maison de ville de 3 chambres au design moderne
Nous vous présentons cette maison de ville moderne et spacieuse, idéale pour les familles à la recherche de confort et de fonctionnalité. Avec une architecture contemporaine et une répartition intelligente des espaces, cette maison offre une excellente qualité de vie dans les moindres détails.
Caractéristiques de la maison :
• Rez-de-chaussée : Un espace ouvert confortable et spacieux qui intègre le salon et la cuisine moderne, créant un environnement parfait pour des moments familiaux et conviviaux. Cet espace a un accès direct à la terrasse privée avec barbecue, parfaite pour les repas en plein air et les moments de loisirs. Le rez-de-chaussée comprend également une salle de bains pour plus de commodité et, à côté de l'entrée, nous disposons d'un espace privé où vous pouvez garer une voiture.
• Premier étage : Cet espace est entièrement dédié au repos et à l'intimité, avec deux chambres en suite, chacune avec sa propre salle de bain, offrant confort et exclusivité aux résidents.
• Deuxième étage : Un espace supplémentaire polyvalent, idéal pour un bureau, une salle d'étude ou un espace de loisirs, adaptable aux besoins de chaque famille.
Cette maison offre l'équilibre parfait entre espaces privés et sociaux, avec un agencement qui privilégie la convivialité mais préserve également l'intimité. L'emplacement est excellent, proche de toutes les commodités essentielles et avec un accès facile aux transports, écoles et commerces.
Points forts supplémentaires :
• 3 chambres au total dont deux en suite.
• Cuisine ouverte entièrement équipée, au design moderne et fonctionnel.
• Place de parking privée, assurant la sécurité du véhicule.
• Espace multifonctionnel au dernier étage, idéal pour un bureau à domicile.
• Parmi les équipements de la maison, nous soulignons l'air climatisé, les planchers chauffants et l'aspirateur central.
Venez voir votre nouvelle maison et découvrez le confort et l'élégance que cette maison de ville a à offrir. Réservez votre visite maintenant et soyez surpris !
L'EMPLACEMENT
Tavira – Là où tradition et beauté naturelle se rencontrent
Située au cœur de l'Algarve, Tavira est une ville qui allie le charme historique à la sérénité des paysages naturels. Connue comme l'une des villes les plus pittoresques de la région, également appelée la Venise de l'Algarve, Tavira enchante par ses rues pavées, ses maisons traditionnelles à l'architecture mauresque et la rivière Gilão, qui traverse le centre et s'étend jusqu'à la célèbre Praia de Tavira. , sur l'île de Tavira.
C'est un endroit où la qualité de vie est prise au sérieux : le climat doux, les marchés locaux proposant des produits frais et l'accès facile aux plages préservées font de Tavira un choix populaire parmi ceux qui recherchent la tranquillité et l'authenticité. Dotée d'un riche patrimoine culturel, la ville abrite des attractions touristiques uniques, telles que le château de Tavira, le pont romain et ses 24 églises historiques.
Ici vous trouverez certaines des plages les plus célèbres de la côte de l'Algarve avec de longues plages de sable, comme la plage « Barril », connue pour son train caractéristique, son cimetière d'ancres et ses eaux cristallines., la plage « Terra Estreita » ou « Cabanas », et bien sûr l'île de Tavira. Nous ne pouvons pas oublier le parc naturel de Ria Formosa où se trouvent les célèbres salines, où, selon de nombreux experts, sont produits ici certains des meilleurs sel et fleur de sel du monde. Attirés par les salines, vous trouverez ici plusieurs volées de flamants roses, d'échassiers et d'autres oiseaux.
Tavira offre également une excellente infrastructure, avec des écoles, des collèges, des restaurants renommés et une atmosphère accueillante, idéale pour les familles, les retraités et tous ceux qui recherchent un style de vie plus calme.
La proximité de la frontière espagnole et de l'aéroport international de Faro (à seulement 30 minutes en voiture) font de Tavira un point stratégique pour ceux qui souhaitent explorer l'Algarve et au-delà, elle a été considérée comme l'une des meilleures destinations touristiques pour les familles du sud du Portugal.
Tavira compte environ 24 000 habitants. Elle compte actuellement une forte communauté étrangère avec des résidences permanentes ou de vacances, très importante, notamment britannique, française, italienne, suédoise, néerlandaise, belge, allemande et irlandaise.
Bilan énergétique
Consommation énergétique :
Cette maison/villa est située à Tavira (Santa Maria e Santiago).











