Maison T3 à Luz de 205 m²
À propos de cette maison de 3 chambres à Luz, Luz
M
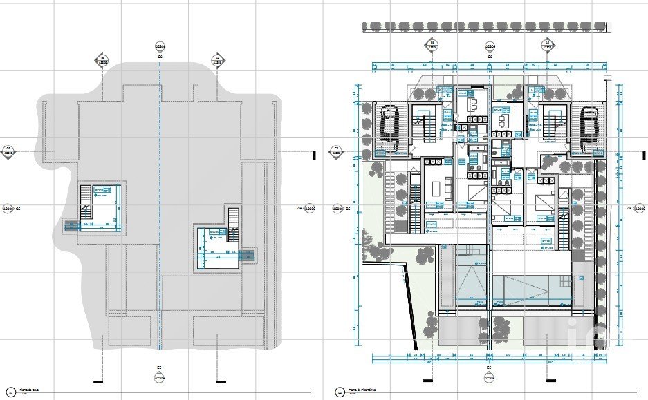
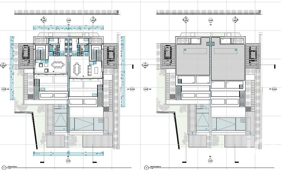
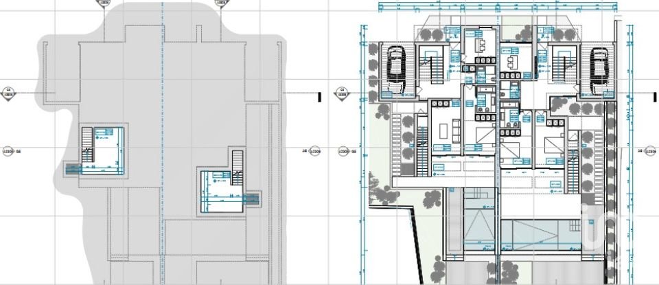
Villas de Luxe avec Vue sur Mer – Praia da Luz – Projet signé par l’Architecte Mário Martins
Architecture contemporaine • Vue panoramique sur l’océan • À quelques minutes de la plage
Ce projet haut de gamme représente une opportunité unique d’acquérir l’une des 13 villas contemporaines avec vue panoramique sur la mer. Dotées d’un design moderne et de finitions de grande qualité, ces résidences situées dans le lotissement privé allient élégance et confort de manière exceptionnelle. Leur emplacement privilégié vous fait vivre une expérience côtière incomparable — idéale comme résidence principale, maison de vacances ou investissement de prestige.
Ces biens exclusifs offrent :
Piscine privée pour des moments de détente
Vue imprenable sur la mer et la côte
Proximité immédiate de la plage et de toutes les commodités locales
💶 Prix à partir de 1.350.000 € jusqu’à 1.750.000 €
📆 Délai estimé pour la fin de la Phase 1 : 2 ans
Pour toute information complémentaire, n’hésitez pas à nous contacter.
Cette maison/villa est située à Luz.












