

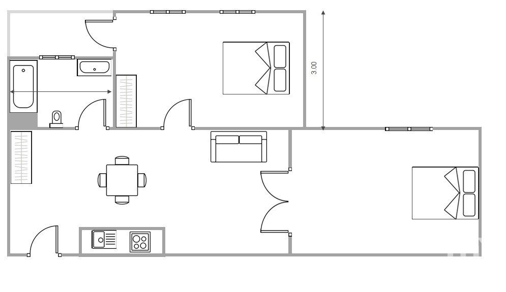
Aldeia da Açoreira, dans la municipalité de Torre de Moncorvo. Cette maison en construction, située face à la chapelle et au Pelourinho, offre une expérience de vie authentique dans un environnement pittoresque. Caractéristiques de l'établissement: Superficie totale du terrain : 211 m² Surface d'implantation du bâtiment : 117 m² Superficie brute de construction : 234 m² Surface Brute Dépendante : 117 m² Superficie Brute Privée : 117 m² Emplacement privilégié : Histoires de la vue unique sur la chapelle et le Pelourinho depuis votre nouvelle maison. Un environnement culturel et historique immersif rend ce lieu vraiment spécial, offrant un lien unique avec le riche patrimoine de la région. Option supplémentaire : Possibilité d'ajouter à ces 234 m2 plus 98m2 de la maison d'à côté, entièrement restaurée par les mêmes propriétaires. Ne manquez pas l'opportunité de faire partie de cette communauté dynamique. Planifiez une visite aujourd'hui et découvrez votre nouvelle maison à Aldeia da Açoreira ! Regardez la vidéo sur la chaîne Youtube de Douro Real Estate *Chez IAD, nous partageons nos activités avec n'importe quel consultant ou agence immobilière. Nous faisons la promotion de propriétés sur plus de 250 portails immobiliers nationaux et internationaux Si vous êtes un professionnel du secteur et avez un client acheteur qualifié, contactez-moi et planifiez votre visite.
Réf : 108809
Diagnostic de performance énergétique (DPE)
Biens similaires


395 000 €


Villes à proximité
Autres types de bien à proximité