

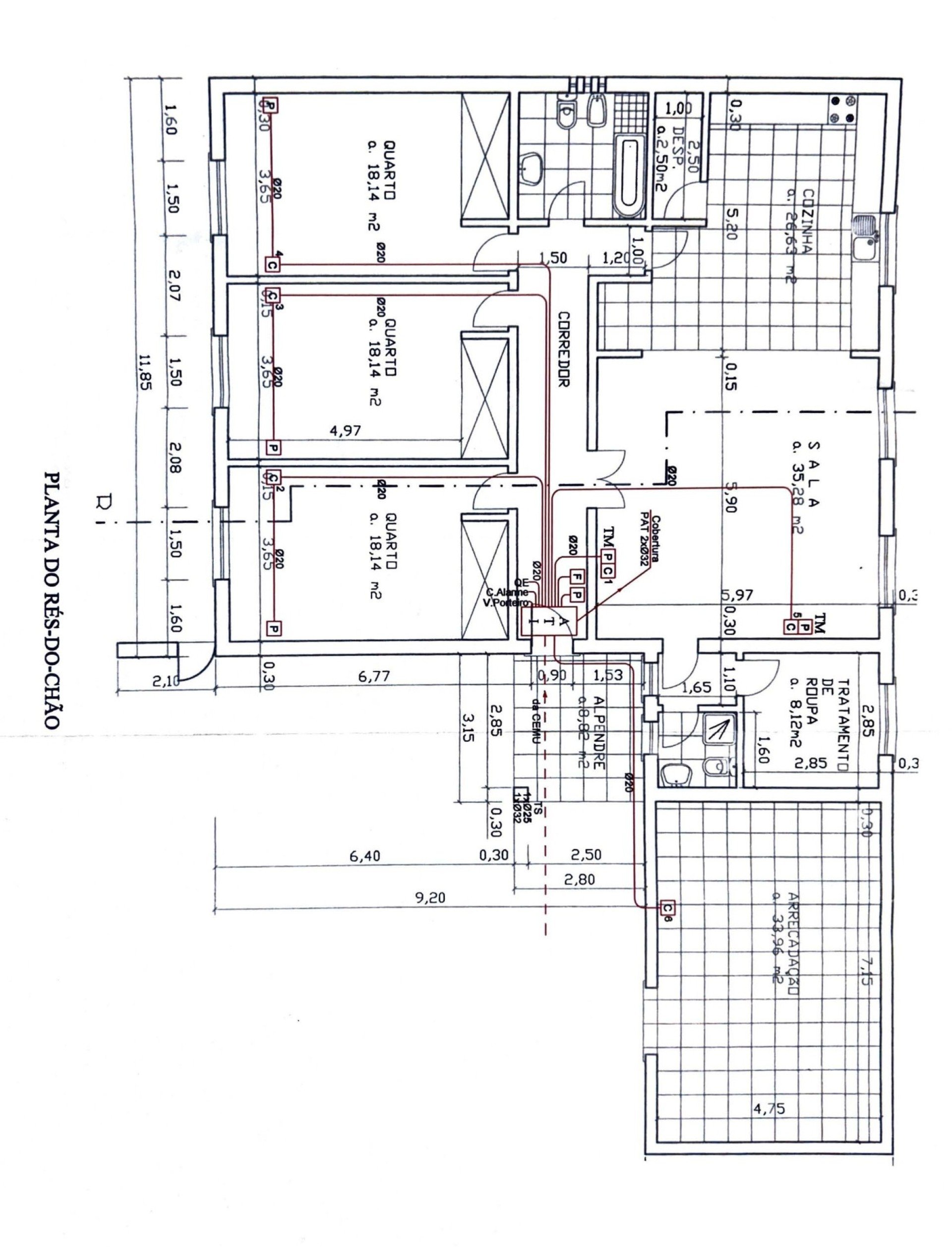
Excelente Oportunidade a 15 min de Santarém ! 📍 Localização: Casais de Maria Delfina 📏 Terreno: 660m² 🔨 Área de Construção: 256m² 🏡 Projeto Pré-Aprovado na Câmara (arquivado) no qual estão previstas as seguintes divisões : 🛏️ 3 Quartos cada com 18m2 Cozinha com 27m2 e despensa de 2.5m2 Sala de estar com 35m2 Lavandaria com 8m2 Arrecadação com 34m2 Está em busca do terreno perfeito para construir a casa dos seus sonhos? Não procure mais!! Este terreno de 660m² oferece a possibilidade de construir a residência que sempre desejou. Além disso, o projeto já foi pré-aprovado na Câmara, facilitando uma nova submissão do mesmo. Para usar o projeto já existente a reavaliação pelo arquitecto e entrega na câmara e demais pedidos de licença, terá um custo de 1200€, bem menos do que um projeto novo. Com uma área de construção atual de 256m², este projeto contempla 3 quartos espaçosos , Cozinha com despensa, sala de estar, lavandaria, arrecadação e jardim, garantindo conforto e privacidade para toda a família. Imagine-se desfrutando de momentos incríveis neste lar personalizado de acordo com suas preferências. Localizado numa aldeia tranquila e de fácil acesso, estará próximo a serviços essenciais, como escolas (ETPR), supermercados e centros comerciais. A região oferece ainda belas paisagens e uma atmosfera acolhedora, perfeita para criar memórias inesquecíveis. Não perca esta oportunidade única! Entre em contato comigo para obter mais informações e agendar uma visita ao terreno. Estou ansiosa para ajudá-lo(a) a realizar o seu sonho de ter uma casa perfeita. Situa-se a 15min de Santarém, 50min das portagens de Lisboa! O meu nome é Sandra MARCELINO e sou consultora imobiliária independente da iad Portugal. A minha principal zona de trabalho é Santarém, área que conheço muito bem e na qual me sinto perfeitamente à vontade. Quer comprar ou arrendar um imóvel e ainda não encontrou o que procura? Na minha página encontra a minha carteira de imóveis. Terei todo o prazer em acompanhá-lo numa visita. Caso não encontre aqui o que pretende, estou totalmente disponível para o ajudar nesta fase tão importante da sua vida. Se tenciona vender a sua casa, posso igualmente ajudá-lo, dando-lhe uma estimativa de valor e divulgando o seu imóvel em mais de 200 portais imobiliários em todo o mundo de forma gratuita. A iad é uma sociedade de mediação imobiliária que não tem lojas físicas, o que me permite ir ao seu encontro e prestar-lhe o melhor serviço onde quer que esteja, com base no profissionalismo e na transparência. Enquanto consultor imobiliário independente, tenho autonomia para gerir os meus horários e para negociar consigo a minha comissão, garantindo-lhe um acompanhamento personalizado em todas as etapas do processo e um serviço de qualidade ao melhor preço. AMI 11220 Lembre-se, a chave para a realização do seu sonho está nas suas mãos. Aguardo o seu contato!
Referência: 98289
Imóveis semelhantes


47 500 €


265 000 €

