

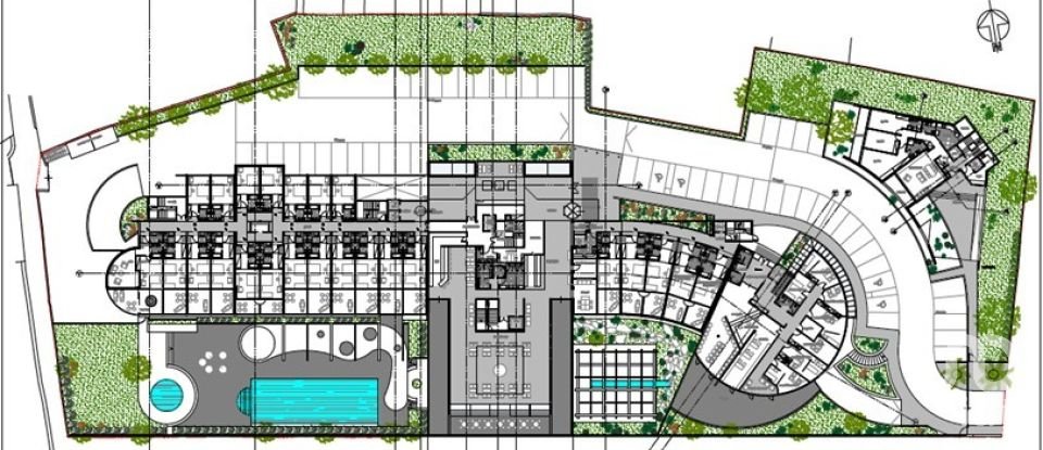
Terrain avec projet approuvé pour la construction d'un hôtel de santé, São Brás de Alportel, Algarve, Portugal Programme innovant au design moderne pouvant regrouper différentes activités : " Résidentiel " Hospitalité " Médecine » Zone commerciale et de loisirs Brève description des différents secteurs : SECTEUR RÉSIDENTIEL 80 appartements (T0 / T1 / T2) pour propriétaires âgés Avec le soutien des services hôteliers (repas et ménage) SECTEUR HÔTELIER Hôtel - Restaurant Panoramique - Cafétéria - Bar Services à domicile des résidents (repas et ménage) MÉDECINE DU SECTEUR PRIVÉ Cabinets indépendants de : médecin, dentiste, infirmier, pharmacie SECTEURS DU COMMERCE et DES LOISIRS Coiffeur, SPA, Piscine et espaces de loisirs extérieurs, salles de conférence et de formation, autres commerces. Situé dans une zone d'intérêt touristique de l'Algarve, avec une superficie de construction d'environ 9 000 m², offrant un parking intérieur et extérieur Projet avec licence payante. Il peut être personnalisé pour d’autres activités et est destiné à : - Entreprises ou - Investisseurs privés J'attends vos nouvelles afin pour planifier une visite ! Je peux vous garantir un accompagnement professionnel tout au long du processus, toujours avec cordialité! Pour toute question complémentaire ou pour planifier une visite : Cristina Castro – neuf trois six sept huit deux deux quatre huit cristina.castro@iadportugal.pt
Réf : 81387
Biens similaires



