Terrain à Pedreiras de 1 660 m²
À propos de ce terrain à Pedreiras, Pedreiras
Terrain de 1660 m² et projet approuvé au pied de la Serra Pedreiras Porto de Mós
Vous rêvez d'avoir une villa dans un endroit où vous pouvez entendre la nature ?
Terrain de 1660 m2 situé à Pé da Serra Pedreiras, dans une zone tranquille avec un bon accès et une excellente exposition au soleil !
Idéal pour ceux qui recherchent une qualité de vie à la campagne, sans sacrifier la proximité des zones plus urbaines :
Le grand terrain arboré offre plus qu'assez d'espace pour profiter de l'extérieur et de l'intimité en créant un potager, une piscine ou simplement un espace de détente en contact avec la nature favorisant les activités de plein air !
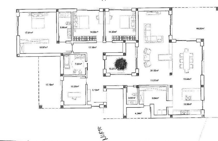
Il a l'avantage d'avoir déjà le projet approuvé pour une maison unifamiliale avec une surface brute de construction de 241,30m2, prêt à commencer la construction et ainsi vous faire économiser beaucoup d'usure et de temps !
Idéal pour ceux qui cherchent à construire la maison de leurs rêves ou à investir en toute sécurité.
Plus d'informations et plan du projet sur demande.
La situation privilégiée de ce terrain est à 22 kilomètres de la plage de Nazaré avec un accès direct à toute la Côte d'Argent.
.20 kilomètres de la ville de Leiria et 15 kilomètres d'Alcobaça
.40 kilomètres de l'autoroute
.95 km de l'aéroport de Lisbonne
Et à 5 minutes de la ville de Porto de Mós et de Pedreiras, où vous trouverez tous les services dont vous avez besoin.
Vous êtes curieux ? Réservez votre visite dès maintenant odilia.correiaiadportugal.pt
Équipements
Extérieur
Ce terrain est située à Pedreiras.








