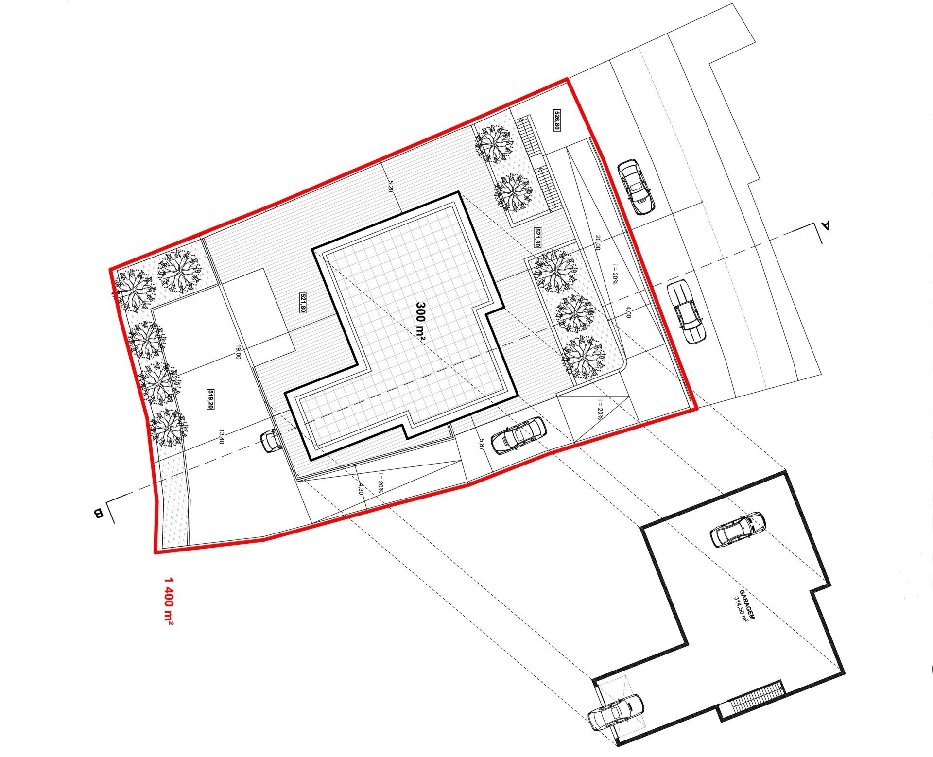
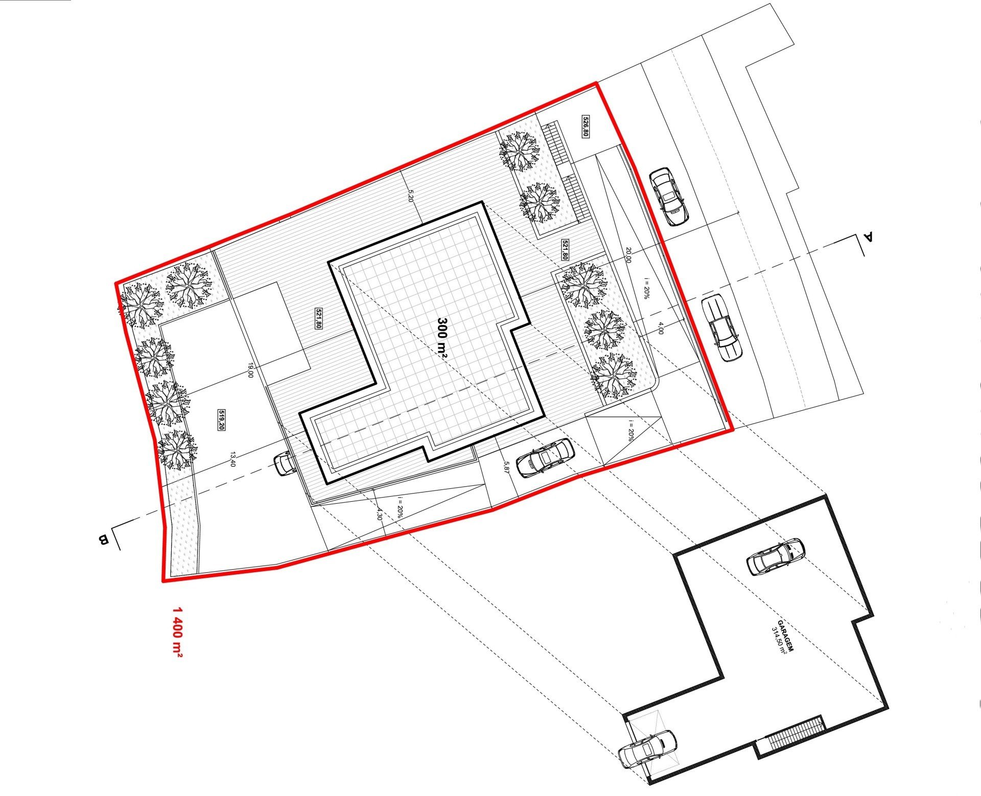
Terrain à Monchique de 1 400 m²
À propos de ce terrain à Monchique, Monchique
Terrain de 1.400m2 avec projet approuvé pour la construction d'une maison de 300m2, située dans les montagnes de Monchique, en direction de Foia.
La vue qu'elle offre est vraiment époustouflante, surplombant une bonne partie de l'ouest de l'Algarve, de Lagoa, Portimão à Lagos et la pointe de Sagres.
Le centre de Monchique est à seulement 1,4 km, Portimão à 25 km et Aljezur à 30 km.
Zone de restaurants typiques de la région avec une gastronomie riche en pleine nature et air pur de la montagne.
Construisez une qualité de vie !
Choisir le bonheur!
iad a été créé en France en 2008, étendu au Portugal en 2015 et fait partie du groupe immobilier international, présent également en Espagne, en Italie, au Mexique, en Allemagne, au Royaume-Uni et aux États-Unis.
Le modèle économique iad nous permet de vous aider à réaliser votre projet immobilier dans n'importe quel pays, en favorisant une relation de proximité, de professionnalisme et de confiance, en offrant un service plus compétitif lors de l'achat, de la location ou de la vente d'un bien.
Équipements
Extérieur
Ce terrain est située à Monchique.














