Terrain à bâtir à Lamas e Cercal de 408 m²
À propos de ce terrain à Lamas e Cercal, Lamas e Cercal
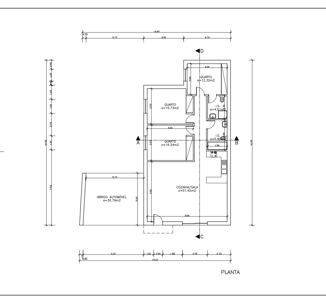
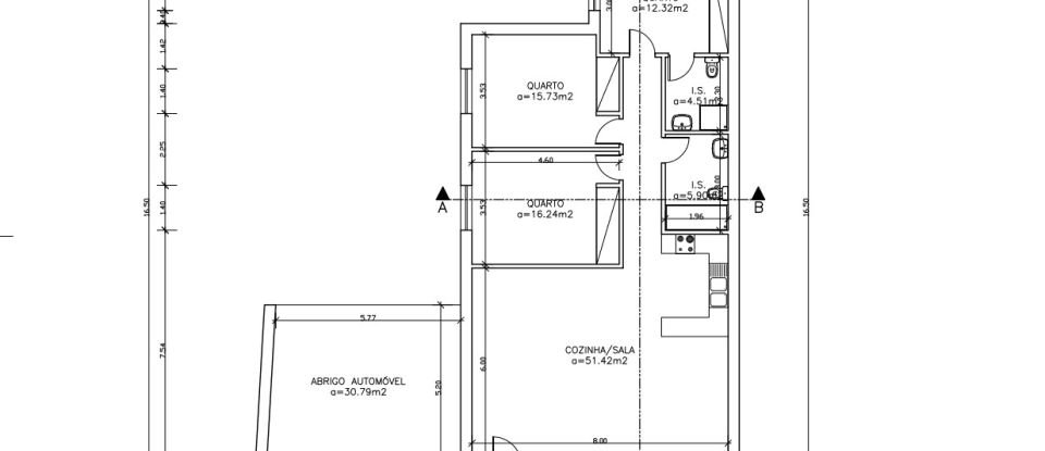
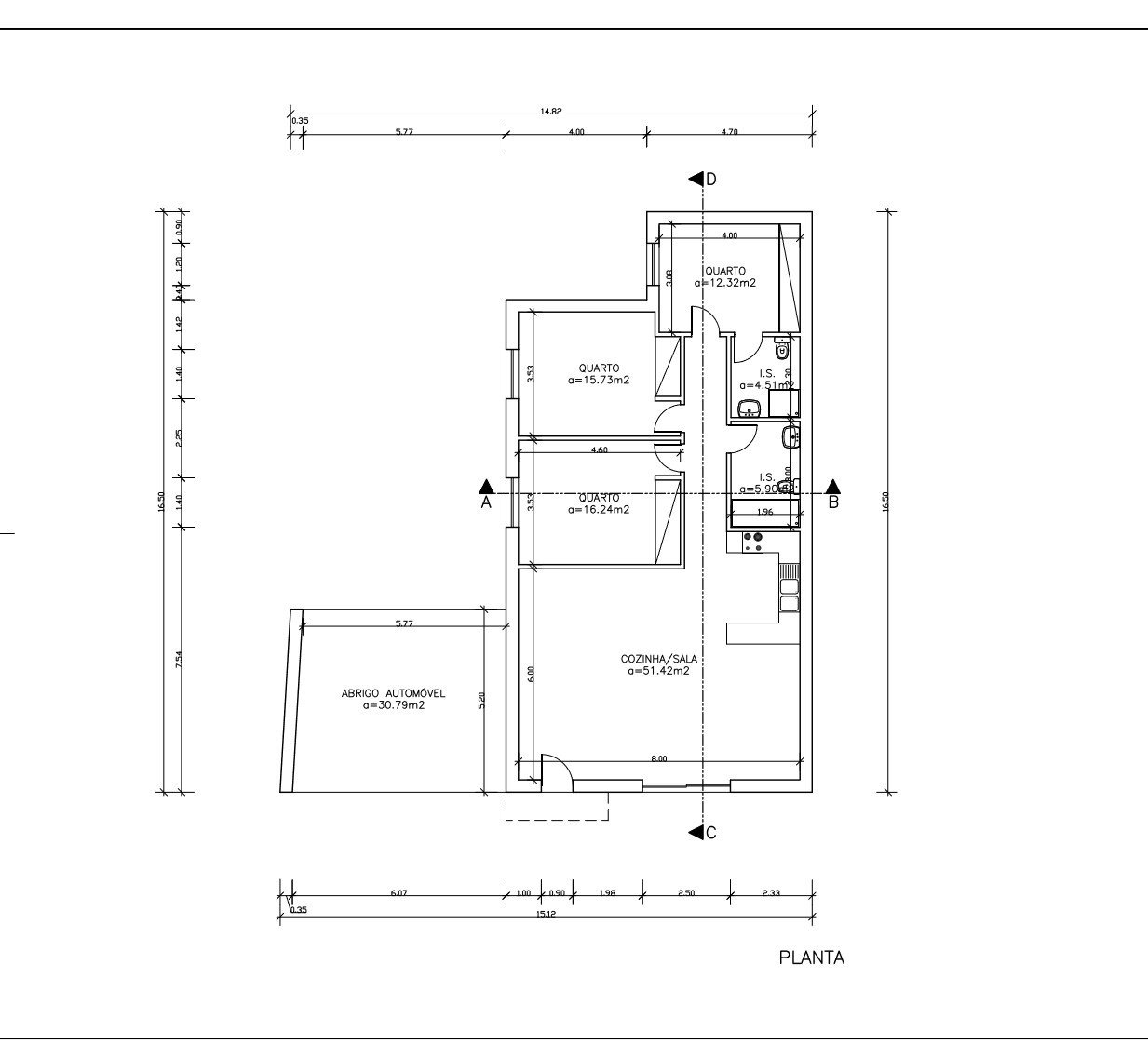
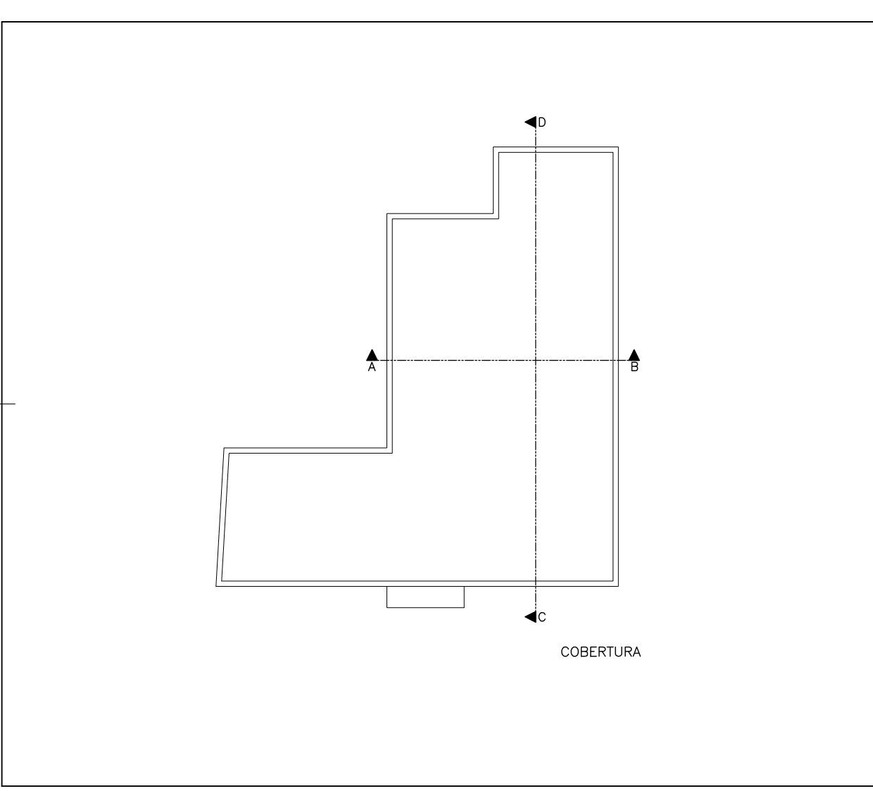
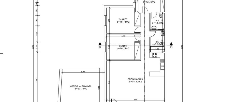
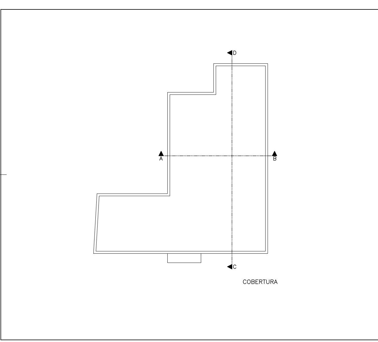
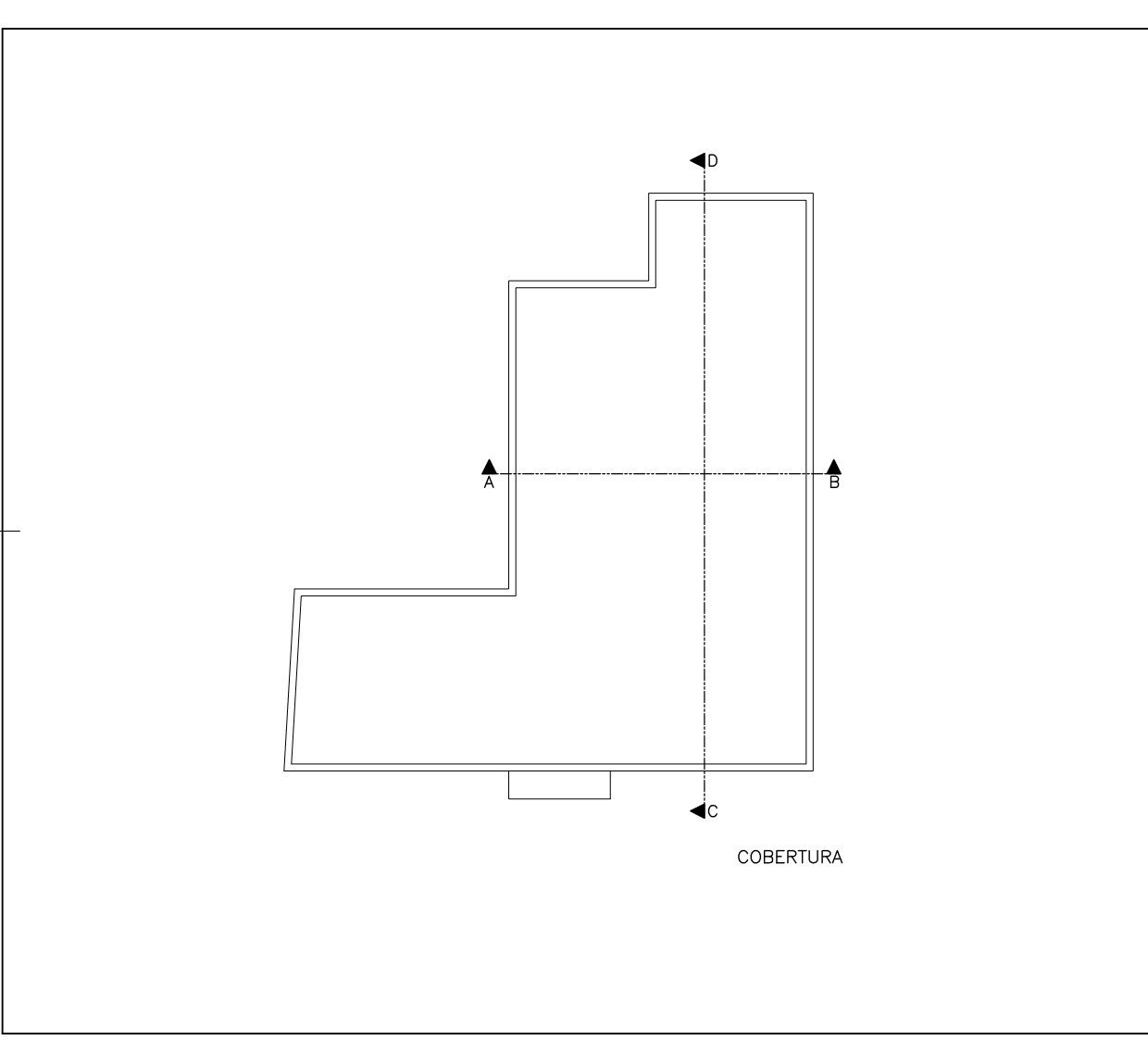
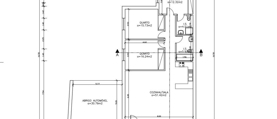
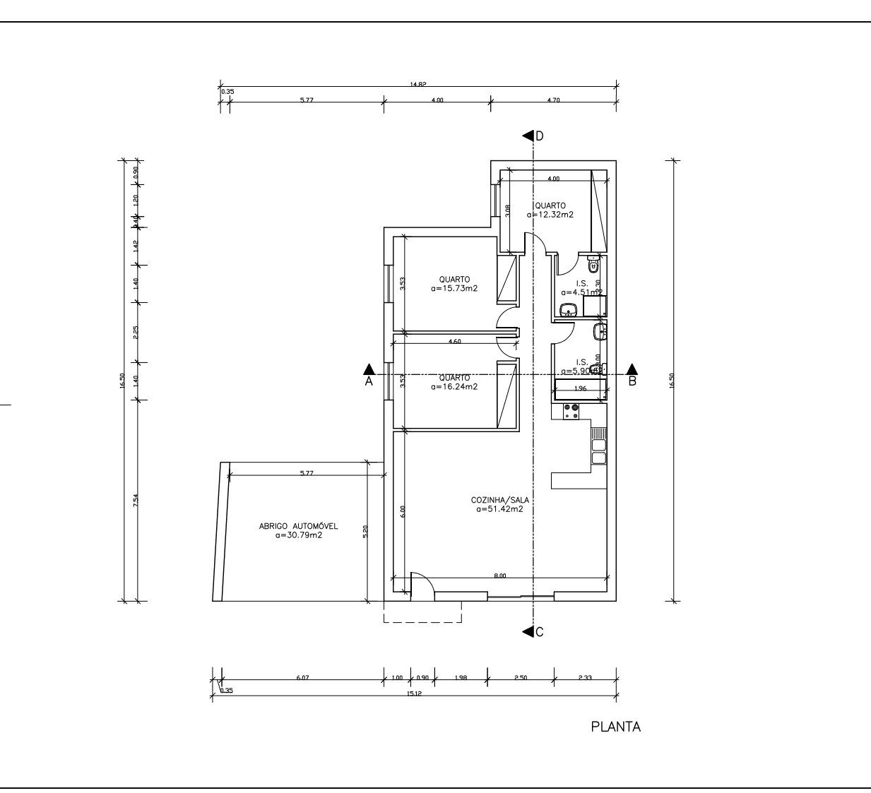
Terrain de 408 m² comprenant une maison neuve de plain-pied de 3 chambres. Cette maison présente les caractéristiques suivantes :
- Cuisine et séjour ouverts (44,50 m²)
- 2 chambres avec placards intégrés (15,65 et 16,22 m²)
- 1 suite parentale (17,97 m² et salle de bain de 4,74 m²)
- Salle de bain (5,5 m²)
- Abri voiture (34,84 m²)
La durée de construction sera d'environ 12 mois, clé en main, incluant tous les coûts liés aux projets et aux permis municipaux.
Caractéristiques :
- Portes et fenêtres en PVC à rupture de pont thermique et oscillo-battantes ;
- Pré-installation de la climatisation ;
- Stores électriques ;
- Revêtement de sol en vinyle dans la cuisine et le séjour ;
- Possibilité de construire une piscine.
Située dans un quartier calme et résidentiel, à 2 minutes du village de Cadaval, où vous trouverez tous types de commerces et services essentiels.
Ce terrain est situé :
- à 10 minutes de l'autoroute A8 ;
- à 20 minutes de l'autoroute A1 ;
- à 20 minutes de Caldas da Rainha ;
- à 25 minutes des plages telles que Santa Cruz, Arreia Branca, Peniche, São Martinho do Porto, Nazaré, etc. ;
- 25 minutes de Torres Vedras ;
- 50 minutes de Lisbonne.
Venez voir cette terre! Venez voir notre village!
Contactez-moi... Planifiez votre visite maintenant !
Équipements
Extérieur
Ce terrain est située à Lamas e Cercal.













