Terrain à Lamas e Cercal de 400 m²
À propos de ce terrain à Lamas e Cercal, Lamas e Cercal
🏡 Villa neuve de plain-pied de 3 chambres à coucher | Terrain de 400m² | Clé en main en 12 mois
Nous vous présentons cette excellente villa de 3 chambres au design moderne, située sur un terrain de 400m². Idéale pour ceux qui recherchent la tranquillité, le confort et la qualité de vie, à quelques minutes du centre de Cadaval et avec un excellent accès à l'autoroute A8.
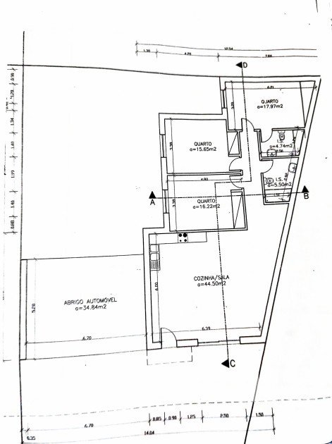
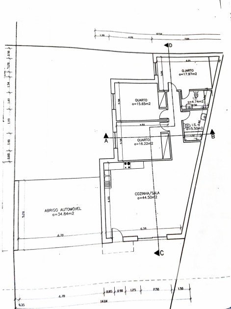
Composition de la villa :
-Cuisine ouverte et salon de 44,50m² - spacieux, lumineux et idéal pour les réunions de famille.
-2 Chambres avec placards intégrés (15.65m² et 16.22m²) - confortables et bien distribuées.
- Chambre 1 Suite de 17,97m² + WC privé de 4,74m² - pour une intimité et une commodité totales.
-Salle de bain complète de 5.5m².
- Abri voiture de 34,84m².
🔧 Caractéristiques techniques et finitions :
-Portes et fenêtres en PVC avec rupture de pont thermique et système d'arrêt des battants ;
-Pré-installation de la climatisation ;
-Volets électriques dans toute la maison ;
Volets électriques dans toute la maison ; -Sol en vinyle dans les chambres, la cuisine et le salon ;
-Possibilité de construire une piscine moyennant un coût supplémentaire ;
Construction neuve, livrée clé en main, avec un délai estimé à 12 mois.
📍 Situation privilégiée
Quartier calme et résidentiel, à quelques minutes du centre de Cadaval, avec un accès rapide à :
-A8 - 10 minutes
-Caldas da Rainha - 20 minutes
-Plages de la côte ouest - 25 minutes
-Torres Vedras - 25 minutes
-Lisbonne - 50 minutes
💡 Idéal pour
Familles, jeunes couples ou ceux qui recherchent une villa moderne de plain-pied avec terrain et possibilité de personnalisation.
Réservez votre visite dès maintenant.
Équipements
Extérieur
Ce terrain est située à Lamas e Cercal.













