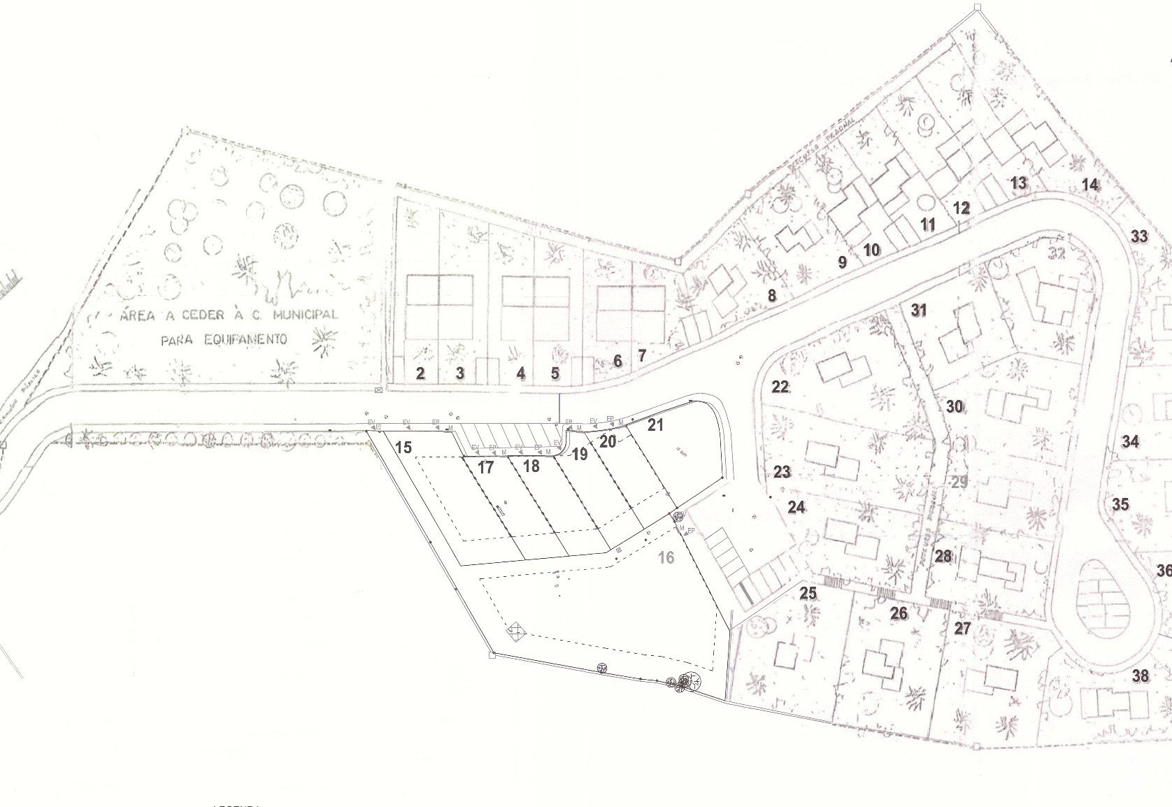
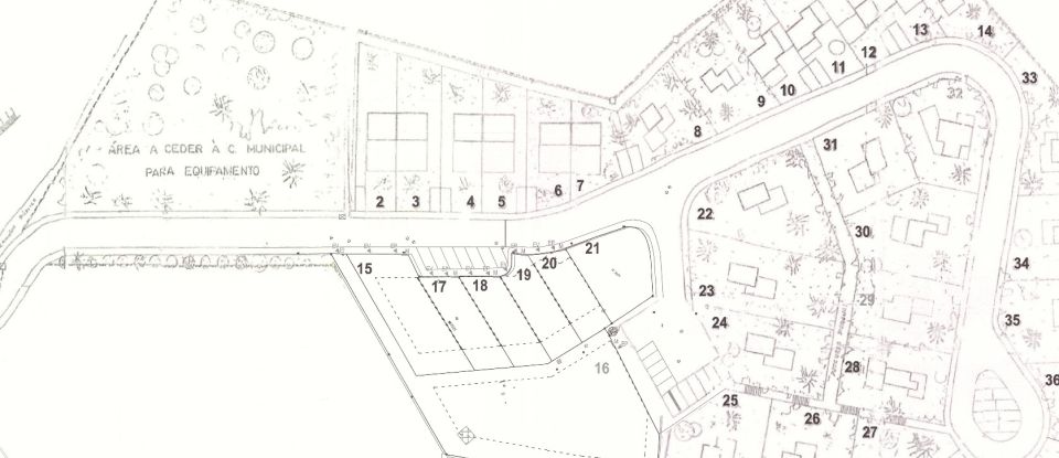
Terrain à bâtir à Budens de 494 m²
À propos de ce terrain à Budens, Budens
Terrain Urbain avec Projet Approuvé – Salema, Vale de Boi (Budens)
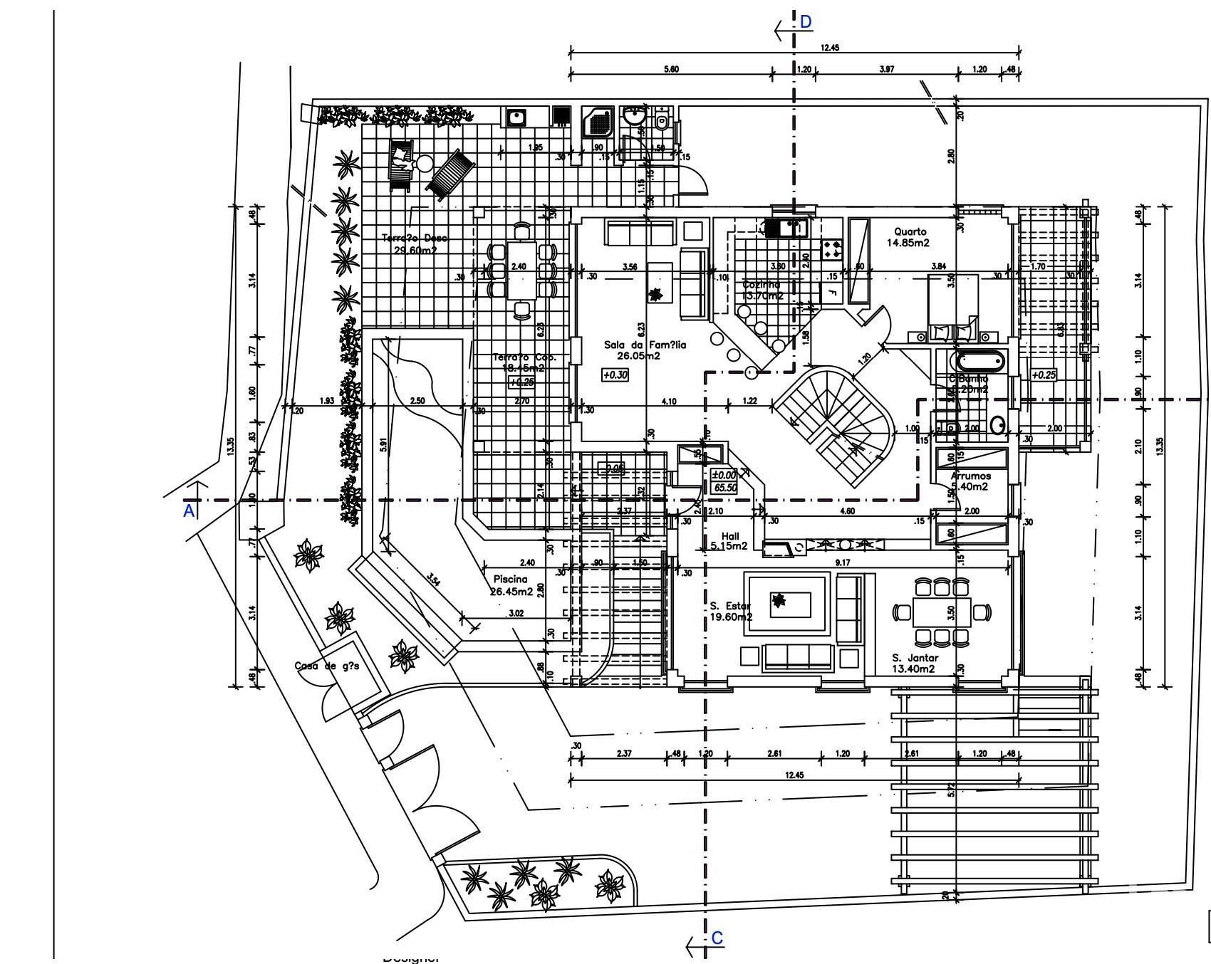
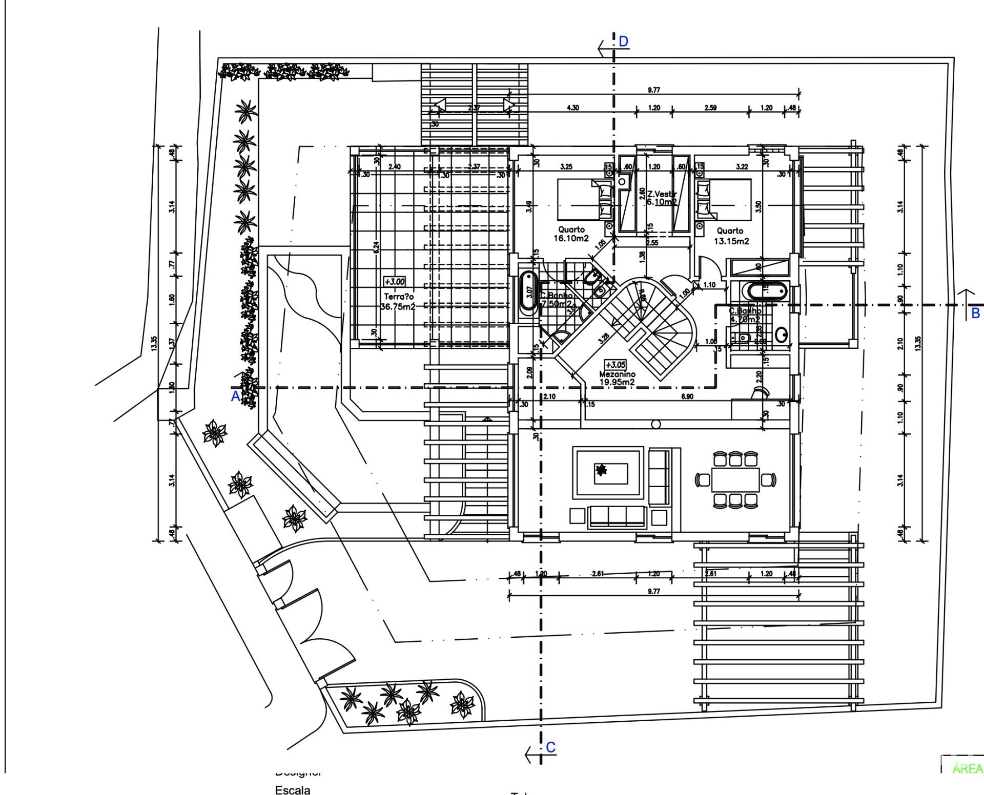
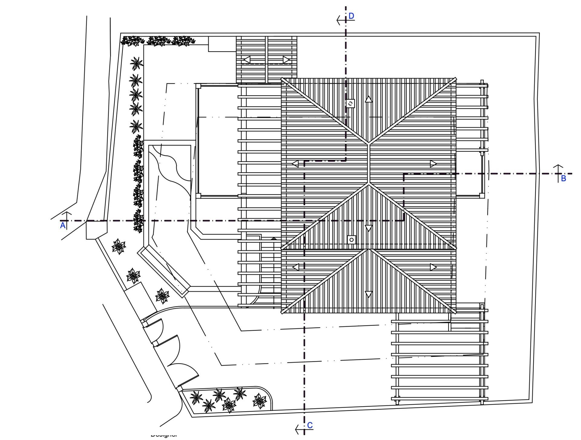
494 m² | Projet Approuvé pour Villa T4 (3+1) avec Piscine Privée
Découvrez cette excellente opportunité d’investissement à Salema, l’une des zones les plus charmantes et prestigieuses de la région de Vila do Bispo.
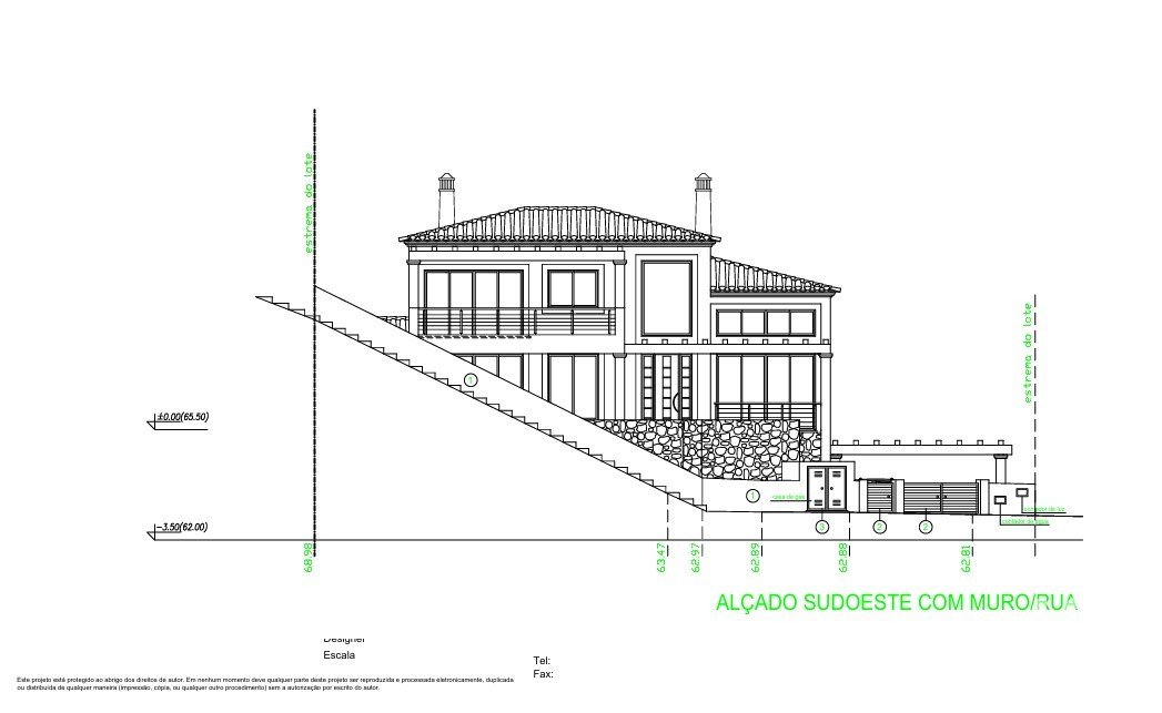
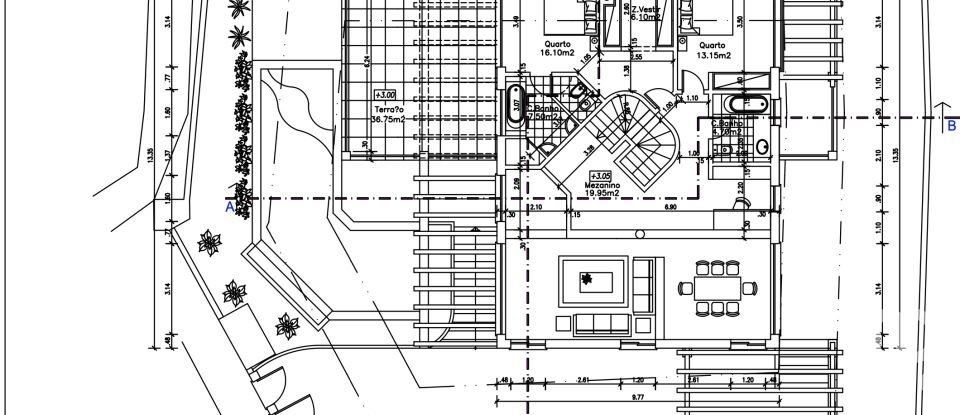
Ce terrain urbain de 494 m² dispose déjà d’un projet approuvé pour la construction d’une villa contemporaine T4 (3+1) avec deux étages, cour et piscine privée.
Avec une surface brute de construction de 250 m², dont 100 m² de surface annexe, le terrain bénéficie d’une exposition plein sud, idéale pour profiter de la lumière naturelle tout au long de la journée.
Situé dans un quartier résidentiel calme, ce terrain profite de la proximité des magnifiques plages de Salema, célèbres pour leurs falaises dorées, leur mer cristalline et leur atmosphère paisible.
À proximité, vous trouverez restaurants, cafés, services et toutes les commodités essentielles, ce qui en fait un lieu idéal pour une résidence principale, une maison de vacances ou un investissement locatif.
Le village de Salema est un véritable joyau de l’Algarve, alliant tradition et modernité, et offrant un cadre de vie paisible à proximité de toutes les infrastructures.
Ne manquez pas cette occasion unique de construire la maison de vos rêves dans l’un des endroits les plus recherchés de l’Algarve !
Planifiez votre visite dès aujourd’hui !
*Je parle français, portugais, anglais et espagnol.
*Partage de commission 50/50 avec toutes les agences partenaires.
Équipements
Extérieur
Ce terrain est située à Budens.





