
160 000 €
Maison à Galafura e Covelinhas
- 4 chambres
- 706 m² de surface brute
- 353 m² de terrain


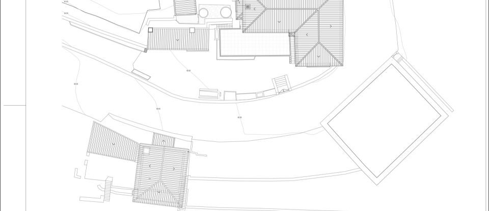
Ferme exclusive dans le Douro – Vignobles, tourisme et durabilité Imaginez un paradis sur les rives du puissant fleuve Douro, où la beauté des vignobles en terrasses se mêle au passage serein des bateaux et au charme du train glissant à travers le paysage. Cette ferme exclusive de 15 hectares, située au cœur de la région délimitée du Douro (site du patrimoine mondial de l'UNESCO), offre une opportunité d'investissement unique et très rentable. 🌿 Production de vin biologique certifiée - 8,5 hectares de vignes, certifiées depuis 2017. - Production moyenne de 16 500 litres de vin (rouge, rosé et porto). - Cépages nobles : Tinta Roriz, Touriga Franca, Tinta Barroca et Touriga Nacional. - Quota de bénéfices : 20 pipes (équivalent à 15 000 kg de raisins, pour le vin de Porto). - Possibilité de vinification propre ou de vente de raisins aux fermes voisines. - Cave souterraine naturelle, idéale pour la conservation des vins. 🌳 Production d'huile d'olive biologique - Oliveraie productive avec un rendement moyen de 300 litres d'huile d'olive premium/an - Oliviers, orangers et potagers à côté des maisons. Deux maisons à potentiel touristique - GRANDE MAISON, avec 500 m², manoir du 19ème siècle. , avec 390 m² de surface utilisable, avec , 4 chambres, 4 salles de bains, grand salon, cuisine et une terrasse panoramique, avec une vue imprenable sur le fleuve Douro. - Possibilité d'agrandissement pour plus de chambres. - PETITE MAISON de 179 m², située près de la rivière Doce, fonctionne en hébergement local, avec un taux d'occupation élevé. - Projet approuvé pour la conversion en trois maisons touristiques, maximisant la rentabilité. - Annexes supplémentaires, avec possibilité de légalisation, élargissant les options de développement. - Situation privilégiée avec un énorme potentiel œnotouristique - A proximité d'un charmant village, mais avec une intimité totale. - Accès direct à la rivière, à côté du mouillage des bateaux de plaisance. - Gare à proximité, permettant un accès exclusif et pratique. - La région du Douro a connu une croissance soutenue du tourisme, se consolidant comme l'une des principales destinations œnotouristiques d'Europe. 🔹 Investissement sûr et rentable, alliant tradition, nature et tourisme durable.
Réf : 135455
Diagnostic de performance énergétique (DPE)
Biens similaires

160 000 €
