Maison T4 à Alcantarilha e Pêra de 265 m²
Atouts
À propos de cette maison de 4 chambres à Alcantarilha e Pera, Pêra
Découvrez la maison de vos rêves à Pêra – Algarve, avec vue sur la mer !
À la fin des travaux, un nouveau certificat énergétique sera délivré, avec la mise à jour correspondante de la classification.
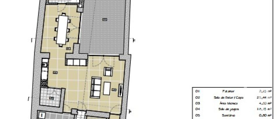
Cette magnifique maison jumelée, entièrement rénovée avec des matériaux de luxe et de confort, offre une surface totale de 265,8 m² sur un terrain spacieux de 351,8 m². Située à Pêra, dans l’Algarve, cette propriété est une véritable opportunité unique.
Espaces intérieurs :
4 chambres, toutes avec salle de bain privative pour un maximum d’intimité et de fonctionnalité.
3 cuisines modernes à concept ouvert, parfaites pour les passionnés de gastronomie.
2 salons et 2 salles à manger, idéales pour des moments de convivialité et de divertissement.
Au total, 6 salles de bain élégantes, avec des finitions haut de gamme.
Hall d’entrée accueillant, qui vous reçoit avec raffinement.
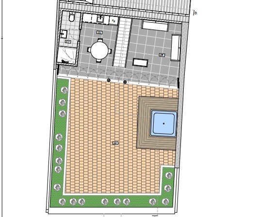
Espaces extérieurs :
Grande terrasse avec deux espaces distincts pour se détendre et profiter du soleil de l’Algarve, avec piscine privative, idéale pour se rafraîchir pendant les chaudes journées d’été.
Terrasse au 2ᵉ étage, avec vue sur la mer et piscine à hydromassage.
Parking pour 2 véhicules, garantissant commodité au quotidien.
Exposition solaire idéale, avec orientation sud et nord.
Caractéristiques supplémentaires :
Année de construction : 1970, entièrement rénovée avec élégance.
Chauffage avec système individuel, plancher chauffant et climatisation réversible.
Équipée de fibre optique, TV câblée et de tout le confort moderne.
Proximité de nombreux points d’intérêt, tels que la Praia Grande de Pêra, le Zoomarine à Guia, le centre d’Albufeira et l’aéroport de Faro.
Emplacement privilégié :
Cette maison se situe dans un lieu stratégique :
à 3,5 km de la Praia Grande de Pêra,
à 6 km du Zoomarine à Guia,
à 12 km du centre d’Albufeira,
et à seulement 48 km de l’aéroport de Faro.
Parfaite pour profiter des magnifiques plages, de la nature environnante et des activités touristiques de la région.
C’est l’opportunité idéale de vivre avec confort, élégance et qualité de vie en Algarve. Prenez rendez-vous dès maintenant pour découvrir la maison de vos rêves à Pêra !
Équipements
Intérieur
Extérieur
Autre
Bilan énergétique
Consommation énergétique :
Cette maison/villa est située à Alcantarilha e Pera.









