
- Nouveau
995 000 €
Maison de plain-pied à Leiria
- 4 chambres
- 384 m² de surface brute
- 1 000 m² de terrain


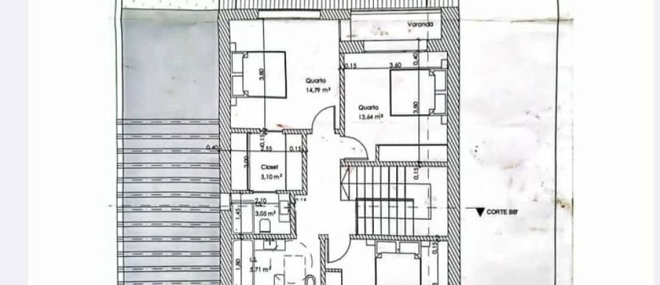
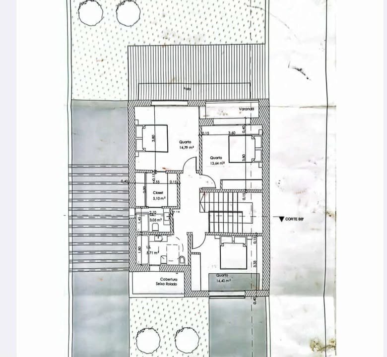
## 🏡 Maison en Phase Finale de Construction – Porto de Mós Découvrez cette charmante maison jumelée située dans le paisible village de Porto de Mós, réputé pour sa beauté naturelle et sa tranquillité. Bénéficiant d’un excellent emplacement, elle offre un accès facile aux magnifiques plages de la région ainsi qu’à l’autoroute, garantissant mobilité et qualité de vie. ### ✨ Livraison Clé en Main La maison est en phase finale de construction et sera livrée entièrement achevée à son nouveau propriétaire — prête à être habitée avec tout le confort nécessaire. ### 🏠 Composition de la Maison *Rez-de-chaussée :* - Salon spacieux de 32 m² - Cuisine équipée avec meubles modernes et électroménagers - Buanderie fonctionnelle de 11 m² - Salle de bain d’invités de 2,5 m² - Débarras de 6,5 m² *Étage :* - Suite de 15 m² avec dressing de 5 m² et salle de bain privative de 3 m² - Salle de bain principale de 6 m² - Deux chambres de 14 m² chacune, avec placards intégrés ### 🌿 Espace Extérieur - Terrain total de 260 m² - Emprise au sol de 100 m² - Aire de stationnement privée de 54 m² - Barbecue, idéal pour les moments de détente - Terrasse en bois de 26 m² pour se relaxer en plein air - Jardin de 59 m², parfait pour profiter de la nature --- C’est l’opportunité idéale pour ceux qui recherchent une maison neuve, fonctionnelle et bien située, dans un environnement calme et agréable. Contactez-nous pour plus d’informations ou pour organiser une visite !
Réf : 134306
Diagnostic de performance énergétique (DPE)
Biens similaires

995 000 €


370 000 €


46 750 €


340 000 €
