
480 000 €
Pavillon à Castelo do Neiva
- 4 chambres
- 260 m² de surface brute
- 958 m² de terrain


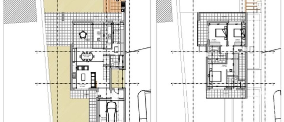
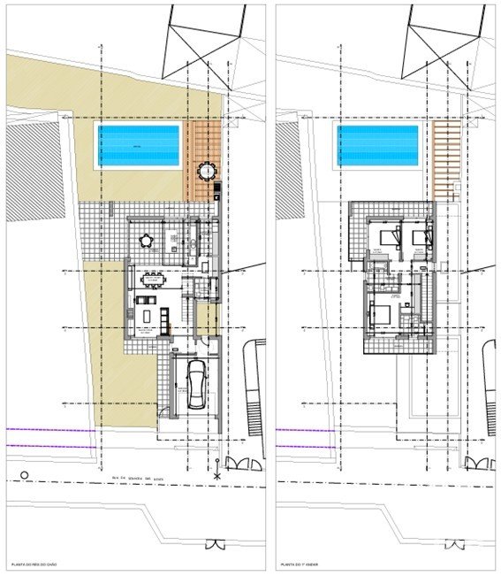
VILLA INDÉPENDANTE DE 3 CHAMBRES AVEC PISCINE, SITUÉE À CASTELO DO NEIVA Découvrez le refuge idéal pour votre famille, cette maison indépendante, en construction, conçue pour vous offrir confort et style. Réparti sur deux étages, il se distingue par son espace et ses détails soigneusement pensés. Au rez-de-chaussée, vous trouverez une cuisine et un salon et salle à manger (66,60 m2) dans un espace ouvert, qui se prolonge jusqu'au patio avec barbecue, espaces de jardin et piscine (32,00 m2), créant l'environnement parfait pour les rassemblements en plein air. Une salle de bain complète (5,05m2), un local mécanique (7,30m2) et un garage (27,00m2) complètent cet étage. Au premier étage, une suite avec dressing et salle de bain privée (27,10m2) avec un balcon donnant sur la mer à l'horizon, deux chambres (12,30m2 chacune) avec un balcon commun et une salle de bain complète (8,25m2). La maison sera équipée d'une pompe à chaleur pour le chauffage/refroidissement des locaux et de l'eau sanitaire, d'un poêle à récupération de chaleur et de châssis à double vitrage avec protection solaire à l'extérieur, avec volets électriques intégrés. Située dans la paroisse de Castelo do Neiva, la maison vous offre un équilibre entre vivre à dix minutes du centre-ville de Viana do Castelo et profiter du calme et de la tranquillité de la vie en périphérie, avec la plage à proximité. Un produit final très agréable à l'oeil, car le choix des finitions vous appartiendra. VENEZ VISITER. CONNAISSEZ-VOUS LE CASTELO DO NEIVA ? Castelo do Neiva est une paroisse de la commune et du district de Viana do Castelo, située à 10 km du siège de la commune. Il est baigné par la rivière Neiva au sud et par l'océan Atlantique à l'ouest, d'où l'on bénéficie d'une excellente visibilité sur la vaste plaine qui s'étend autour, ainsi que sur l'embouchure elle-même. Voisine des paroisses de Chafé, au nord et de Neiva, à l'est, avec une population d'environ trois mille habitants. Il représente une paroisse chargée d'histoire et de tradition, avec un littoral l'un des plus riches du pays en termes d'iode et avec une excellente gastronomie, y compris les poissons et fruits de mer de notre côte, mais sans oublier la bonne viande, issue d'une bonne agriculture traditionnelle. Bien connue pour sa plage, située dans un environnement rural. Sa plage est vaste et dotée d'infrastructures de soutien complètes, ce qui rend le séjour des baigneurs très agréable. La limite de cette plage est la rivière Neiva qui se jette dans la mer, circulant entre dunes et pinèdes. VENEZ LE VOIR.
Réf : 138221
Diagnostic de performance énergétique (DPE)
Biens similaires

480 000 €


340 000 €


