Maison T2 à Sever de 118 m²
Atouts
À propos de cette maison de 2 chambres à Sever, Sever
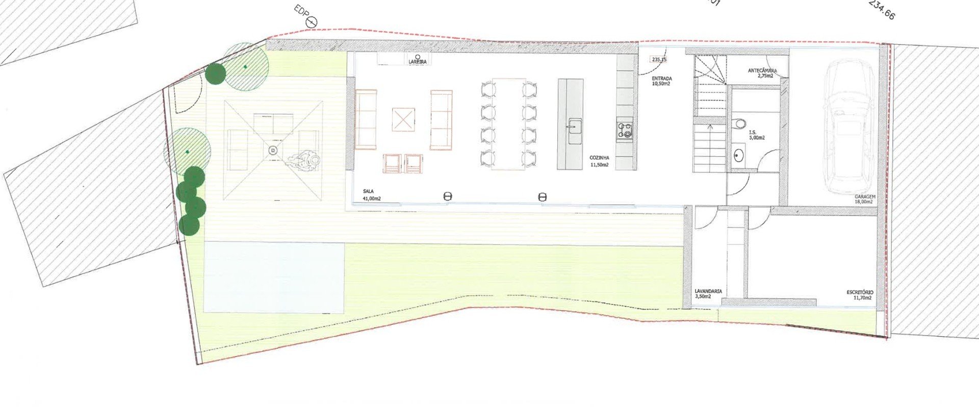
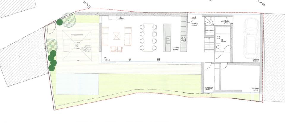
Moradia para reconstruir com projeto em curso – Vistas deslumbrantes para os socalcos do Douro
No seio da paisagem única do Douro Vinhateiro, Património Mundial da UNESCO, encontra-se esta moradia parcialmente em ruínas, com projeto em curso para a construção de uma acolhedora moradia de tipologia T3.
Uma oportunidade rara para quem procura viver ou investir numa região onde a história, a natureza e a tradição se entrelaçam de forma mágica.
Localizada numa aldeia pitoresca e autêntica de Santa Marta de Penaguião, esta propriedade oferece vistas deslumbrantes sobre os socalcos do Douro e uma atmosfera de tranquilidade que convida ao descanso, longe da azáfama urbana.
Principais características:
•Projeto para moradia com design funcional e harmonioso com excelente integração na paisagem envolvente
•Localização elevada com vistas panorâmicas sobre os vinhedos do Douro
•Inserida numa aldeia pitoresca e tradicional, com ambiente calmo e acolhedor
•Curta distancia do centro de Santa Marta de Penaguião, com acesso fácil a comércio, serviços e restauração
•Excelente ponto de partida para explorar os vinhedos do Douro, miradouros, quintas vinícolas ou a praia fluvial a poucos quilometros
•A poucos minutos da vila de Santa Marta de Penaguião, da cidade de Peso da Régua, Lamego, e Vila Real, bem como da EN222, considerada uma das estradas mais bonitas do mundo e de outras atrações turísticas da região
Ideal para:
•Casa de férias ou fins de semana
•Refúgio tranquilo com natureza e vistas únicas
•Projeto turístico no Douro
Santa Marta de Penaguião é uma das mais antigas e genuínas zonas produtoras de vinho do Douro.
A região é hoje um destino cada vez mais procurado por turistas nacionais e estrangeiros que procuram experiências autênticas, como:
•Enoturismo em quintas centenárias com provas de vinho e visitas guiadas
•Passeios de barco no rio Douro, entre colinas cobertas de vinhas
•Trilhos pedestres e miradouros que revelam paisagens de tirar o fôlego
•Proximidade a monumentos históricos, gastronomia regional e eventos culturais.
Se procura um refúgio com carácter e grande potencial, onde imagina acordar com o silêncio da natureza, o aroma das vinhas e uma vista deslumbrante sobre o Douro, esta pequena aldeia proxima de Santa Marta de Penaguião, onde o tempo parece andar mais devagar e a vida sabe melhor, é o local ideal.
Quer viva o Douro ou queira partilhá-lo com o mundo, esta é uma oportunidade com história, charme e futuro.
Venha conhecer e apaixone-se por esta terra cheia de tradição.
Para mais informações ou agendar visita, entre em contacto.
Fundada em França, em maio de 2008, por três profundos conhecedores do setor imobiliário, a IAD partiu de um conceito visionário que funde imobiliário, web e marketing de rede.
A IAD vem desmaterializar as agências (lojas), promovendo uma relação de proximidade entre o consultor imobiliário e o cliente, prestando um serviço mais competitivo a quem queira comprar, arrendar ou vender um imóvel.
O que procura o cliente do século XXI quando decide comprar, arrendar ou vender um imóvel?
Procura um serviço completo, descomplicado e competitivo.
É isso que lhe propomos na IAD.
Não temos lojas, os nossos consultores vão ao seu encontro, tendo acesso à mais recente formação do setor e a uma plataforma de ferramentas exclusivas que lhes permite prestar-lhe o melhor serviço onde quer que esteja.
Damos aos nossos consultores a flexibilidade e a autonomia necessárias para lhe garantir um acompanhamento personalizado na concretização do seu projeto, seja ele de comprar, arrendar ou vender um imóvel.
Na IAD encontra um consultor imobiliário à sua medida.
*Na IAD partilhamos negócios com qualquer consultor ou agência imobiliária. Promovemos os imóveis em mais de 250 portais imobiliários Nacionais e Internacionais.
Équipements
Extérieur
Cette maison/villa est située à Sever.



