

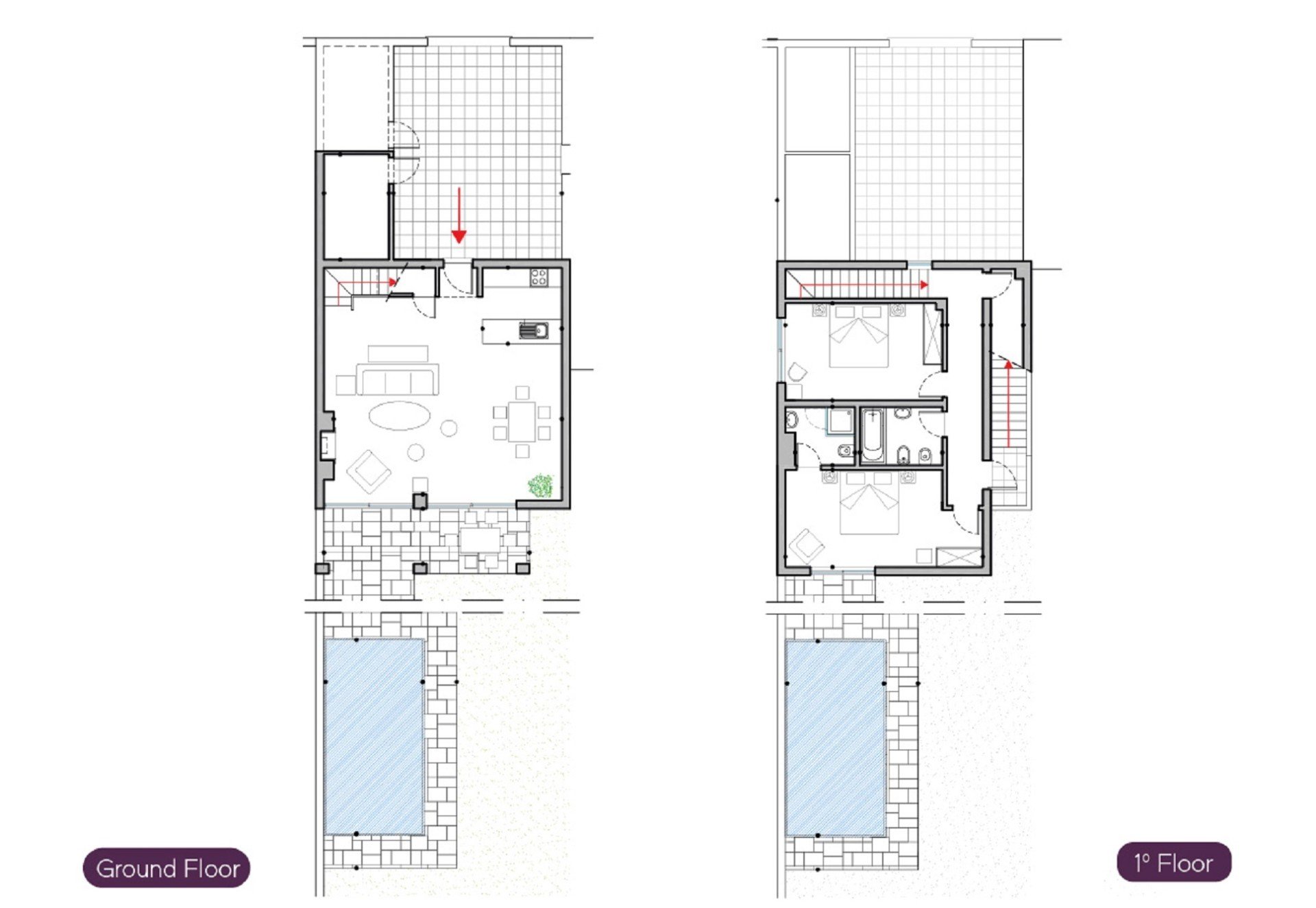
Cette villa contemporaine de 3 pièces est située dans le complexe de luxe 5 étoiles, le Martinhal Sagres, situé dans un parc naturel protégé à 300 mètres de la plage de Martinhal et à 4 minutes en voiture du centre-ville de Sagres. La villa fait partie des villas mitoyennes "Pinewood". Chaque villa dispose d'une piscine et d'un jardin privé menant à une petite pinède, offrant ainsi intimité et cadre naturel, tout en étant très proche du centre de la résidence et de toutes les commodités. C'est l'idéal pour les familles qui recherchent l'intimité, sans être trop éloignées du cœur du resort. SURFACES : Intérieur 110,40 m2 (surface brute privée) et extérieur 116,90 m2 avec droit d'usage exclusif du jardin et de la piscine individuelle. L'entrée se fait par un patio commun avec un débarras extérieur individuel. Au rez-de-chaussée se trouve la cuisine entièrement équipée en "open space" avec la salle à manger et le salon avec accès direct à la terrasse, ainsi qu'au jardin et à la piscine chauffée de 3 X 6 m avec 1,20 m de profondeur et couverture automatique. Au 1er étage se trouvent deux chambres, une chambre double en-suite avec douche, et une chambre à deux lits et une salle de bain avec baignoire. Un espace de rangement et quelques escaliers donnent accès à une grande terrasse sur le toit d'où l'on peut voir la station. D'allure contemporaine, l'utilisation de formes et de lignes discrètes souligne l'élégante simplicité qui s'étend à l'intérieur. Le décor est à la fois sophistiqué et fonctionnel, décontracté et créatif. L'architecte d'intérieur Michael Sodeau a insisté sur l'utilisation de matériaux de haute qualité et a utilisé du bois naturel, de la pierre de Monchique et d'autres produits tels que le liège et l'osier pour donner aux intérieurs un label écologique. La villa est parfaitement équipée : climatisation dans chaque pièce, pompe à chaleur pour la piscine et panneau solaire pour le chauffage de l'eau domestique. Martinhal Sagres a été conçu pour les familles. Élégant et design, il offre aux familles des vacances luxueuses à la plage, avec des logements adaptés aux familles, des restaurants, des bars et des services de loisirs et pour enfants de première classe qui placent les familles au centre de leurs préoccupations. Le complexe dispose d'une sélection de villas de luxe, de 5 piscines, de 4 restaurants, de bars, d'un spa et de 5 clubs pour enfants de tous âges. Sagres est un village de pêcheurs situé dans la municipalité de Vila do Bispo, bien connu pour ses plages, ses sports nautiques et terrestres, notamment les promenades le long des sentiers de la Costa Vicentina, et pour sa gastronomie basée sur ce que la mer a à offrir. Enfin, cette propriété représente une belle opportunité d'investissement immobilier avec un contrat de location-gérance qui permet d'obtenir de bons revenus en toute tranquillité. Réservez votre visite dès maintenant ! Chez IAD, nous partageons notre activité avec n'importe quel consultant ou agence immobilière. Nous promouvons des propriétés sur plus de 200 portails immobiliers internationaux. Si vous êtes un professionnel du secteur et que vous avez un client acheteur qualifié, contactez-moi et planifiez votre visite. Sachez que je suis disponible à 100%, par téléphone ou par e-mail, pour vous fournir toute information complémentaire sur cette propriété et pour programmer une visite virtuelle plus détaillée en ligne ou une visite de la villa et du complexe hôtelier sur place.
Réf : 92224
Diagnostic de performance énergétique (DPE)
Biens similaires
