Maison T2 à Sabóia de 95 m²
À propos de cette maison de 2 chambres à Sabóia, Sabóia
Petite maison à deux étages, récemment rénovée, située dans le village de Santa Clara-a-Velha, près de la plage fluviale du réservoir de Santa Clara. Située à 40 minutes en voiture de l'Algarve.
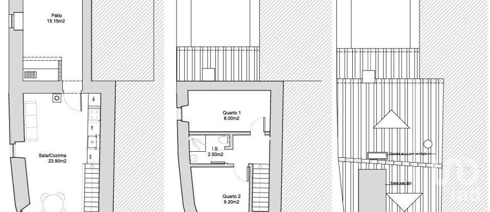
Composée de deux chambres et d'une salle de bain à l'étage supérieur. Salon et cuisine commune au rez-de-chaussée.
La maison bénéficie d'un patio extérieur avec une petite piscine avec fontaine à circuit fermé, la pompe et le filtre garantissent la propreté et la qualité de l'eau. La maison est équipée d'appareils électroménagers neufs, d'un chauffe-eau de 250L pour le chauffage de l'eau chaude sanitaire, d'un poêle dans le salon, de ventilateurs thermiques à faible consommation dans les chambres et la salle de bain pour le chauffage et le refroidissement. Construction en pierre et en torchis, restaurée avec des techniques de construction traditionnelles.
La toiture avec une isolation de 10cm garantit le confort thermique en été comme en hiver.
Équipements
Extérieur
Bilan énergétique
Consommation énergétique :
Cette maison/villa est située à Sabóia.



