Maison T2 à Labruja de 175 m²
À propos de cette maison de 2 chambres à Labruja, Labruja
Refuge au cœur de l'Alto Minho - Opportunité unique à Labruja, Ponte de Lima !
Si vous cherchez un endroit où la tranquillité de la nature rencontre le potentiel du tourisme, c'est la propriété qu'il vous faut !
Située à Labruja - Ponte de Lima, au cœur de l'Alto Minho et au milieu du chemin portugais de Saint-Jacques-de-Compostelle, cette propriété offre un environnement serein, entouré d'un paysage époustouflant et idéal pour un logement personnel ou un investissement touristique.
Caractéristiques de la propriété :
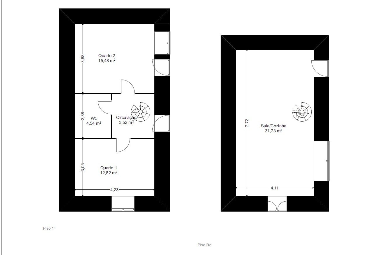
* Maison indépendante restaurée (70 m²) avec 2 chambres à coucher au rez-de-chaussée et au 1er étage :
- Plan ouvert avec cuisine meublée et équipée
- Cheminée et chauffage électrique
- 2 chambres confortables
- Salle de bain avec baignoire
- Annexe indépendante avec buanderie (32 m²)
* Ruine à restaurer avec 80 m² de surface brute de construction - idéal pour extension ou création d'un nouvel espace résidentiel ou touristique.
* Terrain en terrasses de 730 m², avec vue panoramique sur les montagnes et la nature environnante.
Equipement et Extras :
- Portail automatique
- Vidéophone
- Parking pour 4 voitures
- VMC (ventilation mécanique contrôlée)
- Châssis en aluminium avec double vitrage
Excellente exposition au soleil
Situation stratégique :
- A seulement 11 km du centre de Ponte de Lima
- 12,6 km de l'hôpital privé
- 13 km du terrain de golf
- 15 km de l'hôpital public
- 16 km des écoles
- 59 km de l'aéroport de Porto
Pourquoi choisir Labruja ?
Labruja est une paroisse pittoresque connue pour son charme naturel et sa tranquillité, intégrée au chemin portugais de Saint-Jacques-de-Compostelle, ce qui la rend idéale pour des projets de tourisme rural, d'hébergement local ou simplement pour ceux qui recherchent une retraite inspirante en contact avec la nature.
Investissez dans un mode de vie authentique dans un endroit où le temps ralentit et où la beauté est constante.
Contactez-nous pour réserver votre visite et découvrir par vous-même le potentiel de cette magnifique propriété !
Équipements
Extérieur
Autre
Bilan énergétique
Consommation énergétique :
Cette maison/villa est située à Labruja.





