Maison traditionnelle T1 à Gândaras de 160 m²
À propos de cette maison de 1 chambre à Gândaras, Gândaras
Le village de Lousã, situé au cœur de la région Centre du Portugal, est un véritable trésor qui allie la tranquillité de la vie rurale à la proximité de grandes villes comme Coimbra. Grâce à sa situation privilégiée, entourée de montagnes et de paysages époustouflants, Lousã est la destination idéale pour ceux qui recherchent une qualité de vie alliant la sérénité de la nature à la commodité de la vie moderne. Connue pour ses impressionnantes chaînes de montagnes, la Serra da Lousã se distingue par ses villages typiques en schiste, qui enchantent les visiteurs avec leurs rues étroites et leurs maisons en pierre, en parfaite harmonie avec l'environnement naturel. Outre les villages, la région offre un vaste réseau de sentiers et d'itinéraires pédestres, parfaits pour les amateurs de randonnée, ainsi que pour ceux qui souhaitent explorer les forêts et les rivières de la région.
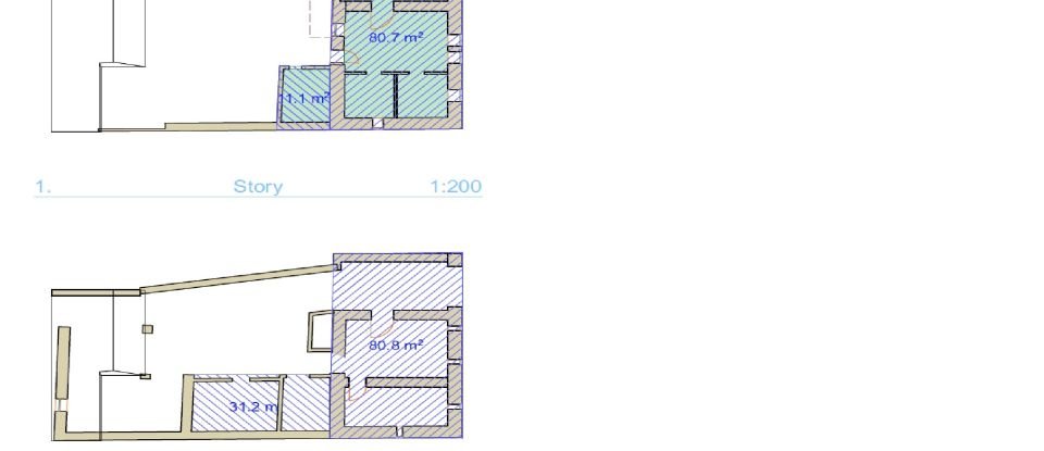
Nous trouvons ici cette propriété très caractéristique. Construite en pierre et en bois, elle a deux étages (chacun d'environ 80m2) et est la propriété parfaite pour l'investissement ou pour votre propre maison. Elle dispose également d'un terrain où l'on peut trouver un puits, ce qui augmente son potentiel. Comme le montrent les images, un projet architectural est proposé pour rénover la propriété, la transformant en une villa à deux étages dans laquelle au rez-de-chaussée il y a 1 garage, 2 suites dont une avec vestiaire, une buanderie et une salle des machines et au 1er étage 1 cuisine, une salle à manger, un salon, un bureau, une salle de bain de service, 1 terrasse, des balcons et une zone de loisirs.
L'histoire de Vila de Lousã remonte à l'Antiquité et, en se promenant dans ses rues, on se sent enveloppé par l'héritage culturel qui se reflète dans l'architecture et les traditions locales. La gastronomie riche et variée de la région est également un point fort, avec des plats typiques qui ravissent tous les palais.
Lousã offre une excellente qualité de vie, avec un environnement calme et sûr, idéal pour les familles, les couples ou même ceux qui cherchent une résidence secondaire loin de l'agitation des grandes villes. La ville dispose de bonnes infrastructures de santé, d'éducation et de transport, ce qui en fait une option de vie de plus en plus recherchée. En outre, elle n'est qu'à quelques minutes de Coimbra, ce qui permet à ses habitants de profiter de tous les services et commodités offerts par la ville, sans renoncer à la paix et à la tranquillité d'un charmant village. Avec la restauration de la ligne de chemin de fer (nouveau metrobus), la liaison entre Lousã et Coimbra sera beaucoup plus rapide.
La demande de biens immobiliers dans le village de Lousã a augmenté, de plus en plus de personnes reconnaissant le potentiel de la région pour y vivre ou y investir. Si vous êtes à la recherche d'une maison, que ce soit pour y vivre en permanence ou pour profiter des charmes de la ville pendant vos vacances, Lousã offre un large éventail d'options, des villas traditionnelles en pierre aux appartements modernes, adaptés aux besoins du marché d'aujourd'hui.
Pourquoi choisir Lousã ?
Nature à couper le souffle : idéale pour les amateurs de plein air, avec de nombreux itinéraires de randonnée et un paysage unique.
Qualité de vie : ville tranquille et sûre, dotée d'une bonne infrastructure et de services essentiels.
Accessibilité : Situation stratégique, à quelques minutes de Coimbra et bien reliée aux autres villes.
Investissement croissant : une zone dont la valeur ne cesse d'augmenter, avec un grand potentiel pour ceux qui souhaitent investir dans le secteur de l'immobilier.
Si vous cherchez un endroit où la beauté naturelle et la tranquillité rencontrent la qualité de vie, Vila de Lousã est l'endroit idéal pour s'installer. Venez découvrir tout ce que ce charmant village a à offrir !
Description de la propriété :
- 88,6 mètres carrés de surface privée brute
- 178,2 mètres carrés de surface brute dépendante
- 555 mètres carrés de surface totale du terrain
Distances importantes :
- Ville de Lousã à 3.4 km
- Ville de Coimbra à 24 km
- Lisbonne à 205 km
- Porto à 153 km
Réservez votre visite maintenant et assurez-vous que c'est votre future propriété.
Équipements
Extérieur
Cette maison/villa est située à Gândaras.

