Building plot in Salir de Matos of 6,587 m²
About this land at Salir de Matos, Salir de Matos
+ URBAN PLOT 6,587 M² | FEASIBILITY FOR 4 DETACHED VILLAS | CALDAS DA RAINHA – SILVER COAST
A rare opportunity for those looking to invest, build or develop a dream project in Portugal's thriving Western region. This urban plot of 6,587 m² is located in Formigal, parish of Salir de Matos, Caldas da Rainha, in a quiet setting with open views and excellent sun exposure — perfect for those seeking quality of life close to nature, with quick access to the coast and the city.
===============================
+ PRIME LOCATION
This plot sits in a peaceful rural environment while offering all the advantages of being classified as urban land. Just minutes away from:
- 8 minutes to Caldas da Rainha
- 15 minutes to Foz do Arelho beach
- 20 minutes to São Martinho do Porto bay
- 25 minutes to the medieval town of Óbidos
- 50 minutes to Lisbon
An excellent choice for those seeking peace without giving up proximity to the sea, commerce, and infrastructure.
===============================
+ PLOT FEATURES
- Total area: 6,587 m²
- Construction index (PDM): 0.29
- Estimated gross building area: approx. 1,910 m²
- Dual street frontage
- Excellent sun exposure and unobstructed views
- Utilities on-site: electricity, water, and telecoms
===============================
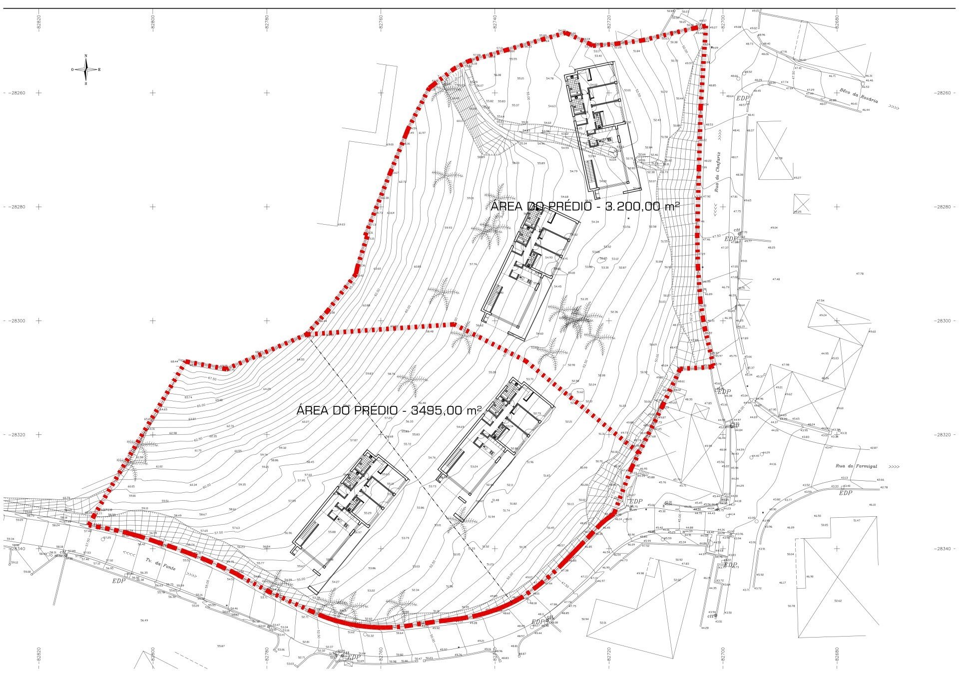
+ FEASIBILITY STUDY
A preliminary feasibility study has been developed, outlining the construction of 4 detached villas, each with its own private plot and access. The study defines the optimal layout of the buildings and internal road access in accordance with local urban planning rules.
Note: The attached images and illustrations are for conceptual purposes only and do not correspond to approved architectural projects.
===============================
+ POTENTIAL AND OPTIONS
The property can be sold as a whole or divided into two independent plots as outlined in the study:
- Plot A – 3,495 m² → €85,000
- Plot B – 3,200 m² → €80,000
- Total sale → €165,000
Ideal for:
- Primary or second home construction
- Multi-family residential development
- Investment by property developers
- Rural tourism or short-term rental projects
With the growing value of Portugal's Western region, this is a secure and strategic long-term investment.
===============================
+ BOOK A VISIT
Opportunities with this scale, location, and flexibility are increasingly rare.
For more information, feasibility study, or to schedule a site visit, please contact.
Equipments
Outdoor
This land is located at Salir de Matos.








