

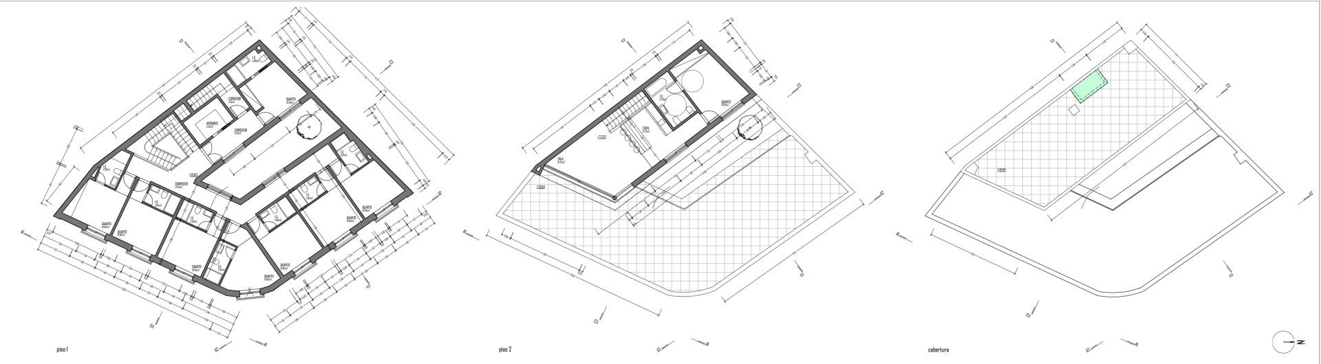
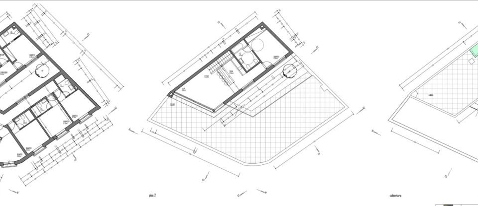
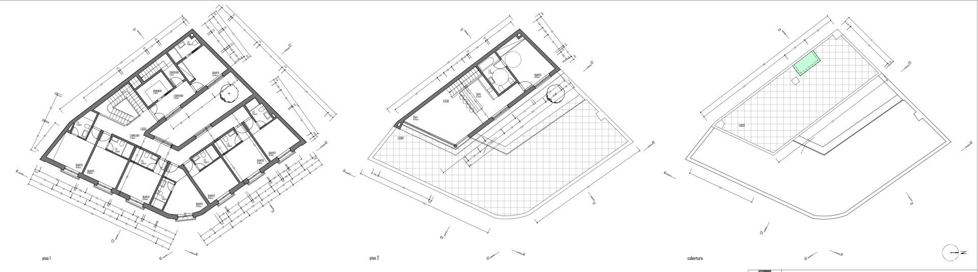
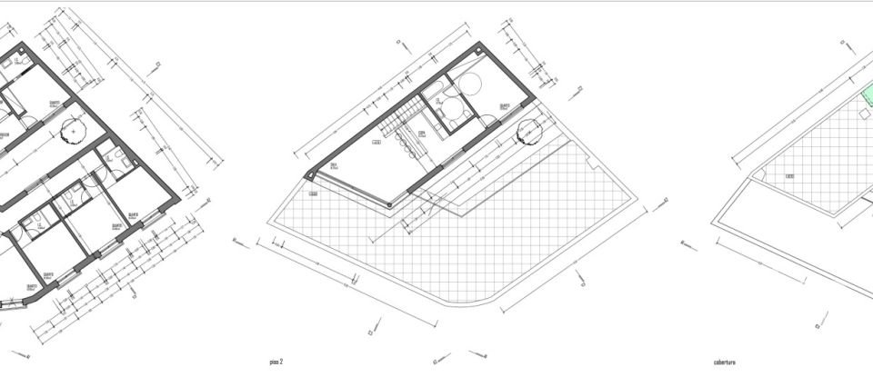
EXCEPTIONAL INVESTMENT - Boutique Hotel T9 in the Historic Heart of Lagos Discover a unique property in the heart of Lagos’ historic centre: a charming boutique hotel, fully rebuilt in 2018/2019, where the architectural authenticity of the Algarve blends harmoniously with modern comfort. With over 500 m² elegantly spread across several levels, this property offers: - 9 refined suites, each with a private bathroom; - An independent penthouse with open-plan kitchen, living room, and direct access to a spacious panoramic terrace; - Welcoming common areas: reading room, games room, and atrium flooded with natural light; - A central patio and a stunning rooftop with breathtaking views over the old town; - Garage, storage, and laundry facilities for optimal convenience. - Equipped with air conditioning, central heating, solar panels, and a photovoltaic system, it ensures year-round comfort and energy efficiency. Its privileged location, within the city walls and just a short walk from the beaches, the Marina, and the vibrant cultural and gastronomic life of Lagos, makes this a rare and secure investment. Currently operated as a highly rated guesthouse (4.8/5 on Google), it offers excellent profitability potential. Its layout also allows for an easy conversion into a luxury private residence, offering space, exclusivity, and authenticity in the heart of one of the Algarve’s most iconic cities. A rare opportunity, ideal for discerning investors or for those who dream of a unique lifestyle in historic Algarve. Contact me for more information or to schedule a visit. *I speak French, Portuguese, English, and Spanish. *50%-50% commission sharing with all partner agencies.
Ref: 146030
Energy performance diagnosis
Similar properties



€1,495,000


Nearby towns
Others property types in São Gonçalo de Lagos
Others property types nearby
Other projects in São Gonçalo de Lagos