

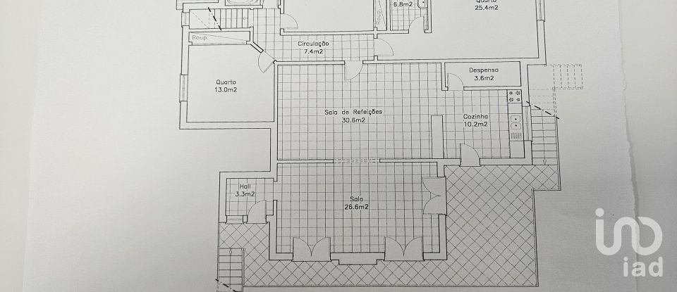
TWO STOREY DETACHED VILLA IN FOZ DO ARELHO This detached two-storey villa overlooking the Óbidos Lagoon is located in the heart of the quiet village of Foz do Arelho. This magnificent location offers a peaceful and relaxed experience, where you can reach the lagoon in just a few minutes by bike or on foot and enjoy the many terraces and restaurants, as well as multiple water sports. The property is set on a 367m2 plot of land and has 374m2 of gross construction area spread over two floors. On the ground floor there is a large open-plan kitchen, a living room, three bedrooms with superb, bright areas, two of them with wardrobes, two bathrooms, storage and a garage with a toilet. Outside, there is a space where you can enjoy outdoor gatherings and relax in the shade of the trees in the garden. On the first floor, with independent indoor and outdoor access, there are three bedrooms, one en suite and two with wardrobes, all with excellent areas, two bathrooms, a kitchen with pantry and two large, airy and spacious living rooms, with access to an extensive balcony overlooking the Óbidos lagoon. All the furniture is included in the sale of the property. Located in Foz do Arelho, in the district of Leiria, this is an ideal area for those who value proximity to services without compromising the tranquillity of the environment and enjoy the famous Óbidos Lagoon and the Atlantic. This village is just 8 kilometres from Caldas da Rainha, known for its convenience, offering a variety of services, shops and access. Óbidos is just 12 km away and Lisbon 90 km, taking about an hour on the A8 motorway. Come and discover your new refuge, book a visit now.
Ref: 141890
Energy performance diagnosis
Similar properties




€425,000

Nearby towns
Others property types in Foz do Arelho
Others property types nearby
Other projects in Foz do Arelho