House T5 in Santo Tirso, Couto (Santa Cristina e São Miguel) e Burgães of 323 m²
Features
About this house/villa of 5 bedrooms at Santo Tirso, Couto (Santa Cristina e São Miguel) e Burgães, Santo Tirso, Couto (Santa Cristina e São Miguel) e Burgães
4+1 bedroom villa with signature architecture, swimming pool, tennis court, and over 2,300 m² of freedom – Santo Tirso – A soulful retreat 20 minutes from Porto.
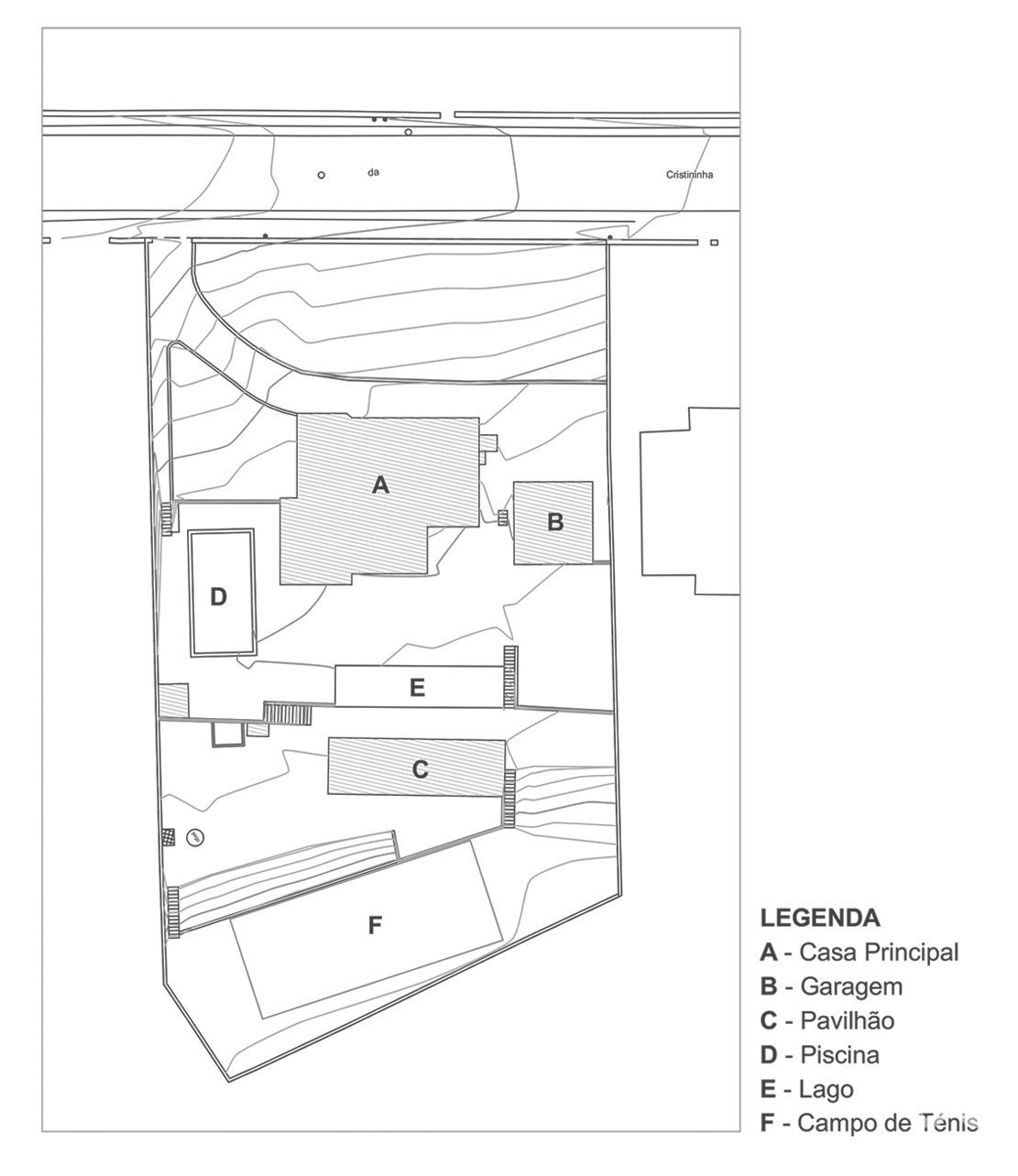
We present you with a truly unique property: a 4+1 bedroom villa with 255 m² of gross private area, accompanied by a 68 m² multipurpose pavilion, set on a plot of over 2,300 m².
Here, the sound of the city gives way to the croaking of frogs in the lake in front of the house. Days follow the rhythm of dips in a saltwater pool surrounded by greenery. There is space to cultivate, rest, entertain friends, play tennis, or simply let the little ones run free.
The main house – Architecture that respects nature
An original work by architect Noé Diniz, this house represents the synthesis between international modernism and traditional Portuguese architecture, a movement with a strong presence in the north of the country, driven by prominent architects such as Noé Dinis himself.
More recently, the house has undergone occasional renovations by the architecture and design firm Bastir.
It is distinguished by its harmonious relationship with the topography of the land and the way it enhances natural light, the fluidity between spaces, and the connection between interior and exterior. The spaces flow naturally, providing a practical and, at the same time, welcoming experience.
Interior layout:
• Entrance hall
• Master suite with fireplace (heat recovery unit), library, built-in wardrobes, bookshelves, winter garden, and bathroom with shower
• Second suite with built-in wardrobes, bathtub, and balcony surrounded by vegetation
• Two additional bedrooms with built-in wardrobes
• Full bathroom with shower
• Large living room with stone fireplace and direct access to the garden and lake
• Bright dining room
• Functional kitchen with dining area
• Service area with maid's room, bathroom, and storage (area not included in the multimedia material)
The original wooden window frames and shutters are well preserved and functional.
Although ready to move into, this villa needs some repair and maintenance work, offering great potential for personalization.
Multipurpose Pavilion – Versatility with a view
Designed by renowned architect Maria Luísa Penha Souto de Moura, this independent space is ideal for welcoming guests, developing a creative project, working from home, or simply relaxing.
Equipped with:
• Kitchen (stove, extractor fan, fridge-freezer)
• Bathroom with shower
• Washing machine and dryer
• Outdoor laundry area with sink
• Wide, unobstructed views
The Outdoor Area – A timeless natural setting
The entire property is surrounded by rich and varied vegetation: fruit trees, ornamental plants, shrubs, and flowers of various species, creating a setting of tranquility and beauty.
In the surrounding area you will find:
• Private tennis court
• Saltwater swimming pool (salt electrolysis treatment) with deck and outdoor shower
• Bathroom for pool use
• Natural lake with water lilies and frogs
• Children's area with swings and toys
• Closed garage for 2 to 3 cars (with additional space for workshop or storage)
Thermal comfort and efficiency:
• Heat recovery unit in the master suite
• Central heating system with radiators in all main rooms (oil-fired boiler + solar panels)
• Domestic water heating with oil boiler and solar panels
• Propane gas stove
• Water supply through the public network and an existing well on the property
Location and quality of life in Santo Tirso
Santo Tirso stands out for its balance between tradition, nature, and affordability.
The city offers access to quality healthcare, with a 24-hour hospital and proximity to referral units in Porto. According to the International Living platform, Santo Tirso stands out for the presence of the Monastery of São Bento, urban parks, thermal baths, and a peaceful pace of life, ideal characteristics for retirees, digital nomads, and families seeking quality of life outside (but close to!) large urban centers.
Distances of interest:
• Santa Cristina de Couto Parish Church – 5 min walk
• Santo Tirso Town Hall – 4 min drive
• Auchan – 1 min drive
• Mercadona – 4 min drive
• Lidl / Pingo Doce / Continente – 6 min drive
• Santo Tirso Urban Beach – 8 min by car
• Caldas da Saúde Thermal Spa – 11 min by car
• Francisco Sá Carneiro Airport: 22 min by car
• Campanhã Station (Porto): 28 minutes
• Bolhão Station (Porto): 38 minutes
Allow yourself more, this house is for you! Schedule your visit with me today!
Here you will be able to live peacefully, without giving up proximity to all amenities. You will find a space ready to welcome new moments, new stories, and new affections — a property with soul.
I speak Portuguese, English, and Italian, and I guarantee personalized, ethical, and transparent support at every stage of the transaction.
We share a 50% commission with AMI-licensed real estate agencies.
iad Portugal – Present in Portugal for 9 years, iad is the largest network of independent real estate consultants. We focus on local knowledge, economies of scale, and a more human and efficient approach to the real estate market.
Equipments
Outdoor
Other
Energy efficiency
Energy consumption :
This house is located in Santo Tirso, Couto (Santa Cristina e São Miguel) e Burgães.

