

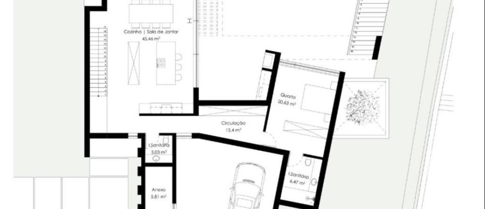
MORADIA V4 COM ARQUITETURA CONTEMPORÂNEA EM MOREIRA DO LIMA /PONTE DE LIMA Moradia de dois pisos, de arquitetura contemporânea, de tipologia T4 com abrigo automóvel. O interior é composto por sala de estar, cozinha e sala de jantar, lavandaria, quatro instalações sanitárias e quatro quartos, todos com roupeiros embutidos, sendo que, dois dos quartos está dotado de instalação sanitária. Possui ainda um alpendre para dois automóvel, anexo e espaços exteriores cobertos. Embora esteja implantada num lote urbano, insere-se em área rustica, rodeada por uma paisagem de elementos naturais e verdes, com excelente exposição solar, privacidade e sossego. Está servida por acessos pavimentados, redes de abastecimento de água, águas pluviais, rede elétrica e de telecomunicações. Localiza-se a cerca de 2Km do nó da A27 que liga Ponte de Lima a Viana do Castelo, Arcos de Valdevez e Auto Estrada A3.
Ref: 113859
Similar properties


€330,000


