

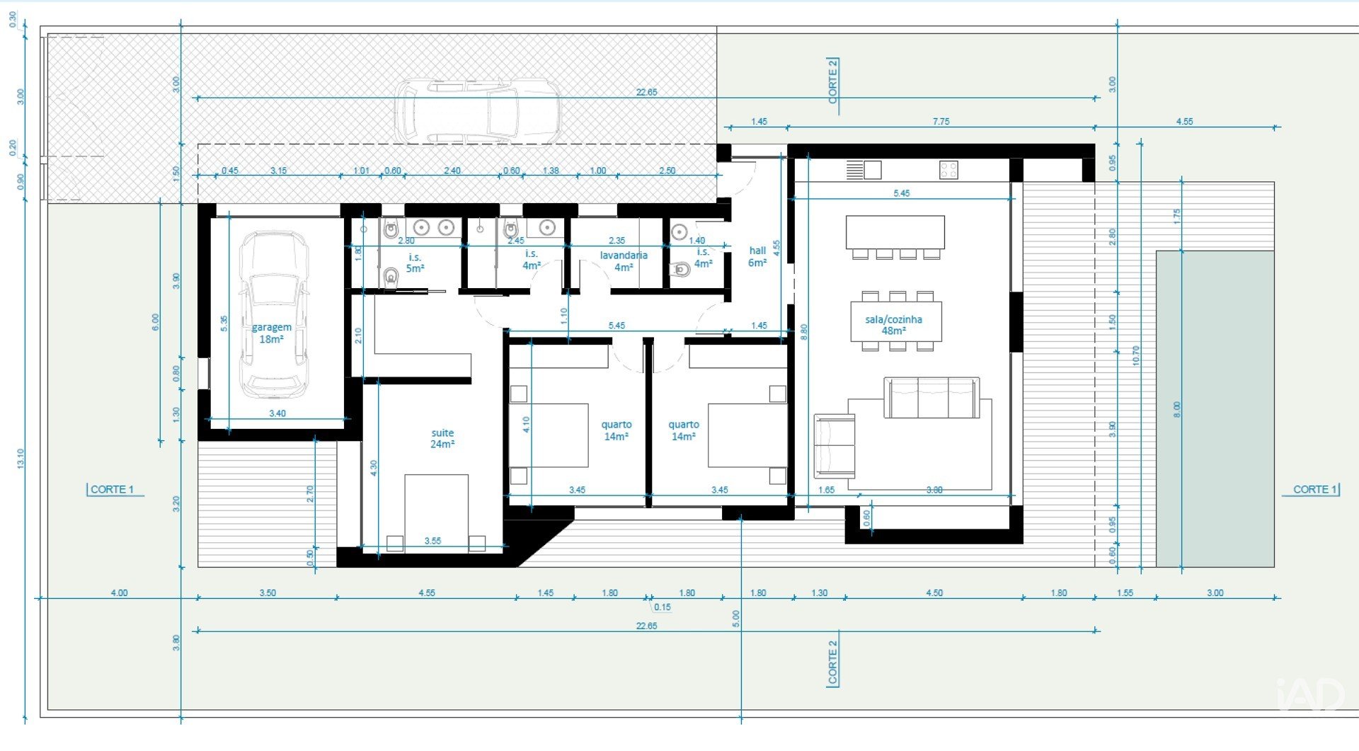
Single-Storey 3-Bedroom Villa with Swimming Pool in a Private Condominium – Senhora da Luz, Óbidos Live in Modern Comfort on the Silver Coast – Just Minutes from the Beach and Golf Courses • FRAÇÃO A In Senhora da Luz, Óbidos, an exclusive development of 10 detached villas is taking shape, where modern design and refined aesthetics meet a serene natural setting. The success of this project is already evident: of the 10 exclusive units, 6 have already been purchased by buyers who recognised their unique value. Only 4 villas remain available. This is your opportunity to secure a truly distinctive home, designed to offer absolute comfort and well-being. FEATURES: ✓ Detached Villa ✓ 3 Bedrooms, including 1 Suite ✓ 3 Bathrooms ✓ Bright and spacious interiors ✓ Construction Area: 152 m² ✓ Plot Size: 682 m² ✓ Heated Communal Swimming Pool: 77 m² | 92.4 m³ ✓ Communal and Leisure Areas: 1,385 m² DESCRIPTION: With a contemporary design and minimalist lines, this 3-bedroom villa stands out for its innovative architecture and high-quality finishes. The four bedrooms, including a suite, have been designed to offer exceptional privacy and comfort. The modern, fully equipped kitchen — in an open-plan layout — blends seamlessly with the living area. Large windows allow abundant natural light to flow through the space, creating a warm and harmonious atmosphere. The outdoor area is a true haven of tranquillity, featuring a heated communal swimming pool, perfect for year-round enjoyment, as well as a private garden ideal for leisure and relaxation. The property also includes a garage and outdoor parking, ensuring complete comfort and security. Located in a peaceful countryside setting just minutes from the town, this villa offers the perfect balance between nature’s serenity and the convenience of nearby urban amenities. Additionally, the location is ideal for lovers of sports and outdoor activities: close to the prestigious golf courses of the West region, the magnificent beaches of the Silver Coast — perfect for relaxing or practising water sports — and several natural trails for walking or cycling. EQUIPPED WITH HIGH-QUALITY FINISHES, INCLUDING: ✓ Vulcano air conditioning ✓ Heat pump and thermosiphon solar panels ✓ EPS insulation ✓ Underfloor heating ✓ Photovoltaic panels ✓ Fully fitted kitchen with BOSCH appliances ✓ Heated swimming pool ✓ Video intercom ✓ And much more… OPPORTUNITY: Turnkey Villa You have the unique opportunity to CHOOSE the finishes you’ve always dreamed of for your home. The exclusivity of this project and the increasing demand make this a truly exceptional opportunity. LOCATION & ACCESSIBILITY: The villa is located on the West Coast (Silver Coast), a region rich in culture and history, with easy access to beaches, green areas, and a wide variety of services and amenities — the perfect choice for those seeking high quality of life in the Caldas da Rainha area. • Caldas da Rainha: known for its thermal springs, artistic ceramics, and vibrant cultural lifestyle. • Foz do Arelho (8 km): a stunning beach combining ocean and lagoon, ideal for water sports and scenic walks. • Óbidos (10 km): a medieval village surrounded by castle walls, offering cultural events all year round. • Nazaré (30 km): famous for its giant waves and a top destination for surfers, with a lively atmosphere full of cafés, bars, and restaurants. • Alcobaça (25 km): known for its impressive Gothic monastery, one of the most important in the country. With direct access to two major motorways (A8 and A15), the location offers quick connectivity to key regional destinations and to Lisbon International Airport (80 km). Take advantage of this rare opportunity to secure your high-end residence and become part of a development defined by quality, sophistication, and high demand. Your future home could be among the LAST AVAILABLE UNITS. Don’t miss the chance to personalize the house of your dreams! ✨ Reserve your villa today and secure your place in this exceptional development! ✨ Contact us now for more information! +351 961805938 Susana Leal – REALTOR® | IAD Portugal
Ref: 138951
Energy performance diagnosis
Similar properties


€615,000


€580,000


€267,000

Nearby towns
Others property types in Santa Maria, São Pedro e Sobral da Lagoa
Others property types nearby
Other projects in Santa Maria, São Pedro e Sobral da Lagoa