

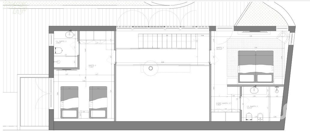
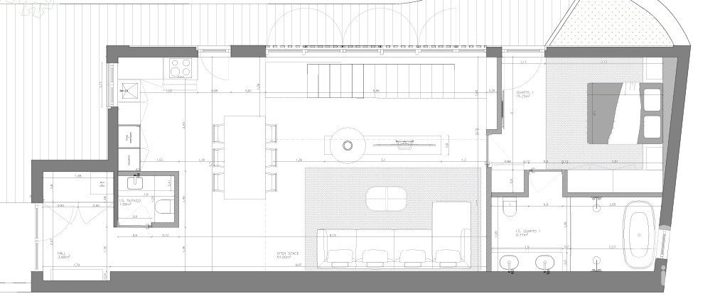
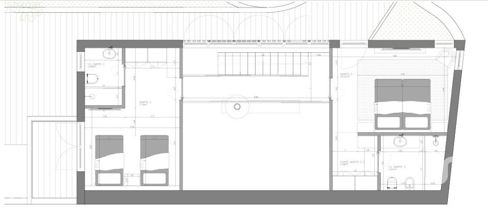
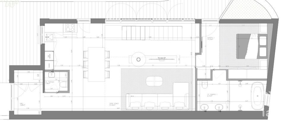
Discover a unique villa in Mazarefes, Viana do Castelo - a stunning mezzanine loft where contemporary architecture and interior design come together harmoniously, with high-quality finishes and attention to every detail. On the first floor, you'll find a large open-plan social area, where the living room and kitchen benefit from high ceilings, giving a truly special feeling of space, light and grandeur. The large windows let in plenty of natural light, creating a cozy and comfortable atmosphere throughout the day. Also on this floor is an elegant suite and a guest toilet, designed to ensure maximum functionality. On the second floor, two fantastic suites offer private and very comfortable spaces, ideal for the whole family. This villa is located in Mazarefes, a parish that combines the best of rural tranquillity with urban proximity. Surrounded by nature, Mazarefes offers quality of life and is just a few minutes from the historic center of Viana do Castelo - a city rich in culture, traditions and a vibrant social life. The beaches of the Atlantic coast are also very close by, ideal for days of leisure and water sports, as is the magnificent River Lima, perfect for walks, outdoor activities and moments of relaxation with the family. With the A28 highway less than 5 minutes away, this location allows for quick travel to Porto, Braga and the entire northern region, making this villa perfect for both permanent residence and vacation home. If you're looking for an exclusive house, with distinctive architecture and in a privileged location, you've just found it! This is more than a house, it's a lifestyle! Book your visit now and let yourself be enchanted!
Ref: 141155
Similar properties




Nearby towns
Others property types in Mazarefes e Vila Fria
Others property types nearby